Kursy walut NBP: USD 3,98 | EUR 4,32 | CHF 4,53 |

Jesteśmy członkiem:           

Wyszukiwarka
Notes
Zgłoś ofertę
Kalkulator
zgłoś ofertę
Mieszkania
Domy
Działki
Lokale
Obiekty
Szczegóły oferty
Rodzaj oferty
lokal biurowy ( wynajem )
Numer oferty
438170
Miejscowość
SZCZECIN, BUKOWO
Cena
15 000 PLN
Cena za mkw
61,48 PLN mkw
Powierzchnia
244.00 m2
Piętro
1
Liczba pięter
3
Rok budowy
2020
Opis
Nowoczesna Powierzchnia Biurowa 244 m2 - Szczecin, ul. Kolonistów.
Oferujemy do wynajęcia całe piętro w nowoczesnym budynku biurowo-usługowym zlokalizowanym przy ul. Kolonistów 42 w Szczecinie (dzielnica Bukowo). Lokal o łącznej powierzchni 244 m2 znajduje się na pierwszym piętrze i jest w bardzo dobrym stanie technicznym, gotowy do natychmiastowego wydania.

Standard i Wyposażenie. Nieruchomość została zaprojektowana z myślą o komforcie i bezpieczeństwie najemców. Budynek charakteryzuje się niskimi kosztami utrzymania dzięki zainstalowanej fotowoltaice.
Lokal jest w pełni wyposażony w nowoczesne instalacje

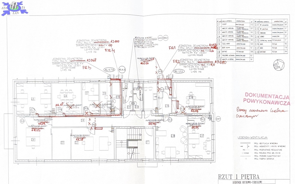
Klimatyzacja i Wentylacja Systemy klimatyzacji (jednostki zewnętrzne Multi) oraz profesjonalna instalacja wentylacji mechanicznej zapewniają optymalne warunki pracy.
Bezpieczeństwo Pełny monitoring (TV przemysłowa), system alarmowy, kontrola dostępu oraz instalacja przeciwpożarowa (gaśnice, czujniki)
Media i Komunikacja Instalacja elektryczna, gazowa, wodociągowa, kanalizacyjna oraz centralne ogrzewanie i ciepła woda.
Infrastruktura IT Rozbudowana sieć komputerowa umożliwiająca szybkie podłączenie stanowisk pracy.

Układ Pomieszczeń. Powierzchnia została funkcjonalnie podzielona na mniejsze i większe pokoje biurowe, co pozwala na elastyczną aranżację przestrzeni

Jasne pokoje biurowe z dużymi oknami zapewniającymi dostęp światła dziennego.
Komunikacja (przestronny korytarz).
Zaplecze socjalne i sanitariaty.

Lokalizacja i Potencjał. Budynek znajduje się w atrakcyjnej części dzielnicy Bukowo, co gwarantuje spokój przy jednoczesnej bliskości kluczowych punktów miasta. Dużym atutem jest bliskość stoczni, co czyni tę ofertę idealną dla firm współpracujących z sektorem morskim lub logistycznym. Obiekt posiada duży potencjał dla firm poszukujących reprezentacyjnej siedziby z własnym zapleczem technicznym.

Warunki NajmuCzynsz najmu 15 000 PLN netto miesięcznie.
Opłaty administracyjne 17 zł/m2 netto.
Kaucja 15 000 PLN netto.
Media Według zużycia (znacznie obniżone dzięki fotowoltaice).
Dostępność Lokal gotowy do wydania od zaraz.

Uwaga Dokumentacja powykonawcza potwierdza wysoką jakość wykonanych instalacji sanitarnych i klimatyzacyjnych.

Zapraszamy do kontaktu i na prezentację. Ten lokal to idealne miejsce na rozwój Twojego biznesu. Zachęcamy do osobistego zapoznania się z potencjałem tej nieruchomości. Podczas prezentacji będą Państwo mogli ocenić wysoki standard wykończenia oraz funkcjonalność dostępnej przestrzeni.

Chcesz dowiedzieć się więcej lub umówić na spotkanie? Czekamy na Twój telefon lub wiadomość! Z przyjemnością odpowiemy na wszystkie pytania i dopasujemy termin prezentacji do Twojego kalendarza.

Zapraszamy do Wirtualnego Spaceru 3D. Wiemy, jak ważny jest Twój czas, dlatego przygotowaliśmy możliwość zdalnego zapoznania się z nieruchomością.

Zadzwoń już dziś i zarezerwuj termin wizyty!





Kontakt do agenta

Atalanta Nieruchomości
Marii Konopnickiej 32
71-132 Szczecin
tel.: 914875042
email: info@atalanta.szczecin.pl
fax: 914875031

Wyślij zapytanie

Imię i Nazwisko
Telefon
E-mail
Treść zapytania

Wyrażam zgodę na przetwarzanie moich danych osobowych przez firmę dla celów związanych z działalnością pośrednictwa w obrocie nieruchomościami, jednocześnie potwierdzam, iż zostałem poinformowany o tym, iż będę posiadać dostęp do treści swoich danych do ich edycji lub usunięcia.

Wyślij ofertę

E-mail
© 2026 Atalanta Nieruchomości. Wszystkie prawa zastrzeżone.