Kursy walut NBP: USD 3,98 | EUR 4,32 | CHF 4,53 |

Jesteśmy członkiem:           

Wyszukiwarka
Notes
Zgłoś ofertę
Kalkulator
zgłoś ofertę
Mieszkania
Domy
Działki
Lokale
Obiekty
Szczegóły oferty
Rodzaj oferty
dom wolnostojacy ( sprzedaż )
Numer oferty
438076
Miejscowość
MIERZYN
Ulica
Teresy
Cena
3 690 000 PLN kalkulator
Cena za mkw
10 994,58 PLN mkw
Powierzchnia
335.62 m2
Pow. działki
1001.00 m2
Liczba pokoi
7
Liczba pięter
1
Stan domu
idealny
Rok budowy
2014
Droga dojazdowa
asfaltowa
Opis
Na sprzedaż wyjątkowa, ponadczasowa rezydencja z klasą w prestiżowej części Mierzyna
Najważniejsze atuty nieruchomości
dom wykonany z najwyższej klasy materiałów
powierzchnia całkowita domu 335,62 m2
powierzchnia działki 1001m2
garaż w bryle budynku (dwustanowiskowy)
rok budowy 2014
prywatna uliczka ( wjazd tylko dla mieszkańców)
instalacja fotowoltaiczna
ogrzewanie gazowe nadmuchowe, dodatkowo w łazienkach ogrzewana podłoga
ogród zaprojektowany z dbałością o każdy szczegół
drewniane okna 3 - szybowe
w trzech sypialniach zostały zamontowane moskitiery
miedziane rynny na zewnątrz

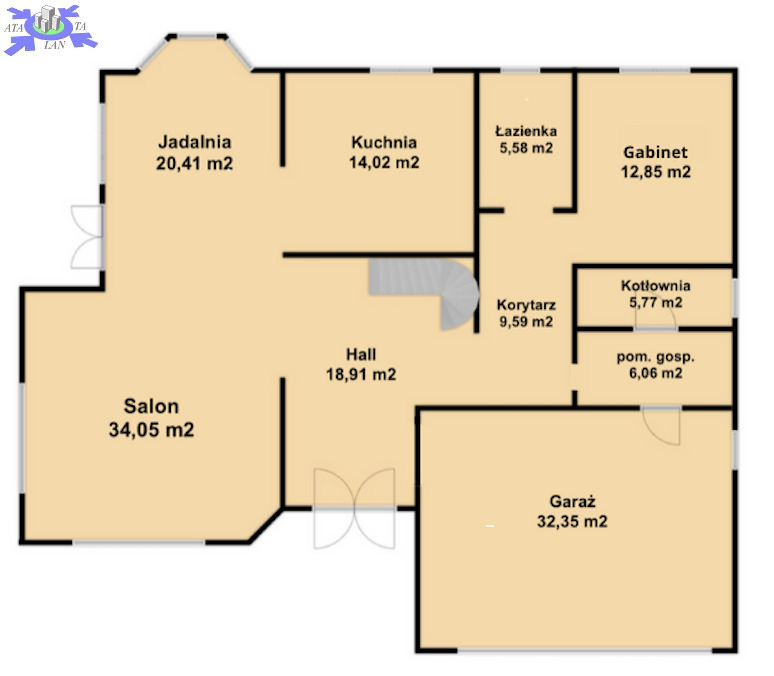
Parter - 167,81 m2
Hol - podłoga marmurowa
Salon z kominkiem - obudowa marmurowa, wsad Hajduk + wbudowane kino domowe (południowy zachód)
Jadalnia z wyjściem na taras i ogród(podłoga deska Merbau olejowana), (północny zachód)
Kuchnia wykonana z najwyższej klasy materiałów (blaty i parapety granit) (północny zachód)
Schody z litego dębu
korytarz
łazienka z kabiną prysznicową, dodatkowo ogrzewana podłoga
gabinet
kotłownia
spiżarnia
garaż

Piętro 167,81 m2 (powierzchnia całkowita), użytkowa 139,76 m2
przestronny korytarz (podłoga deska Merbau - deska lakierowana fabrycznie)
3 sypialnie ( dwie z garderobą, jedna z balkonem)
pokój gościnny z garderobą
pokój kąpielowy (wanna, prysznic), dodatkowo ogrzewana podłoga + zjawiskowe okno w stylu bawolego oka
kiniarnia

Dodatkowo nieruchomość wyposażona jest w centralny odkurzacz, centralny filtr wody - zmiękczacz, nawodnienie ogrodu, robot koszący Husqvarna, bramę i ogrodzenie Wiśniowski, kominek zewnętrzny na tarasie oraz strych o powierzchni 25m2.

Tak prezentuje się ta wyjątkowa nieruchomość - idealne miejsce dla osób, które cenią elegancję, luksus, spokój, a jedocześnie bliskość centrum miasta.

Zapraszamy do kontaktu, aby zobaczyć tę nieruchomość na żywo i poznać jej niepowtarzalny urok.

ENGLISH

For Sale An Exceptional Residence in Mierzyn

Key Features
Built with the highest quality materials
Total house area 335,62 m2
Land area 1001 m2
Built-in Garage
Year of construction 2014
Private street (access restricted to residents only)
Photovoltaic system installed
Gas heating forced air (underfloor heating in bathrooms)
Beautiful garden
Triple-glazed wooden windows

Ground Floor - 167.81 m2
Entrance Hall - marble flooring
Living room with fireplace - marble surround, Hajduk insert + built-in home cinema (southwest-facing)
Dining room with access to the terrace and garden, (Merbau oil-finished hardwood floors), (northwest-facing)
Kitchen - crafted with top-quality materials (granite countertops and windowsills) (northwest-facing)
Solid oak staircase
Corridor
Bathroom with shower (underfloor heating)
Office
Boiler room
Pantry
Garage

First Floor - 167,81 m2 (total area), usefull area 139,76 m2
Spacious corridor (Merbau factory-lacquered hardwood floors)
3 bedrooms (two with walk-in closets, one with a balcony)
Luxury bathroom (bathtub, shower) - underfloor heating + stunning "bull's-eye" style window
Guest room
Cinema room

Additional Features

The property includes a central vacuum system, central water filter/softener, garden irrigation system, Husqvarna robotic lawnmower, Wiśniowski gate and fence, and an outdoor fireplace on the terrace.
This exceptional property offers an ideal haven for those who value elegance, luxury, and tranquility, while staying close to the city center.
We invite you to contact us to experience this unique residence in person and discover its unmatched charm.


Dodatkowe informacje: umeblowane, garaż

Kontakt do agenta

Atalanta Nieruchomości
Marii Konopnickiej 32
71-132 Szczecin
tel.: 914875042
email: info@atalanta.szczecin.pl
fax: 914875031

Wyślij zapytanie

Imię i Nazwisko
Telefon
E-mail
Treść zapytania

Wyrażam zgodę na przetwarzanie moich danych osobowych przez firmę dla celów związanych z działalnością pośrednictwa w obrocie nieruchomościami, jednocześnie potwierdzam, iż zostałem poinformowany o tym, iż będę posiadać dostęp do treści swoich danych do ich edycji lub usunięcia.

Wyślij ofertę

E-mail
© 2026 Atalanta Nieruchomości. Wszystkie prawa zastrzeżone.