Kursy walut NBP: USD 3,98 | EUR 4,32 | CHF 4,53 |

Jesteśmy członkiem:           

Wyszukiwarka
Notes
Zgłoś ofertę
Kalkulator
zgłoś ofertę
Mieszkania
Domy
Działki
Lokale
Obiekty
Szczegóły oferty
Rodzaj oferty
dom blizniak ( sprzedaż )
Numer oferty
437725
Miejscowość
DOBRA
Ulica
Frezjowa
Cena
1 049 000 PLN kalkulator
Cena za mkw
7 858,27 PLN mkw
Powierzchnia
133.49 m2
Pow. działki
340.00 m2
Liczba pokoi
5
Liczba pięter
1
Rodzaj kuchni
otwarta
Stan domu
do wykonczenia
Rok budowy
2025
Droga dojazdowa
utwardzona
Opis
Oferta sprzedaży domu jednorodzinnego dwulokalowego zlokalizowanego wśród niskiej zabudowy jednorodzinnej na zadbanym osiedlu w Dobrej z dostępem do wszystkich mediów.
Dojazd pod posesję drogą asfaltową i z polbruku.
Do każdego lokalu przynależne są 2 miejsca parkingowe oraz ogród zlokalizowany od strony południowo-zachodniej.

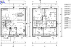
Na powierzchnię 133,49m2 składa się
Parter (66,27 m2)
- przestronny salon z jadalnią o powierzchni 30,34m2,
- aneks kuchenny (13,45m2),
- łazienka (6,19m2),
- wiatrołap (7,53m2),
- korytarz (6,83m2),
- pomieszczenie gospodarcze (1,93m2).
Piętro (67,15 m2)
- cztery pokoje (13,45m2, 13,30m2, 12,21m2, 9,41m2),
- korytarz (11,98m2),
- łazienka (6,80m2).
Dodatkowo na strychu znajduje się około 12m2 powierzchni do własnego zagospodarowania.
Niewątpliwym atutem jest brak skosów na piętrze, dzięki czemu pokoje są bardzo ustawne.

Standard deweloperski obejmuje
- System rekuperacji
- Pompę ciepła firmy York
- Ogrzewanie podłogowe w całym budynku
- Instalacje pod fotowoltaikę
- Ocieplenie budynku styropianem grafitowym o grubości 20 cm
- Okna trzyszybowe wraz z ciepłym montażem na profilach firmy REHAU, a w salonie okno typu HST na podwalinie (brak mostków termicznych)
- Ocieplenie poddasza i stropu pianą PUR
- Kanalizację sanitarną i deszczową
- Drzwi wejściowe antywłamaniowe z Relingiem
- Na parterze rolety zewnętrzne sterowane elektrycznie
- Biały osprzęt elektryczny
- Wylewane schody na piętro
- Schody na strych techniczne
- Podwójna ściana między lokalami z dylatacją
- Tynk zewnętrzny silikonowy
- Elewacja budynku koloru białego
Zagospodarowanie zewnętrzne
- Podjazdy, podejście do domu i tarasy wyłożone kostką z polbruku
- Dwa miejsca parkingowe przed domem
- Teren ogrodzony panelami z siatki, furtka na ogród

Pełna infrastruktura drogowa wokół budynku (drogi dojazdowe oraz chodniki wyłożone kostką z polbruku).


Kupujący jest zwolniony z 2% PCC.

Polecam i zapraszam na prezentację!


Dodatkowe informacje: garaż

Kontakt do agenta

Atalanta Nieruchomości
Marii Konopnickiej 32
71-132 Szczecin
tel.: 914875042
email: info@atalanta.szczecin.pl
fax: 914875031

Wyślij zapytanie

Imię i Nazwisko
Telefon
E-mail
Treść zapytania

Wyrażam zgodę na przetwarzanie moich danych osobowych przez firmę dla celów związanych z działalnością pośrednictwa w obrocie nieruchomościami, jednocześnie potwierdzam, iż zostałem poinformowany o tym, iż będę posiadać dostęp do treści swoich danych do ich edycji lub usunięcia.

Wyślij ofertę

E-mail
© 2025 Atalanta Nieruchomości. Wszystkie prawa zastrzeżone.