Kursy walut NBP: USD 3,98 | EUR 4,32 | CHF 4,53 |

Jesteśmy członkiem:           

Wyszukiwarka
Notes
Zgłoś ofertę
Kalkulator
zgłoś ofertę
Mieszkania
Domy
Działki
Lokale
Obiekty
Szczegóły oferty
Rodzaj oferty
lokal biurowy ( wynajem )
Numer oferty
437697
Miejscowość
SZCZECIN, CENTRUM
Ulica
Aleja Niepodległości
Cena
7 000 PLN
Cena za mkw
68,63 PLN mkw
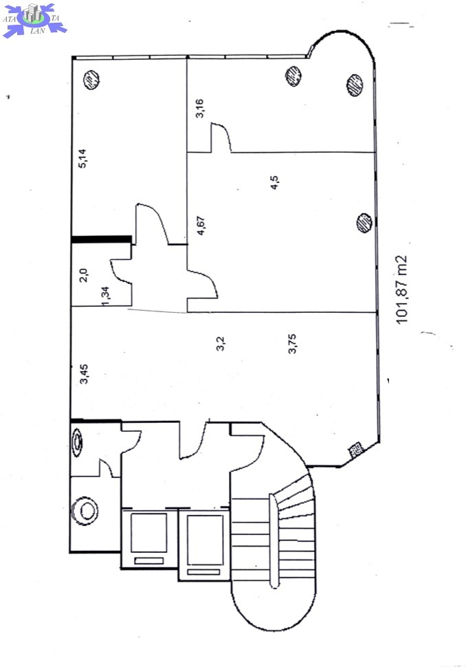
Powierzchnia
102.00 m2
Liczba pokoi
6
Piętro
4
Liczba pięter
7
Rok budowy
1970
Opis
Do wynajęcia niezależna powierzchnia biurowa- 100 m2, zlokalizowana w jednej z najlepszych lokalizacji w mieście w budynku "Czekoladki", naprzeciwko "Kaskady".
Lokal znajduje się na IV piętrze, w budynku, wyposażonym w dwie windy i obejmuje
cztery oddzielne pokoje,
sekretariat,
zaplecze socjalne.
W cenie dostępne jest jedno miejsce postojowe przed budynkiem (200 PLN netto miesięcznie).
Koszty najmu
czynsz 7000 PLN netto,
opłaty administracyjne 500 PLN,
ogrzewanie według udziału w powierzchni,
energia elektryczna własny podlicznik
Lokal dostępny do wynajęcia od stycznia 2026 r.
Kaucja jednomiesięczna, budynek chroniony i monitorowany.
Na życzenie najemcy, istnieje możliwość wprowadzenia kontroli dostępu do piętra, tak, aby winda zatrzymywała się wyłącznie, po użyciu dedykowanej karty.

Dodatkowe informacje: ochrona, winda, parking

Kontakt do agenta

Atalanta Nieruchomości
Marii Konopnickiej 32
71-132 Szczecin
tel.: 914875042
email: info@atalanta.szczecin.pl
fax: 914875031

Wyślij zapytanie

Imię i Nazwisko
Telefon
E-mail
Treść zapytania

Wyrażam zgodę na przetwarzanie moich danych osobowych przez firmę dla celów związanych z działalnością pośrednictwa w obrocie nieruchomościami, jednocześnie potwierdzam, iż zostałem poinformowany o tym, iż będę posiadać dostęp do treści swoich danych do ich edycji lub usunięcia.

Wyślij ofertę

E-mail
© 2025 Atalanta Nieruchomości. Wszystkie prawa zastrzeżone.