Kursy walut NBP: USD 3,98 | EUR 4,32 | CHF 4,53 |

Jesteśmy członkiem:           

Wyszukiwarka
Notes
Zgłoś ofertę
Kalkulator
zgłoś ofertę
Mieszkania
Domy
Działki
Lokale
Obiekty
Szczegóły oferty
Rodzaj oferty
mieszkanie ( sprzedaż )
Numer oferty
437547
Miejscowość
SZCZECIN, CENTRUM
Ulica
Śląska
Cena
529 000 PLN kalkulator
Cena za mkw
16 202,14 PLN mkw
Powierzchnia
32.65 m2
Liczba pokoi
2
Piętro
2
Liczba pięter
4
Rodzaj kuchni
aneks
Stan mieszkania
do wykonczenia
Rok budowy
2017
Opis
Planujesz skredytować tę nieruchomość - zadzwoń.

Do sprzedaży mieszkanie 2 pokojowe z balkonem oraz komórką lokatorską w samym Centrum Szczecina, w pięknie odrestaurowanej i prestiżowej kamienicy. Nieruchomość to połączenie starej architektury i nowoczesnego stylu.
W pobliżu znajdują się Galerie Handlowe (Galaxy, Kaskada), Filharmonia, Wały Chrobrego, liczne sklepy, szkoły, przedszkola, przystanki komunikacji miejskiej oraz tereny zielone.
Bardzo prestiżowa lokalizacja dla osób wymagających.

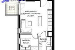
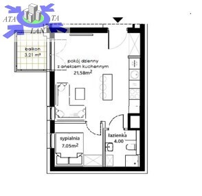
Mieszkanie o powierzchni użytkowej 32,65 m2, na którą składają się
- salon połączony z aneksem kuchennym oraz wyjściem na balkon
- pokój
- łazienka
+ balkon

W księdze wieczystej lokal opisany jako pokój dzienny z aneksem kuchennym, komunikacja, łazienka.

Do ofertowej ceny należy doliczyć kwotę 12.000 zł za komórkę lokatorską zlokalizowaną w garażu podziemnym o pow. użytkowej 1,95 m2 (zakup obligatoryjny).

W mieszkaniu zostały wykonane wszystkie prace wykończeniowe, wystarczy tylko położyć płytki, panele oraz dokupić meble. W całej nieruchomości zostały usunięte wszystkie wady deweloperskie np grubość tynku została pogrubiona, została zamontowana podwójna ilość gniazdek itp.
Wewnątrz budynku znajduje się ładne patio do użytku mieszkańców oraz bardzo reprezentacyjna klatka schodowa.
Nieruchomość ta to idealne miejsce dla osób poszukujących ekskluzywnego apartamentu, który można wykończyć wedle własnej aranżacji.

Zapraszam na prezentację.


Dodatkowe informacje: balkon, winda, piwnica

Kontakt do agenta

Atalanta Nieruchomości
Marii Konopnickiej 32
71-132 Szczecin
tel.: 914875042
email: info@atalanta.szczecin.pl
fax: 914875031

Wyślij zapytanie

Imię i Nazwisko
Telefon
E-mail
Treść zapytania

Wyrażam zgodę na przetwarzanie moich danych osobowych przez firmę dla celów związanych z działalnością pośrednictwa w obrocie nieruchomościami, jednocześnie potwierdzam, iż zostałem poinformowany o tym, iż będę posiadać dostęp do treści swoich danych do ich edycji lub usunięcia.

Wyślij ofertę

E-mail
© 2025 Atalanta Nieruchomości. Wszystkie prawa zastrzeżone.