Kursy walut NBP: USD 3,98 | EUR 4,32 | CHF 4,53 |

Jesteśmy członkiem:           

Wyszukiwarka
Notes
Zgłoś ofertę
Kalkulator
zgłoś ofertę
Mieszkania
Domy
Działki
Lokale
Obiekty
Szczegóły oferty
Rodzaj oferty
lokal biurowy ( wynajem )
Numer oferty
373142
Miejscowość
SZCZECIN, CENTRUM
Ulica
Jagiellońska
Cena
2 000 PLN
Cena za mkw
40 PLN mkw
Powierzchnia
60.00 m2
Liczba pokoi
3
Piętro
1
Liczba pięter
6
Rok budowy
1990
Droga dojazdowa
asfaltowa
Opis
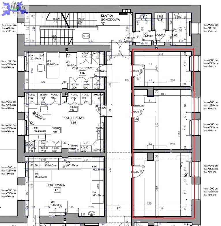
Do wynajmu są biura położone w ścisłym centrum, usytuowane na I piętrze w prawym skrzydle budynku biurowego przy ul. Jagiellońskiej w Szczecinie, o pow. 50,00 m2, wysokości około 3,6 m i składające się z 3 pomieszczeń zaznaczonych na rzucie z możliwością zrobienia open space. Cena wynajmu wynosi netto 40 zł za m2 powierzchni, a koszty mediów 9 zł/m2.



Dodatkowe informacje: ochrona, winda, parking

Kontakt do agenta

Atalanta Nieruchomości
Marii Konopnickiej 32
71-132 Szczecin
tel.: 914875042
email: info@atalanta.szczecin.pl
fax: 914875031

Wyślij zapytanie

Imię i Nazwisko
Telefon
E-mail
Treść zapytania

Wyrażam zgodę na przetwarzanie moich danych osobowych przez firmę dla celów związanych z działalnością pośrednictwa w obrocie nieruchomościami, jednocześnie potwierdzam, iż zostałem poinformowany o tym, iż będę posiadać dostęp do treści swoich danych do ich edycji lub usunięcia.

Wyślij ofertę

E-mail
© 2025 Atalanta Nieruchomości. Wszystkie prawa zastrzeżone.