Miejscowość
SZCZECIN, ŚRÓDMIEŚCIE-CENTRUM
Opis
Przestronny apartament w sercu Szczecina - ul. Księcia Bogusława X
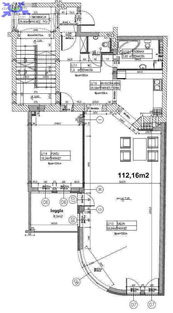
Wyjątkowa oferta dla osób, które cenią przestrzeń, komfort oraz doskonałą lokalizację. Prezentowany apartament o powierzchni 112,16 m2 mieści się na drugim piętrze kameralnej, zmodernizowanej kamienicy z 2010 roku. To idealna propozycja zarówno dla pary lub rodziny, jak i osób poszukujących prestigowego miejsca do życia w centrum miasta.
Komfort i funkcjonalny układ
Apartament zachwyca przestronnym układem pomieszczeń oraz wysokimi sufitami (ok. 3,3 m), które nadają wnętrzu wyjątkowego charakteru.
W skład mieszkania wchodzą
* imponujący salon z dużymi oknami i wyjściem na balkon,
* otwarty aneks kuchenny z jadalnią,
* komfortowa sypialnia,
* elegancka łazienka z wanną,
* osobna toaleta,
* przestronny przedpokój.
Ściana oddzielająca sypialnię od salonu ma charakter działowy - dzięki temu istnieje możliwość dowolnej aranżacji przestrzeni i dopasowania mieszkania do własnych potrzeb.
Komfortowa codzienność
Wnętrze apartamentu jest jasne, doskonale doświetlone i funkcjonalne. Balkon od strony dziedzińca zapewnia ciszę i prywatność, a widok na wewnętrzny parking gwarantuje wygodę użytkowania. Do dyspozycji mieszkańców dostępne są również miejsca postojowe za szlabanem.
Mieszkanie jest ogrzewane z sieci miejskiej, a ciepła woda również pochodzi z miejskich dostaw - to gwarancja komfortu i niskich kosztów eksploatacyjnych. Czynsz administracyjny wynosi ok. 820 zł miesięcznie.
Lokalizacja, która robi różnicę
Ulica Księcia Bogusława X to jedno z najbardziej prestiżowych miejsc w Szczecinie. Wejście do budynku od strony deptaku prowadzi do klimatycznej części miasta, pełnej kawiarni, restauracji i butików. W zasięgu krótkiego spaceru dostępne są wszystkie udogodnienia miejskiego życia komunikacja, sklepy, usługi, szkoły i tereny zielone.
Atuty nieruchomości
* Reprezentacyjna lokalizacja w ścisłym centrum miasta,
* Imponująca powierzchnia i wysokość pomieszczeń,
* Możliwość nowej aranżacji układu,
* Balkon z widokiem na cichy dziedziniec,
* Dostęp do miejsc postojowych za szlabanem,
* Pełna własność z księgą wieczystą.
Cena 870 000 zł - to wyjątkowo atrakcyjna oferta w tej lokalizacji, biorąc pod uwagę metraż, standard i potencjał aranżacyjny nieruchomości.
Ten apartament to doskonała propozycja dla osób, które szukają przestronnego, eleganckiego mieszkania w sercu miasta, z potencjałem do stworzenia wyjątkowej przestrzeni dopasowanej do własnego stylu życia.
Dodatkowe informacje: telefon, internet, TV kablowa, winda, garaż