Rodzaj oferty
lokal biurowy ( sprzedaż )
Opis
Podana cena jest ceną netto należy doliczyć 8% podatek VAT (kupujący przy zakupie nie płaci 2% podatku pcc)
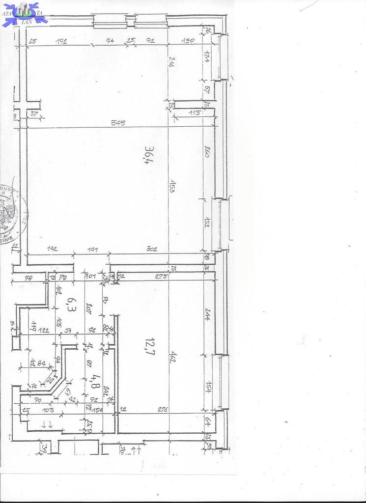
Lokal o powierzchni 61,70 m2 położony na "wyższym" parterze, budynku (2001 rok), usytuowanego w dzielnicy Gumieńce w Szczecinie.
Przed budynkiem znajduje się ogólnodostępny parking. Wejście do lokalu z klatki schodowej po paru schodkach.
Lokal składa się z dwóch pomieszczeń (o pow. ok. 36 m2 i ok. 13 m2), przedpokoju i łazienki z wydzielonym wc. W chwili obecnej brak kuchni. Ale istnieje możliwość zrobienia "aneksu kuchennego" w największym pomieszczeniu lub osobnego pomieszczenia socjalnego w mniejszym pomieszczeniu (13 m2)
Wszystkie okna drewniane, na podłodze panele, w łazience i wc - glazura i terakota.
Czynsz należny zarządcy (uwzględniający śladową zaliczkę na wodę ciepłą i zimną, wywóz śmieci oraz ogrzewanie, i fundusz remontowy.) - ok. 695 PLN
Do lokalu przynależy piwnica o pow. 12,81 m2
Lokal idealny na działalność biurową, lub pod wynajem, ale także (po drobnych przeróbkach) doskonale sprawdzi się jako lokal mieszkalny.