Kursy walut NBP: USD 3,98 | EUR 4,32 | CHF 4,53 |

Jesteśmy członkiem:           

Wyszukiwarka
Notes
Zgłoś ofertę
Kalkulator
zgłoś ofertę
Mieszkania
Domy
Działki
Lokale
Obiekty
Szczegóły oferty
Rodzaj oferty
mieszkanie ( sprzedaż )
Numer oferty
437238
Miejscowość
SZCZECIN, OS. ARKOŃSKIE
Cena
1 050 000 PLN kalkulator
Cena za mkw
14 175,78 PLN mkw
Powierzchnia
74.07 m2
Liczba pokoi
4
Liczba pięter
3
Rodzaj kuchni
aneks
Stan mieszkania
bardzo dobry
Rok budowy
2019
Opis
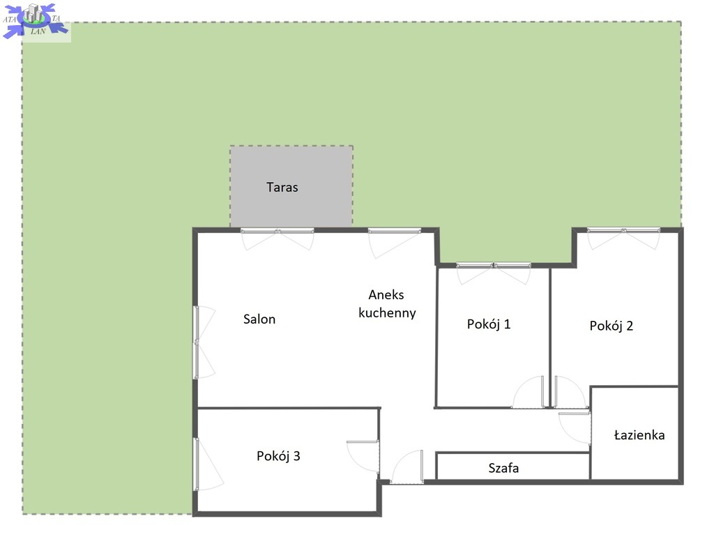
Mamy dla Państwa na sprzedaż piękną nieruchomość.
Mieszkanie składa się z
- dużego salonu z aneksem kuchennym (26,92 m2) z wyjściem na taras i ogród 91,79m2
- 3 sypialni (10,35 m2, 10,41 m2, 11,28 m2)
- dużej łazienki (4,53 m2)
- przedpokoju (3,58 m2)
- komunikacji (7,00 m2), która przez całą długość zabudowana jest szafami na wymiar.

Do mieszkania przynależą 2 sąsiadujące miejsca postojowe każde dodatkowo płatne 50.000 zł (zakup obligatoryjny).
Większość mebli może pozostać w mieszkaniu (do uzgodnienia).

Ogrzewanie i ciepła woda z sieci miejskiej. Czynsz przy 4 osobach wynosi ok.550 zł Dodatkowo płatne Enea, SEC i ZWiK wg zużycia.
Wystawa okien Południe / Zachód.
Mieszkanie wykończone w bardzo wysokim standardzie, na podłodze jasne panele bardzo wysokiej jakości, włączniki świateł dotykowe. W całym mieszkaniu sterowanie roletami zewnętrznymi, światłem, temperaturą, monitoringiem, ogrzewaniem również za pomocą aplikacji SMART DOM firmy Ampio.
W całym mieszkaniu okna wyposażone w automatyczne rolety antywłamaniowe oraz moskitiery wysokiej jakości. Lokal wyposażony w instalacje alarmową.

Polecam nieruchomość ze względu na bardzo dobra lokalizację, spokojną i piękną okolicę oraz wysoką jakość wykończenia. Mieszkanie na parterze z ogrodem to idealna przestrzeń dla miłośników natury, oferująca prywatną oazę spokoju i wygodny kontakt z zielenią. Jest to doskonałe miejsce do relaksu przy kawie, rodzinnych spotkań na świeżym powietrzu, bezpiecznej zabawy dla dzieci i miejsca dla czworonożnych pupili.
Wygoda wynikająca z braku schodów sprawia, że jest to też dobre rozwiązanie dla osób starszych, a ogród daje dodatkową przestrzeń do przechowywania.
Zapraszam na prezentację.

Dodatkowe informacje: ochrona, winda, parking

Kontakt do agenta

Atalanta Nieruchomości
Marii Konopnickiej 32
71-132 Szczecin
tel.: 914875042
email: info@atalanta.szczecin.pl
fax: 914875031

Wyślij zapytanie

Imię i Nazwisko
Telefon
E-mail
Treść zapytania

Wyrażam zgodę na przetwarzanie moich danych osobowych przez firmę dla celów związanych z działalnością pośrednictwa w obrocie nieruchomościami, jednocześnie potwierdzam, iż zostałem poinformowany o tym, iż będę posiadać dostęp do treści swoich danych do ich edycji lub usunięcia.

Wyślij ofertę

E-mail
© 2025 Atalanta Nieruchomości. Wszystkie prawa zastrzeżone.