Rodzaj oferty
dom blizniak ( sprzedaż )
Opis
Oferta sprzedaży bliźniaka zlokalizowanego w spokojnej, kameralnej części Wołczkowa.
Dom o pow. użytkowej 146,27 m2 (pow. całk. 153,4 m2) położony jest na działce o pow. 551 m2 i składa się z
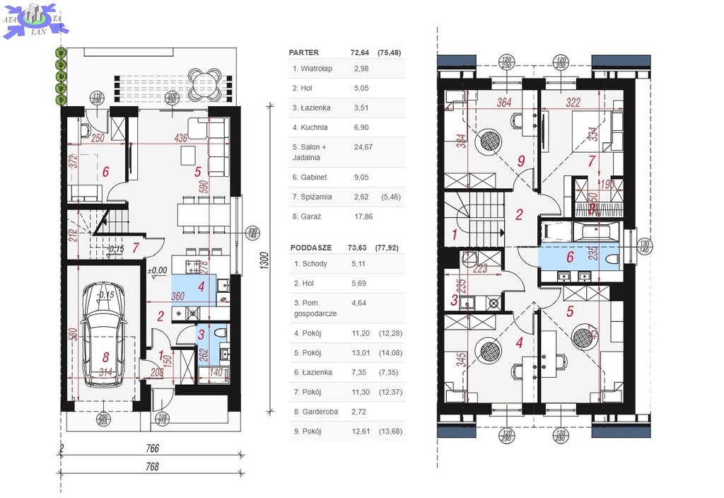
Parter
-wiatrołap 2,98m2
-hol 5,05m2
-łazienka 3,51 m2
-salon z otwartą kuchnią i jadalnią 31,57m2, z salonu wyjście na taras
- pokój/gabinet 9,05 m2
- spiżarnia 2,62 m2
-garaż 17,86m2
Piętro
-schody 5,11m2
-hol 5,69m2
-pokój - 11,20m2
-pokój - 13,01m2
-łazienka 7,35m2
-pokój - 11,30m2
-garderoba 2,72m2
- pokój 12,61 m2
-pomieszczenie gospodarcze 4,64 m2
Dom został zbudowany z dobrej jakości materiałów, a układ pomieszczeń został zaprojektowany tak by przyszli mieszkańcy mogli w pełni korzystać z jego funkcjonalności.
Standard wykończenia
-ogrzewanie podłogowe (w całym budynku)
- piec gazowy dwubiegowy z wbudowanym zasobnikiem wody
- instalacje grzewcze i elektryczne
-ściany zewnętrzne - bloczki gazobetonowe 24cm
-ściany wewnętrzne - bloczki gazobetonowe
-strop ocieplony wełną mineralną
-schody żelbetowe
-dachówka płaska antracytowa
-tynki gipsowe
-woda z sieci wodociągowej
-kanalizacyjna - odprowadzenie ścieków do szamba 10 m3
- zbiornik na wodę deszczową 5 m3
- podejście i podjazd wyłożone polbrukiem
- brama garażowa automatyczna na pilot
Planowane zakończenie prac sierpień 2025.
Zapraszam na prezentacje.