Kursy walut NBP: USD 3,98 | EUR 4,32 | CHF 4,53 |

Jesteśmy członkiem:           

Wyszukiwarka
Notes
Zgłoś ofertę
Kalkulator
zgłoś ofertę
Mieszkania
Domy
Działki
Lokale
Obiekty
Szczegóły oferty
Rodzaj oferty
mieszkanie ( sprzedaż )
Numer oferty
436901
Miejscowość
SZCZECIN, OS. BUKOWE
Cena
579 000 PLN kalkulator
Cena za mkw
9 075,24 PLN mkw
Powierzchnia
63.80 m2
Liczba pokoi
3
Piętro
3
Liczba pięter
3
Rok budowy
1998
Opis
Mieszkanie bardzo atrakcyjnie położone w centralnej części osiedla, okolica cicha i spokojna, dużo zieleni, przed budynkiem niewielki park.
Budynek z cegły, wybudowany w 1998 roku, klatka szeroka o łagodnym stopniu nachylenia schodów.
Lokal bardzo słoneczny, przestronny, o funkcjonalnym układzie wnętrza.
W pobliżu szkoła, sklepy, pętla autobusowa oraz wszelkie obiekty użyteczności publicznej.

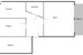
Salon o powierzchni około 19m2 z wyjściem na bardzo duży balkon z widokiem na zieleń.
Dwa pokoje o powierzchni około 12m2 oraz około 9m2, kuchnia o powierzchni około 8m2.
Duża łazienka razem z wc, z wanną, w glazurze i terakocie.

Okna pcv, na podłodze panele, ściany gładkie malowane.
W cenie zostaje zabudowa kuchni oraz szafa w przedpokoju.

Do mieszkania przynależy piwnica.

Polecam z uwagi na lokalizację oraz przystępną cenę.
Zapraszam na prezentację

Dodatkowe informacje: balkon, piwnica, komórka

Kontakt do agenta

Atalanta Nieruchomości
Marii Konopnickiej 32
71-132 Szczecin
tel.: 914875042
email: info@atalanta.szczecin.pl
fax: 914875031

Wyślij zapytanie

Imię i Nazwisko
Telefon
E-mail
Treść zapytania

Wyrażam zgodę na przetwarzanie moich danych osobowych przez firmę dla celów związanych z działalnością pośrednictwa w obrocie nieruchomościami, jednocześnie potwierdzam, iż zostałem poinformowany o tym, iż będę posiadać dostęp do treści swoich danych do ich edycji lub usunięcia.

Wyślij ofertę

E-mail
© 2025 Atalanta Nieruchomości. Wszystkie prawa zastrzeżone.