Kursy walut NBP: USD 3,98 | EUR 4,32 | CHF 4,53 |

Jesteśmy członkiem:           

Wyszukiwarka
Notes
Zgłoś ofertę
Kalkulator
zgłoś ofertę
Mieszkania
Domy
Działki
Lokale
Obiekty
Szczegóły oferty
Rodzaj oferty
mieszkanie ( sprzedaż )
Numer oferty
436699
Miejscowość
SZCZECIN, DRZETOWO
Ulica
Jana Chryzostoma Paska
Cena
389 000 PLN kalkulator
Cena za mkw
8 583,41 PLN mkw
Powierzchnia
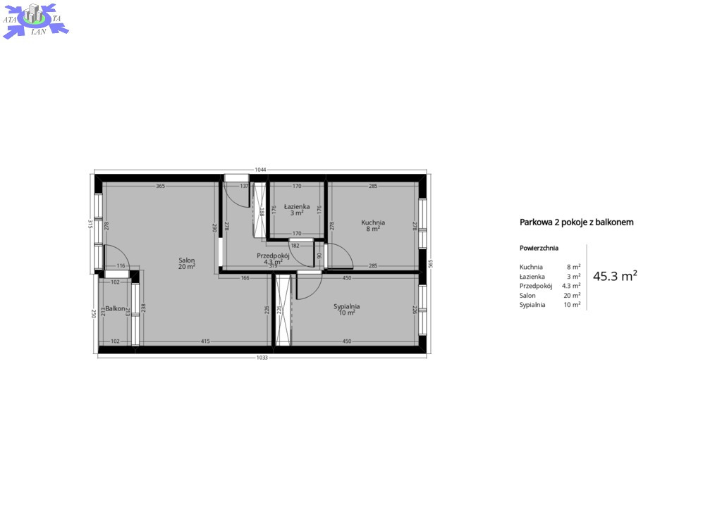
45.32 m2
Liczba pokoi
2
Piętro
4
Liczba pięter
4
Rok budowy
1985
Opis
Na sprzedaż rozkładowe i bardzo ustawne mieszkanie o powierzchni 45,3mkw położone na 4 piętrze zadbanego niskiego bloku w świetnej lokalizacji blisko Centrum. Ze względu na miejsce jest to dobra propozycja zarówno dla osób szukających mieszkania na własne potrzeby, jak również dla inwestorów myślących o wynajmie dla studentów pobliskiej Politechniki Morskiej (ROI po opodatkowaniu >8%).

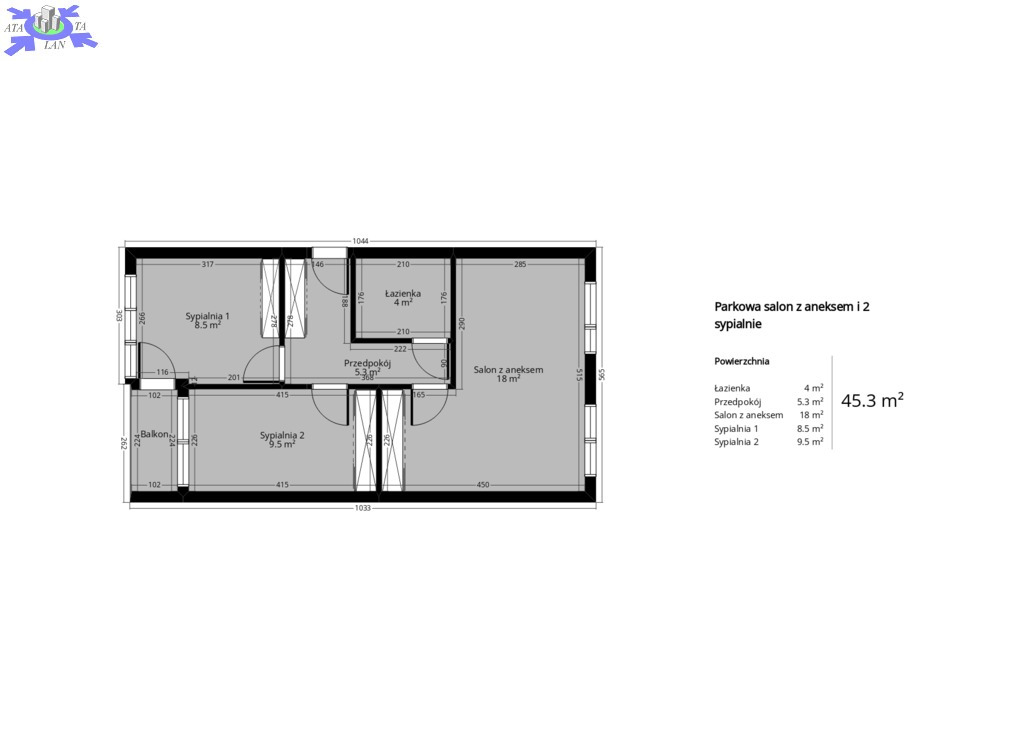
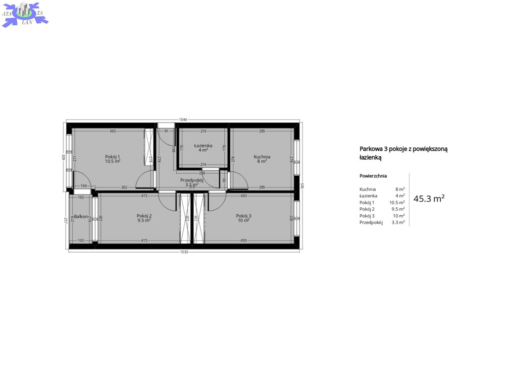
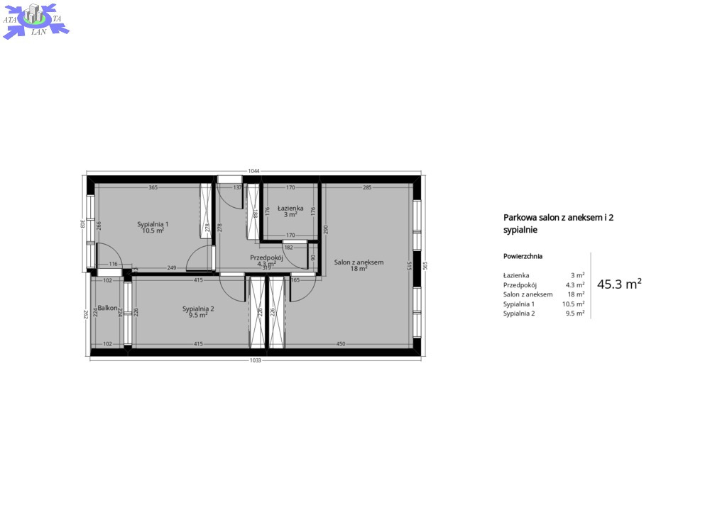
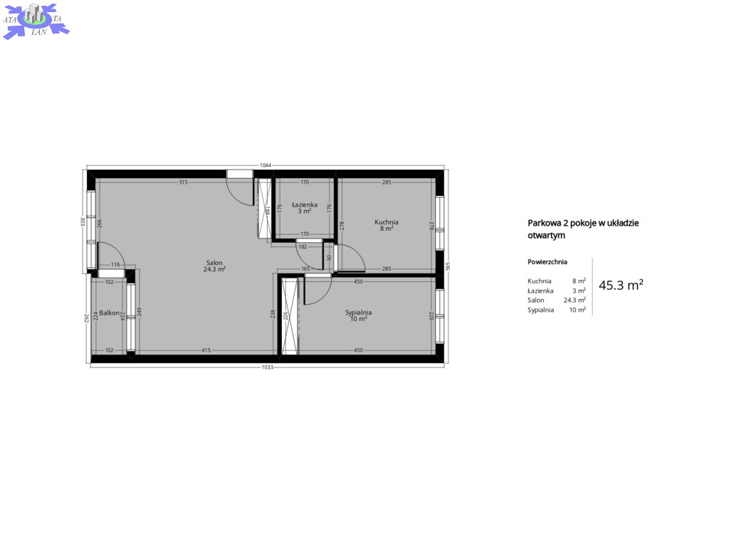
Istnieje możliwość łatwego dostosowania układu mieszkania do różnych potrzeb (rzuty/propozycje do wglądu)
- uzyskanie dużej przestrzeni dziennej poprzez likwidację ściany dzielącej salon od przedpokoju
- uzyskanie rozkładowych 3 pokojów poprzez podzielenie salonu na 2 mniejsze
- uzyskanie salonu z aneksem poprzez połączenie kuchni i sypialni przy jednoczesnym podziale obecnego salonu na 2 sypialnie
- możliwość powiększenia łazienki w każdym wariancie

Mieszkanie
* powierzchnia 45,3mkw
* 4 piętro w niskim bloku z czystą i zadbaną klatką schodową
* salon z wnęką i wyjściem na balkon od strony cichego i zielonego podwórka (zachód)
* sypialnia od wschodniej strony
* osobna widna i foremna kuchnia
* łazienka z prysznicem, wc i umywalką z możliwością powiększenia
* przedpokój z dużą szafą z możliwością otwarcia na salon
* okna PCV w bardzo dobrym stanie
* ciepła woda i ogrzewanie z sieci miejskiej

Budynek
* niski ocieplony blok
* zadbana klatka schodowa
* parkowanie wzdłuż ulicy przy budynku bez strefy PP
* przynależna piwnica
* dostępne media od Orange

Okolica
Bardzo dobra lokalizacja pod każdym względem dla osób szukających swojego "M2" w mieście - w pobliżu sklepy większe i mniejsze, piekarnia, apteka, kościół, szkoła, basen, punkty usługowe, handlowe i beauty. W pobliżu przystanki linii autobusowych linii 53, 58, 59, 60, 67, 68, 101, 107 i tramwajowych linii 1, 2, 3, 5, 6, 8 i 11. Do tego brak strefy PP wzdłuż ulicy, a dojazd do CH Galaxy zajmuje zaledwie 3 minuty (na pieszo 10 minut). Park Żeromskiego oddalony jest o 500m. Stąd już całkiem niedaleko na Wały Chrobrego i do Teatru Polskiego. Ciężko o lepszą lokalizację - miejsce idealne dla osób ceniących miejski styl życia i wygodę.

Ważne
* czynsz z zaliczkami na fundusz remontowy, ciepłą wodę i ogrzewanie miejskie przy 2 osobach wynosi 960zł

Istnieje możliwość łatwego dostosowania układu mieszkania do różnych potrzeb (rzuty/propozycje do wglądu)
- uzyskanie dużej przestrzeni dziennej poprzez likwidację ściany dzielącej salon od przedpokoju
- uzyskanie rozkładowych 3 pokojów poprzez podzielenie salonu na 2 mniejsze
- uzyskanie salonu z aneksem poprzez połączenie kuchni i sypialni przy jednoczesnym podziale obecnego salonu na 2 sypialnie
- możliwość powiększenia łazienki w każdym wariancie


Dodatkowe informacje: umeblowane, balkon, piwnica, komórka

Kontakt do agenta

Atalanta Nieruchomości
Marii Konopnickiej 32
71-132 Szczecin
tel.: 914875042
email: info@atalanta.szczecin.pl
fax: 914875031

Wyślij zapytanie

Imię i Nazwisko
Telefon
E-mail
Treść zapytania

Wyrażam zgodę na przetwarzanie moich danych osobowych przez firmę dla celów związanych z działalnością pośrednictwa w obrocie nieruchomościami, jednocześnie potwierdzam, iż zostałem poinformowany o tym, iż będę posiadać dostęp do treści swoich danych do ich edycji lub usunięcia.

Wyślij ofertę

E-mail
© 2025 Atalanta Nieruchomości. Wszystkie prawa zastrzeżone.