Kursy walut NBP: USD 3,98 | EUR 4,32 | CHF 4,53 |

Jesteśmy członkiem:           

Wyszukiwarka
Notes
Zgłoś ofertę
Kalkulator
zgłoś ofertę
Mieszkania
Domy
Działki
Lokale
Obiekty
Szczegóły oferty
Rodzaj oferty
lokal ( sprzedaż )
Numer oferty
436687
Miejscowość
SZCZECIN, CENTRUM
Ulica
Generała Ludomiła Rayskiego
Cena
530 000 PLN kalkulator
Cena za mkw
9 481,22 PLN mkw
Powierzchnia
55.90 m2
Liczba pięter
1
Rok budowy
1992
Opis
Na sprzedaż budynek wolnostojący, handlowo- usługowy znajdujący się przy ul. Rayskiego w Szczecinie .

Budynek reprezentatywny przy jednej z głównych dróg, dobrze widoczny, przy budynku miejsca parkingowe - strefa płatnego parkowania.
Lokal nadaje się na gabinet kosmetyczny, biurowy, kancelarię notarialną-adwokacką, gabinet stomatologiczny, lub siedzibę firmy.

Nieruchomość została wybudowana w 1992 roku w technologii tradycyjnej
ściany zewnętrzne trójwarstwowe 25 cm gazobeton + 5 cm wełny + 12cm z cegły kratówki.ściany działowe murowane z cegły dziurawki 12cm a część z płyt kartonowo-gipsowychtynki tradycyjne cementowo-wapniowe , ściany wygładzone i pomalowane.
strop nad parterem - żelbetowy wylewanystrop na piętrem, żelbetowy pokryty blachą cynkowąna parterze okna PCV, z roletami zewnętrznymina piętrze okna drewniane, starszego typu.

Na parterze i piętrze na posadzce ułożone są płyty marmurowe .

Grunt pod budynkiem należy do gminy Szczecin, właściciel dzierżawi go od lat 90-tych . Obecna umowa obowiązuje do 2030 roku a wysokość miesięcznego czynszu dzierżawnego na cele handlowe wynosi 1 399 zł / miesiąc .

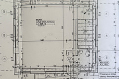
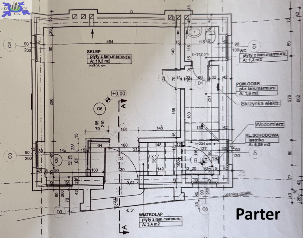
Na powierzchnię 55,9m2 składają się
parter
- sklep o pow. 19m2
- wiatrołap / poczekalnia o pow. 3,4m2
- toaleta o pow. 1,3m2
- pom. gospodarcze o pow. 1,6m2
- klatka schodowa

piętro
- biuro o pow. 22,8 m2 - aktualnie wydzielone dwa pomieszczenia .
- toaleta o pow. 1,7m2
- pom. gosp. o pow. 0,8 m2

Instalacje
- elektryczna 220/380 V
- wodociągowa - sieć miejska
- kanalizacja sanitarna - miejska
- ogrzewanie elektryczne
- teletechniczna

Lokalizacja oferuje wiele udogodnień, w pobliżu znajdują się sklepy, galerie handlowe Galaxy i Fala, liczne restauracje i różne usługi, blisko komunikacja miejska.
Nie szukaj dalej oferta na wyłączność .
Zapraszam na prezentację.



Dodatkowe informacje: ochrona

Kontakt do agenta

Atalanta Nieruchomości
Marii Konopnickiej 32
71-132 Szczecin
tel.: 914875042
email: info@atalanta.szczecin.pl
fax: 914875031

Wyślij zapytanie

Imię i Nazwisko
Telefon
E-mail
Treść zapytania

Wyrażam zgodę na przetwarzanie moich danych osobowych przez firmę dla celów związanych z działalnością pośrednictwa w obrocie nieruchomościami, jednocześnie potwierdzam, iż zostałem poinformowany o tym, iż będę posiadać dostęp do treści swoich danych do ich edycji lub usunięcia.

Wyślij ofertę

E-mail
© 2025 Atalanta Nieruchomości. Wszystkie prawa zastrzeżone.