Kursy walut NBP: USD 3,98 | EUR 4,32 | CHF 4,53 |

Jesteśmy członkiem:           

Wyszukiwarka
Notes
Zgłoś ofertę
Kalkulator
zgłoś ofertę
Mieszkania
Domy
Działki
Lokale
Obiekty
Szczegóły oferty
Rodzaj oferty
mieszkanie ( sprzedaż )
Numer oferty
436677
Miejscowość
SZCZECIN, WARSZEWO
Cena
849 000 PLN kalkulator
Cena za mkw
12 665,97 PLN mkw
Powierzchnia
67.03 m2
Liczba pokoi
3
Piętro
2
Liczba pięter
2
Rodzaj kuchni
aneks
Stan mieszkania
idealny
Rok budowy
2019
Opis
W księdze wieczystej powierzchnia całkowita wynosi 62,56m2, dodatkowo jest przestrzeń ok. 4,47m2 (górna łazienka), która przynależy wyłącznie do tego mieszkania.

Oferuję na sprzedaż dwupoziomowe, nowoczesne mieszkanie w jednej z najpiękniejszych, zielonych dzielnic Szczecina - pogranicze Warszewa i Żelechowa.
Mieszkanie posiada wyjątkowy, a zarazem ciekawy, otwarty układ pomieszczeń o wysokim standardzie, z widokiem na panoramę miasta oraz obszar chroniony NATURA 2000, zapewniający ciszę i spokój otoczenia.

Lokal od strony południowo-zachodniej, położony jest na 2 piętrze niskiej zabudowy, na nowym osiedlu z 2019r. przy Małych Błoniach, sam budynek wyposażony jest w windę oraz przystosowany jest dla osób niepełnosprawnych. W pobliżu znajdują się liczne przystanki komunikacji miejskiej umożliwiające transport w stronę m.in. centrum miasta. W pobliskim zasięgu jest dostęp do licznych sklepów, restauracji, centrum medycznego, szkół, przedszkoli, placu zabaw.

Mieszkanie jest w pełni umeblowane, sprzęt agd w zabudowie (zmywarka, lodówka, pralkosuszarka, indukcja, piekarnik, mikrofalówka), wysoki standard wykończenia stół z litego drewna, blaty kuchenne granitowe, na ścianach licówki z prawdziwej cegły z rozbiórek.

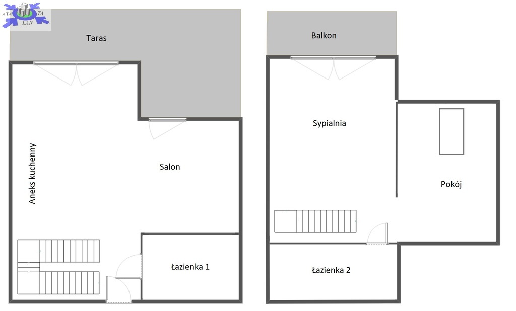
Na powierzchnię całkowitą mieszkania 67,03 m2 składają się

POZIOM 1
* przestronny salon (ok 12,86m2) z jadalnią (ok. 6,77m2), aneksem kuchennym (ok. 8,99m2) oraz wyjściem na taras
* łazienka z wanną oraz 2 umywalki (ok. 4,21 m2)
* przedpokój (ok. 7,8m2)

POZIOM 2
* sypialnia (ok. 14,26m2) z wyjściem na duży balkon
* pokój (idealny pod gabinet/biuro) ok. 4,78m2 (powierzchnia całkowita ok. 13m2)
* łazienka z prysznicem (jest dodatkową powierzchnią, uwzględnioną już w metrażu mieszkania ok. 4,47 m2)
* korytarz (ok. 2,89m2)

Wraz z mieszkaniem do zakupu oferowane są 2 miejsca postojowe w garażu podziemnym, dodatkowo płatne 50 tys/1 miejsce.
Mieszkanie gotowe do wydania od zaraz.

Polecam serdecznie ze względu na świetną lokalizację, cichą, zieloną okolicę.
Serdecznie zapraszam na prezentację.

Dodatkowe informacje: umeblowane, balkon, winda, parking

Kontakt do agenta

Atalanta Nieruchomości
Marii Konopnickiej 32
71-132 Szczecin
tel.: 914875042
email: info@atalanta.szczecin.pl
fax: 914875031

Wyślij zapytanie

Imię i Nazwisko
Telefon
E-mail
Treść zapytania

Wyrażam zgodę na przetwarzanie moich danych osobowych przez firmę dla celów związanych z działalnością pośrednictwa w obrocie nieruchomościami, jednocześnie potwierdzam, iż zostałem poinformowany o tym, iż będę posiadać dostęp do treści swoich danych do ich edycji lub usunięcia.

Wyślij ofertę

E-mail
© 2025 Atalanta Nieruchomości. Wszystkie prawa zastrzeżone.