Kursy walut NBP: USD 3,98 | EUR 4,32 | CHF 4,53 |

Jesteśmy członkiem:           

Wyszukiwarka
Notes
Zgłoś ofertę
Kalkulator
zgłoś ofertę
Mieszkania
Domy
Działki
Lokale
Obiekty
Szczegóły oferty
Rodzaj oferty
mieszkanie ( sprzedaż )
Numer oferty
436600
Miejscowość
MIĘDZYZDROJE
Cena
1 490 000 PLN kalkulator
Cena za mkw
17 951,81 PLN mkw
Powierzchnia
83.00 m2
Liczba pokoi
3
Piętro
3
Liczba pięter
5
Rodzaj kuchni
aneks
Stan mieszkania
bardzo dobry
Rok budowy
2013
Opis
Codzienna kawa na dużym balkonie w otoczeniu zieleni? Schłodzony szampan wieczorową porą z bryzą nadmorską? ... to małe drobne rzeczy, które umilą każdy Twój dzień. Zapraszam do zapoznania się z ciekawą ofertą sprzedaży gustownego apartamentu w Międzyzdrojach.

Prestiżowa lokalizacja, doceniana przez turystów z Polski i z zagranicy. Luksusowe hotele, czyste, piaszczyste plaże i zadbane kąpieliska już dawno stały się wizytówką tego miejsca. W okresie letnim Międzyzdroje przyciągają fanów polskiego kina, kitesurfingu i długich nadmorskich spacerów. Woliński Park Narodowy wyróżnia miasto na tle innych nadmorskich miejscowości.

Ofertą sprzedaży jest apartament klasy LUX położony na 3 piętrze bardzo dobrze utrzymanego apartamentowca. Budynek położony w pierwszej linii zabudowy od plaży. W najbliższym sąsiedztwie znajdują się piękna trasa spacerowo rekreacyjna - nowa promenada, liczne restauracje, punkty rekreacyjne, strzeżony parking.
Ośrodek wczasowy położony jest na uboczu, tuż przy plaży, z dala od tłumów i zgiełku miasta.

Apartament o podwyższonym standardzie, bardzo gustownie urządzony. Przyjemna kolorystyka zgodna z najnowszymi trendami wyposażenia wnętrz. Zabudowa stała o podwyższonym standardzie.
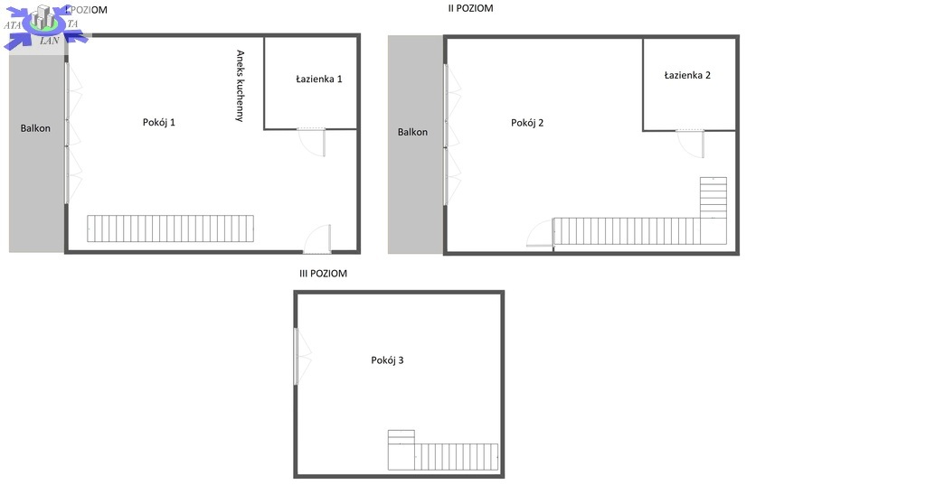
Ciekawy układ pomieszczeń - 3 kondygnacje, na każdej znajduje się pokój sypialny/salon.
Z salonu i pokoju sypialnego (I i II kondygnacja) wyjście na bardzo duży balkon/taras, wystawa okien od strony wschodniej.

Na powierzchnię całkowitą nieruchomości ok 117 m2 ( powierzchnia użytkowa ok. 83m2) składają się
- I kondygnacja - pokój dzienny/ salon ( z wyjściem na balkon/taras) z kuchnia w formie aneksu, łazienka z kabiną prysznicową oraz toaletą,
- II kondygnacja - bardzo duży pokój sypialny ( z wyjściem na balkon/taras), łazienka z kabiną prysznicową i toaletą, pomieszczenie gospodarcze,
- III poziom - pokój sypialny/ biuro.

Oferta godna polecenia zarówno na użytek własny jak i pod wynajem stanowiąc tym samym nieruchomość ŚWIETNA INWESTYCJĄ.
Apartamentowiec cieszy się bardzo dobrą opinią turystów i generuje duże zyski w skali roku.

Polecam ze względu na atrakcyjną lokalizację, wysoki standard wyposażenia oraz PEWNY ZYSK Z INWESTYCJI.

Serdecznie zapraszam na prezentację i spacer brzegiem morza..

Szczegóły u opiekuna oferty - Oferta Tylko u Nas, Klucze w biurze.

Dodatkowe informacje: balkon

Kontakt do agenta

Atalanta Nieruchomości
Marii Konopnickiej 32
71-132 Szczecin
tel.: 914875042
email: info@atalanta.szczecin.pl
fax: 914875031

Wyślij zapytanie

Imię i Nazwisko
Telefon
E-mail
Treść zapytania

Wyrażam zgodę na przetwarzanie moich danych osobowych przez firmę dla celów związanych z działalnością pośrednictwa w obrocie nieruchomościami, jednocześnie potwierdzam, iż zostałem poinformowany o tym, iż będę posiadać dostęp do treści swoich danych do ich edycji lub usunięcia.

Wyślij ofertę

E-mail
© 2025 Atalanta Nieruchomości. Wszystkie prawa zastrzeżone.