Kursy walut NBP: USD 3,98 | EUR 4,32 | CHF 4,53 |

Jesteśmy członkiem:           

Wyszukiwarka
Notes
Zgłoś ofertę
Kalkulator
zgłoś ofertę
Mieszkania
Domy
Działki
Lokale
Obiekty
Szczegóły oferty
Rodzaj oferty
dom wolnostojacy ( sprzedaż )
Numer oferty
436584
Miejscowość
SZCZECIN, KRZEKOWO
Cena
1 999 999 PLN kalkulator
Cena za mkw
13 817,87 PLN mkw
Powierzchnia
144.74 m2
Pow. działki
1000.00 m2
Liczba pokoi
6
Liczba pięter
1
Rodzaj kuchni
otwarta
Stan domu
bardzo dobry
Rok budowy
2019
Droga dojazdowa
asfaltowa
Opis
Na sprzedaż klimatyczny dom wolnostojący z 2019 r. posadowiony na dużej działce, położony w cichej części szczecińskiej dzielnicy Krzekowo. W odległości ok. 200 m Skwer Misia Wojtka.

NIERUCHOMOŚĆ
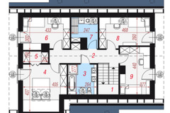
Dom o powierzchni użytkowej 144,74 m2 składa się z 2 kondygnacji, w tym

- parter (pow. użytkowa 79 m2) salon z jadalnią i wyjściem na taras (23,26 m2), pokój z wyjściem na taras (8,28 m2), otwarta kuchnia z meblami w zabudowie oraz sprzętem AGD (8,40 m2), spiżarnia (2,59 m2), łazienka z kabiną prysznicową, umywalką i toaletą (3,96 m2), garaż (18,90 m2), kotłownia (5,97 m2), wiatrołap (4,72 m2), hol (2,92 m2)
- poddasze (pow. użytkowa 65,74 m2) pokój (10,20 m2), pokój (10,18 m2), pokój (9,99 m2), pokój (9,09 m2) z garderobą (2,34 m2), łazienka z wanną, umywalką, bidetem i toaletą (5,88 m2), pralnia (4,59 m2), hol (8,52 m2), schody (4,95 m2).

Dom posiada strych (nieużytkowy) stanowiący dodatkową przestrzeń do przechowywania.

MEDIA I OPŁATY
Dostępne media prąd, gaz, woda, kanalizacja. Internet 5G (Plus).

Ogrzewanie nieruchomości i ciepła woda z pieca gazowego dwuobiegowego. Na parterze ogrzewanie podłogowe we wszystkich pomieszczeniach, natomiast na poddaszu podłogowe w łazience oraz pralni. W pozostałych pomieszczeniach grzejniki.
Płatne media prąd, gaz, woda, wywóz nieczystości, ścieki - według zużycia.
Roczny podatek od nieruchomości w wysokości ok. 1000 zł.

BUDYNEK i OKOLICA
- budynek niepodpiwniczony, dwukondygnacyjny
- oddany do użytku w 2019 r.
- wykonany w technologii tradycyjnej
- w dobrym standardzie
- stan wizualny i techniczny bardzo dobry, nieruchomość zadbana
- dach i strop ocieplone wełną mineralną wysokiej jakości (Isover)
- dach dwuspadowy, pokryty dachówką Creaton Titanium
- okna PCV marki Veka (trzyszybowe)
- drzwi wejściowe antywłamaniowe firmy KMT
- armatura marki Hans Grohe
- w łazienkach ceramika firmy TUBĄDZIN
- na podłogach panele oraz kafle, ściany gładzone i malowane, w salonie tynk japoński
- funkcjonalny układ pomieszczeń
- całość nowocześnie zaaranżowana oraz wykończona materiałami dobrej jakości
- dom wyposażony w centralny odkurzacz, instalację alarmową oraz monitoring
- lokalizacja i sąsiedztwo bardzo korzystne
- istnieje możliwość parkowania w garażu oraz na terenie działki.

DZIAŁKA
- działka o powierzchni 1000 m2, gotowa do zaaranżowania
- płaska, kształt regularny - prostokąt
- zabudowana budynkiem mieszkalnym, ozdobiona drzewkami i krzewami, ogrodzona
- teren przed domem wyłożony kostką
- teren działki uzbrojony w sieci elektryczną, gazową, wodną i kanalizacyjną
- dojazd do nieruchomości drogą asfaltową bezpośredni dostęp do drogi publicznej.

LOKALIZACJA
Bardzo dobra, spokojna lokalizacja blisko ul. Szerokiej. Wewnętrzne usytuowanie działki. Szybki i dogodny dojazd do centrum miasta.
Dobrze skomunikowana okolica (tramwaje, autobusy) z szybkim dostępem do punktów handlowo-usługowych, oświaty (Uniwersytet Szczeciński, szkoły, przedszkola itd.) oraz gastronomii. Tuż obok popularne wśród rodzin miejsce rekreacji - Skwer Misia Wojtka.

DLA KOGO JEST TA NIERUCHOMOŚĆ
Dom ze względu na rozkład pomieszczeń idealnie nadaje się dla rodziny z dziećmi. Przypadnie też do gustu osobom ceniącym sobie spokój i ciszę, chcącym mieszkać z dala od zgiełku miasta.

DLACZEGO WARTO KUPIĆ TĘ NIERUCHOMOŚĆ?
- ciche i spokojne miejsce z szybkim dostępem do Centrum
- idealne dla rodzin z dziećmi
- dom wolnostojący - jedna z nielicznych takich nieruchomości dostępnych w tej lokalizacji!
- nieruchomość zadbana, niewymagająca nakładów finansowych - do szybkiego zamieszkania
- duża działka z szerokimi możliwościami aranżacyjnymi.

Serdecznie polecam i zapraszam na prezentację!

Dodatkowe informacje: garaż

Kontakt do agenta

Atalanta Nieruchomości
Marii Konopnickiej 32
71-132 Szczecin
tel.: 914875042
email: info@atalanta.szczecin.pl
fax: 914875031

Wyślij zapytanie

Imię i Nazwisko
Telefon
E-mail
Treść zapytania

Wyrażam zgodę na przetwarzanie moich danych osobowych przez firmę dla celów związanych z działalnością pośrednictwa w obrocie nieruchomościami, jednocześnie potwierdzam, iż zostałem poinformowany o tym, iż będę posiadać dostęp do treści swoich danych do ich edycji lub usunięcia.

Wyślij ofertę

E-mail
© 2025 Atalanta Nieruchomości. Wszystkie prawa zastrzeżone.