Kursy walut NBP: USD 3,98 | EUR 4,32 | CHF 4,53 |

Jesteśmy członkiem:           

Wyszukiwarka
Notes
Zgłoś ofertę
Kalkulator
zgłoś ofertę
Mieszkania
Domy
Działki
Lokale
Obiekty
Szczegóły oferty
Rodzaj oferty
mieszkanie ( sprzedaż )
Numer oferty
436554
Miejscowość
SZCZECIN, CENTRUM
Ulica
Celna
Cena
614 700 PLN kalkulator
Cena za mkw
13 599,56 PLN mkw
Powierzchnia
45.20 m2
Liczba pokoi
2
Piętro
2
Liczba pięter
4
Rodzaj kuchni
aneks
Stan mieszkania
do wykonczenia
Rok budowy
2025
Opis
Planujesz skredytować to marzenie - zadzwoń.

Polecam na sprzedaż mieszkanie położone przy Bulwarach Szczecińskich, w samym centrum Szczecina.
Mieszkanie w stanie deweloperskim, do własnej aranżacji.

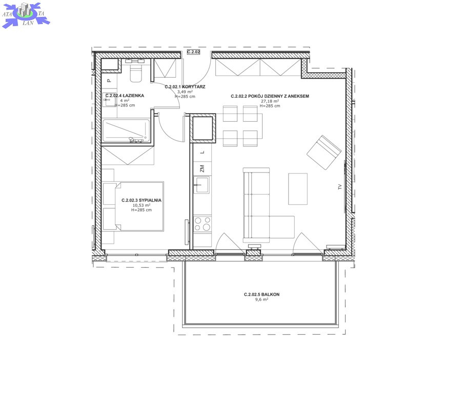
Lokal o powierzchni 45,20 m2 składa się z
- pokoju dziennego z aneksem o powierzchni 27,18 m2 z wyjściem na balkon - 10 m2
- sypialni o powierzchni 10,53 m2
- łazienki z wc o powierzchni 4 m2
- korytarza o powierzchni 3,49 m2 z miejscem na szafę.
Możliwość nabycia komórki lokatorskiej i garażu podziemnego za dodatkową opłatą 73 300 zł.

Budynek nowy, z windą, położony w doskonałym punkcie miasta - blisko bulwarów spacerowych, restauracji, sklepów i komunikacji miejskiej. To idealny wybór zarówno do zamieszkania, jak i jako inwestycja pod wynajem krótkoterminowy, która będzie przyciągać turystów i gości biznesowych przez cały rok.

Zapraszam na prezentację.


Dodatkowe informacje: balkon, winda, piwnica, garaż

Kontakt do agenta

Atalanta Nieruchomości
Marii Konopnickiej 32
71-132 Szczecin
tel.: 914875042
email: info@atalanta.szczecin.pl
fax: 914875031

Wyślij zapytanie

Imię i Nazwisko
Telefon
E-mail
Treść zapytania

Wyrażam zgodę na przetwarzanie moich danych osobowych przez firmę dla celów związanych z działalnością pośrednictwa w obrocie nieruchomościami, jednocześnie potwierdzam, iż zostałem poinformowany o tym, iż będę posiadać dostęp do treści swoich danych do ich edycji lub usunięcia.

Wyślij ofertę

E-mail
© 2025 Atalanta Nieruchomości. Wszystkie prawa zastrzeżone.