Kursy walut NBP: USD 3,98 | EUR 4,32 | CHF 4,53 |

Jesteśmy członkiem:           

Wyszukiwarka
Notes
Zgłoś ofertę
Kalkulator
zgłoś ofertę
Mieszkania
Domy
Działki
Lokale
Obiekty
Szczegóły oferty
Rodzaj oferty
mieszkanie ( sprzedaż )
Numer oferty
436538
Miejscowość
SZCZECIN, CENTRUM
Ulica
Celna
Cena
536 200 PLN kalkulator
Cena za mkw
14 898,58 PLN mkw
Powierzchnia
35.99 m2
Liczba pokoi
1
Piętro
2
Liczba pięter
4
Rodzaj kuchni
aneks
Stan mieszkania
do wykonczenia
Rok budowy
2025
Opis
Planujesz skredytować to marzenie - zadzwoń.

Na sprzedaż wyjątkowa nieruchomość położona przy Bulwarach Szczecińskich, w prestiżowej lokalizacji w samym sercu Szczecina.
Mieszkanie w stanie deweloperskim, do własnej aranżacji.

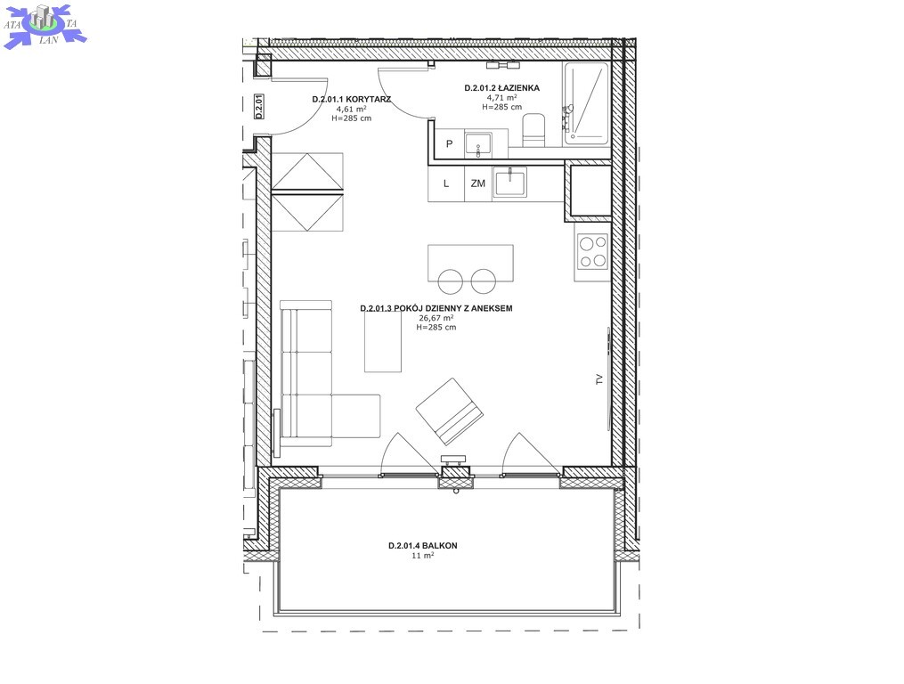
Lokal składa się z
- pokoju dziennego z aneksem o powierzchni 26,67 m2, z wyjściem na balkon - 11 m2
- łazienki z wc o powierzchni 4,71 m2
- korytarza o powierzchni 4,61 m2 z miejscem na szafę
Możliwość nabycia komórki lokatorskiej i garażu podziemnego za dodatkową opłatą 71 100 zł.

Budynek nowy, z windą, położony w doskonałym punkcie miasta - blisko bulwarów spacerowych, restauracji, sklepów i komunikacji miejskiej. To idealny wybór zarówno do zamieszkania, jak i jako inwestycja pod wynajem krótkoterminowy, która będzie przyciągać turystów i gości biznesowych przez cały rok.

Zapraszam na prezentację.


Dodatkowe informacje: balkon, winda, piwnica, garaż

Kontakt do agenta

Atalanta Nieruchomości
Marii Konopnickiej 32
71-132 Szczecin
tel.: 914875042
email: info@atalanta.szczecin.pl
fax: 914875031

Wyślij zapytanie

Imię i Nazwisko
Telefon
E-mail
Treść zapytania

Wyrażam zgodę na przetwarzanie moich danych osobowych przez firmę dla celów związanych z działalnością pośrednictwa w obrocie nieruchomościami, jednocześnie potwierdzam, iż zostałem poinformowany o tym, iż będę posiadać dostęp do treści swoich danych do ich edycji lub usunięcia.

Wyślij ofertę

E-mail
© 2025 Atalanta Nieruchomości. Wszystkie prawa zastrzeżone.