Rodzaj oferty
działka budowlana ( sprzedaż )
Opis
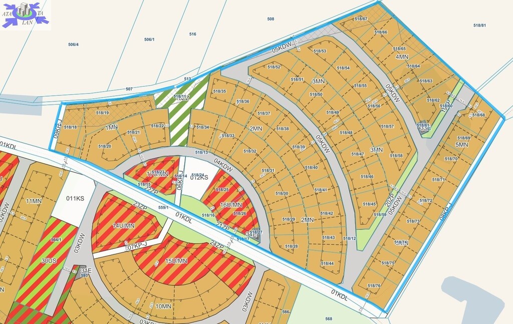
Prezentujemy wyjątkową ofertę sprzedaży gruntu inwestycyjnego o łącznej powierzchni 77 279 m2 (7,73 ha),
przeznaczonego pod budowę osiedla domów jednorodzinnych oraz usługowo/mieszkalnej i
zlokalizowany w spokojnej, perspektywicznej części Goleniowa - obręb ewidencyjny Ciechno.
To idealna propozycja dla dewelopera poszukującego gotowego do realizacji, kompleksowego projektu w atrakcyjnej lokalizacji.
GŁÓWNE KORZYŚCI Cena ofertowa to ok. 50% ceny rynkowej.
Teren objety MPZP na którym można od zaraz budować pow łaczeniu do świeci wodociągowej i kanalizacji sanitarnej
(lub skorzystanie ze zbiorników bezodpływowych).
Działki są podzielone i mają wykonane przyłacza elektroenergetyczne.
SUMA POW. PODZIELONYCH DZIAŁEK ZABUDOWY EFEKTYWNEJ - 57 829 m2
Kluczowe Informacje
Lokalizacja obręb Ciechno, gmina Goleniów
Przeznaczenie Budownictwo mieszkaniowe jednorodzinne i us.ługowo/mieszkalne
Cena brutto 4 073 489,31 zł (zawiera 23% VAT)
Cena netto 3 311 780 zł
Cena za m2 brutto ok. 52,71 zł/m2 za całość - 70,44 zł za działki pod zabudowęPowierzchnia całkowita (wszytkich działek z drogami) 77 279 m2.
Szczegóły Nieruchomości
Potencjał Inwestycyjny
Teren objęty jest Miejscowym Planem Zagospodarowania Przestrzennego "Nad Potokiem"
(Uchwała nr XL/513/10 Rady Miejskiej w Goleniowie), co gwarantuje stabilność prawną i jasno określone warunki zabudowy.
Co więcej, dla terenu została zawarta umowa przyłączeniowa z przedsiębiorstwem wodociągowo-kanalizacyjnym (Goleniowskie Wodociągi i Kanalizacja Sp. z o.o.)
na realizację przedsięwzięcia polegającego na budowie 57 budynków mieszkalnych jednorodzinnych.
To kluczowy krok, który znacząco skraca czas przygotowania inwestycji.
Lokalizacja
Obręb Ciechno to dynamicznie rozwijający się obszar Goleniowa, który łączy w sobie spokój i bliskość natury z doskonałym dostępem do pełnej infrastruktury miejskiej. Położenie gwarantuje sprawny dojazd do
Centrum Goleniowa
Szczecina (przez trasę S3)
Portu Lotniczego Szczecin-Goleniów
Goleniowskiego Parku Przemysłowego
Okolica charakteryzuje się nowoczesną zabudową jednorodzinną oraz rozległymi terenami zielonymi, co czyni ją idealnym miejscem dla osób ceniących ciszę, przestrzeń i komfort życia.
Zalety Oferty
Gotowy Projekt Deweloperski Teren z jasno zdefiniowanym potencjałem na budowę 57 domów.
Objęty MPZP Brak ryzyka związanego z uzyskiwaniem warunków zabudowy.
Zapewnione Media Podpisana umowa na przyłącze wodociągowe to ogromny atut i oszczędność czasu. Wykonane przyłącze energetyczne dla każdej działki. Do czasu wybudowania sieci kanalizacyjnej możliwa jest budowa zbiorników bezodpływowych.Atrakcyjna Cena Koszt zakupu gruntu w przeliczeniu na jeden dom jest niezwykle konkurencyjny.Korzyści Podatkowe Sprzedaż na podstawie faktury VAT 23%, co umożliwia odliczenie podatku przez firmy.
Duża, Skonsolidowana Powierzchnia Kompleks działek tworzy spójny obszar, idealny do zaprojektowania nowoczesnego osiedla.
Dodatkowe informacje: media - prąd, media - gaz