Kursy walut NBP: USD 3,98 | EUR 4,32 | CHF 4,53 |

Jesteśmy członkiem:           

Wyszukiwarka
Notes
Zgłoś ofertę
Kalkulator
zgłoś ofertę
Mieszkania
Domy
Działki
Lokale
Obiekty
Szczegóły oferty
Rodzaj oferty
dom ( sprzedaż )
Numer oferty
436456
Miejscowość
SZCZECIN, GUMIEŃCE
Cena
1 399 000 PLN kalkulator
Cena za mkw
10 064,75 PLN mkw
Powierzchnia
139.00 m2
Pow. działki
178.00 m2
Liczba pokoi
4
Liczba pięter
1
Rodzaj kuchni
otwarta
Stan domu
do wykonczenia
Rok budowy
2025
Droga dojazdowa
z kostki brukowej
Opis
Mam przyjemność zaprezentować Państwu bardzo interesujący dom 139m2, 4pokojowy w zabudowie szeregowej, znajdujący się na Gumieńcach.
Do nieruchomości przynależy ogród z tarasem, idealny do wypoczynku na świeżym powietrzu, oraz garaż z automatyczną bramą na pilota. Dodatkowo przy domu znajdują się miejsca parkingowe dla mieszkańców i gości.


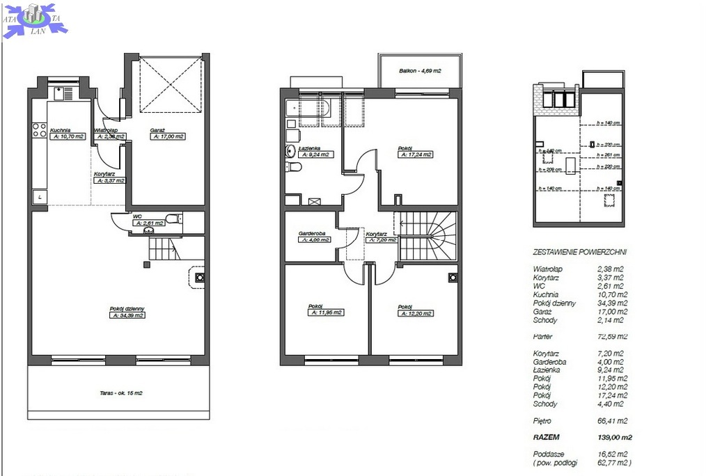
Na powierzchnię użytkową składają się


Parter

- Salon z aneksem kuchennym o powierzchni 45,09 m2,
- wc o powierzchni 2,61 m2,
- korytarz o powierzchni 3,37 m2,
- wiatrołap o powierzchni 2,38 m2,
- garaż o powierzchni 17,00 m2,
- schody o powierzchni 2,14 m2.
+ Taras o powierzchni 15m2,
+ Ogród o powierzchni 178 m2.


Piętro

- Pokój o powierzchni 17,24 m2,
- Pokój o powierzchni 12,20 m2,
- Pokój o powierzchni 11,95 m2,
- Garderoba o powierzchni 4 m2,
- Łazienka o powierzchni 9,24 m2,
- Korytarz o powierzchni 7,20 m2,
- Schody o powierzchni 4,20 m2.
+ Do swojej dyspozycji mają państwo również strych, który nie został wliczony w metraż domu .


Lokalizacja to doskonały wybór dla osób ceniących spokój, bezpieczeństwo i komfort, do centrum miasta zaledwie 15min.
W okolicy znajduje się dużo otwartej przestrzeni, co stanowi ogromny atut tej nieruchomości. W sąsiedztwie dostępne są również apteki, szkoły oraz przedszkola, co czyni to miejsce idealnym dla rodzin.

Nieruchomość sprzedawana w standardzie deweloperskim - Możliwe wykończenie domu pod klienta - odbiór pod klucz.

Serdecznie zapraszam na prezentację - ten dom z pewnością spełni Państwa oczekiwania!

Dodatkowe informacje: garaż

Kontakt do agenta

Atalanta Nieruchomości
Marii Konopnickiej 32
71-132 Szczecin
tel.: 914875042
email: info@atalanta.szczecin.pl
fax: 914875031

Wyślij zapytanie

Imię i Nazwisko
Telefon
E-mail
Treść zapytania

Wyrażam zgodę na przetwarzanie moich danych osobowych przez firmę dla celów związanych z działalnością pośrednictwa w obrocie nieruchomościami, jednocześnie potwierdzam, iż zostałem poinformowany o tym, iż będę posiadać dostęp do treści swoich danych do ich edycji lub usunięcia.

Wyślij ofertę

E-mail
© 2025 Atalanta Nieruchomości. Wszystkie prawa zastrzeżone.