Kursy walut NBP: USD 3,98 | EUR 4,32 | CHF 4,53 |

Jesteśmy członkiem:           

Wyszukiwarka
Notes
Zgłoś ofertę
Kalkulator
zgłoś ofertę
Mieszkania
Domy
Działki
Lokale
Obiekty
Szczegóły oferty
Rodzaj oferty
mieszkanie ( sprzedaż )
Numer oferty
436313
Miejscowość
SZCZECIN, CENTRUM
Ulica
Aleja Niepodległości
Cena
490 000 PLN kalkulator
Cena za mkw
7 975,26 PLN mkw
Powierzchnia
61.44 m2
Liczba pokoi
3
Piętro
3
Liczba pięter
4
Stan mieszkania
do kapitalnego remontu
Rok budowy
1960
Opis
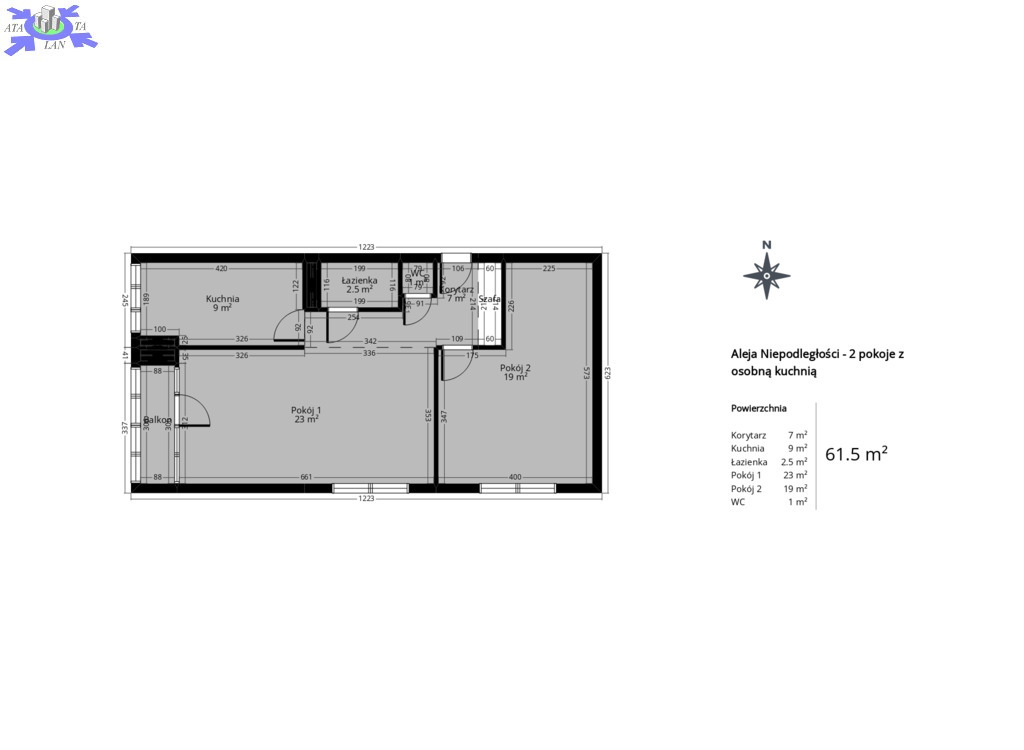
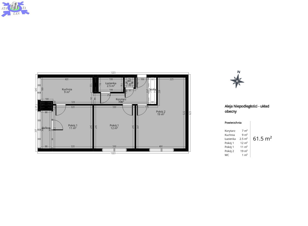
Przedstawiamy ofertę sprzedaży przestronnego mieszkania przy Al. Niepodległości - tuż obok Bramy Portowej - świetna propozycja dla osób szukających mieszkania w Centrum lub pod inwestycję na wynajem. Trzy pokoje z możliwością powrotu do pierwotnego układu 2-pokojowego z osobną kuchnią lub 3- pokojowego z aneksem kuchennym.

* W ogłoszeniu użyto poglądowych wizualizacji mających na celu zaprezentowanie potencjału aranżacyjnego mieszkania po remoncie - wg rzutu pokazującego układ salon z aneksem oraz 2 sypialnie.

Mieszkanie
* powierzchnia 61,44 m2, III piętro
* w obecnym układzie mamy ustawny korytarz z szafą w zabudowie, 3 osobne pokoje, dużą kuchnię, łazienkę i osobno wc, zabudowany balkon
* bardzo duży potencjał, jeśli chodzi o aranżację - stan obecny oraz możliwe zmiany przedstawione na rzutach
* ściany i podłogi - do remontu
* okna pcv w dobrym stanie
* mieszkanie słoneczne i ciepłe, orientacja na południe i zachód
* wymieniona instalacja grzewcza

Budynek
* niski blok z lat 60-tych
* schludna i czysta klatka schodowa
* zamknięte podwórko z bramą otwieraną elektrycznie
* plac zabaw dla dzieci
* monitoring

Okolica
Brama Portowa to serce Szczecina - miejsce, w którym historia spotyka się z nowoczesnością. To tu krzyżują się główne szlaki miasta, a każdy spacer zamienia się w podróż przez wieki. Dawna brama wjazdowa do miasta do dziś stanowi wyjątkowy punkt orientacyjny.
Rewelacyjna lokalizacja dla osób szukających mieszkania w Centrum. W okolicy znajdziemy absolutnie wszystko - od dużych węzłów komunikacji miejskiej, sklepy, punkty handlowe i usługowe, apteki, paczkomaty, a także liczne punkty gastronomiczne i usługowe.


Ważne
* czynsz z zaliczkami na fundusz remontowy, wodę i centralne ogrzewanie, śmieci, utrzymanie czystości itp. 900 zł
* wejście od zamykanego, dobrze utrzymanego podwórza
* ciepła woda i ogrzewanie miejskie
* przynależna spora piwnica (czysta i sucha)
* bardzo duży potencjał aranżacyjny


Dodatkowe informacje: balkon, piwnica, komórka

Kontakt do agenta

Atalanta Nieruchomości
Marii Konopnickiej 32
71-132 Szczecin
tel.: 914875042
email: info@atalanta.szczecin.pl
fax: 914875031

Wyślij zapytanie

Imię i Nazwisko
Telefon
E-mail
Treść zapytania

Wyrażam zgodę na przetwarzanie moich danych osobowych przez firmę dla celów związanych z działalnością pośrednictwa w obrocie nieruchomościami, jednocześnie potwierdzam, iż zostałem poinformowany o tym, iż będę posiadać dostęp do treści swoich danych do ich edycji lub usunięcia.

Wyślij ofertę

E-mail
© 2025 Atalanta Nieruchomości. Wszystkie prawa zastrzeżone.