Kursy walut NBP: USD 3,98 | EUR 4,32 | CHF 4,53 |

Jesteśmy członkiem:           

Wyszukiwarka
Notes
Zgłoś ofertę
Kalkulator
zgłoś ofertę
Mieszkania
Domy
Działki
Lokale
Obiekty
Szczegóły oferty
Rodzaj oferty
dom blizniak ( sprzedaż )
Numer oferty
436145
Miejscowość
DOBRA
Cena
899 000 PLN kalkulator
Cena za mkw
8 018,19 PLN mkw
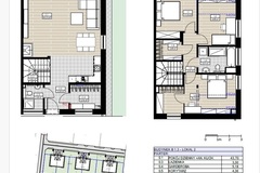
Powierzchnia
112.12 m2
Pow. działki
316.00 m2
Liczba pokoi
4
Liczba pięter
1
Stan domu
idealny
Rok budowy
2025
Droga dojazdowa
utwardzona
Opis
Na sprzedaż nowoczesny, energooszczędny dom w zabudowie bliźniaczej w podwyższonym standardzie deweloperskim wykończenia w świetnej lokalizacji w Dobrej.

Dom oddzielony od sąsiada podwójną ścianą nośną z dylatacją pomiędzy, został zaprojektowany z naciskiem na funkcjonalność i estetykę.

Media kanalizacja, prąd, woda miejska



Poniżej zestawienie użytych materiałów oraz standard wykończenia

- Ściany nośne Porotherm 24 cm + 20cm ocieplenia styropianem grafitowym, tynk mineralny.
- Tynki wewnętrzne gipsowe
- Wentylacja mechaniczna - Rekuperacja
- Ogrzewanie podłogowe w całym domu na parterze i na piętrze ( w łazience i toalecie wyprowadzenie pod grzejnik drabinkowy )
- Piec gazowy dwu-obiegowy z zamkniętą komorą spalania lub pompa ciepła ( za dopłatą )
- Okna trzyszybowe ( kolor zewnątrz jasny brąz, wewnątrz biały ), ciepły montaż . Okno tarasowe przesuwne.
- Puszki i elektryka w oknach na parterze - możliwość zamontowania rolet lub żaluzji fasadowych
- Schody wewnętrzne na piętro, żelbetowe wylewane

- Instalacja elektryczna, hydrauliczna
- W pokojach rozprowadzona instalacja internetowa oraz TV

- Dach dwuspadowy w konstrukcji drewnianej pokryty dachówką cementową w kolorze grafitowym.
- Dach ocieplony wełną mineralną o grubości 20 +12 cm
- Strop poddasza, płyty GK,

- Drzwi zewnętrzne stalowe lub aluminiowe
- Ogrodzenie między sąsiadami, systemowe, stalowe kratownice
- Podjazd do garażu i dojścia do budynków z kostki betonowej
- Teren wyrównany

Dodatkowo za dopłatą możliwość wykonania i zamontowania

- Pompy ciepła lub montaż hybrydy ( pompa ciepła z piecem gazowym w jednym urządzeniu )
- Rolet zewnętrznych lub żaluzji fasadowych
- Montaż klimatyzacji
- Wykonanie tarasu

Świetna lokalizacja, blisko sklepy, warzywniak, dogodny dojazd do szkoły publicznej podstawowej.
Oferta skierowana do najbardziej wymagających Klientów, chcących mieszkać w unikatowej lokalizacji gwarantującej ciszę, ceniących wysoki standard wykończenia.

Planowany termin zakończenia inwestycji to IV kwartał 2025 roku.
Kupujący zwolniony z opłaty PCC, 2 % do Urzędu Skarbowego.

Zapraszam na prezentacje

Dodatkowe informacje: ochrona, garaż

Kontakt do agenta

Atalanta Nieruchomości
Marii Konopnickiej 32
71-132 Szczecin
tel.: 914875042
email: info@atalanta.szczecin.pl
fax: 914875031

Wyślij zapytanie

Imię i Nazwisko
Telefon
E-mail
Treść zapytania

Wyrażam zgodę na przetwarzanie moich danych osobowych przez firmę dla celów związanych z działalnością pośrednictwa w obrocie nieruchomościami, jednocześnie potwierdzam, iż zostałem poinformowany o tym, iż będę posiadać dostęp do treści swoich danych do ich edycji lub usunięcia.

Wyślij ofertę

E-mail
© 2025 Atalanta Nieruchomości. Wszystkie prawa zastrzeżone.