Kursy walut NBP: USD 3,98 | EUR 4,32 | CHF 4,53 |

Jesteśmy członkiem:           

Wyszukiwarka
Notes
Zgłoś ofertę
Kalkulator
zgłoś ofertę
Mieszkania
Domy
Działki
Lokale
Obiekty
Szczegóły oferty
Rodzaj oferty
mieszkanie ( sprzedaż )
Numer oferty
436061
Miejscowość
SZCZECIN, ŚRÓDMIEŚCIE-CENTRUM
Ulica
Bohaterów Getta Warszawskiego
Cena
355 550 PLN kalkulator
Cena za mkw
12 302,77 PLN mkw
Powierzchnia
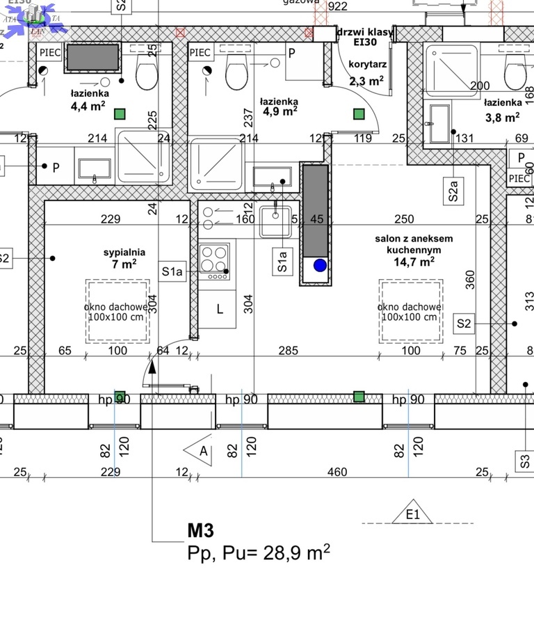
28.90 m2
Liczba pokoi
2
Piętro
4
Liczba pięter
4
Rodzaj kuchni
aneks
Stan mieszkania
do wykonczenia
Rok budowy
2026
Opis

Planujesz skredytować to marzenie - zadzwoń

Nowa inwestycja znanego dewelopera - adaptacja poddasza w kamienicy z 1930 roku, w centrum miasta, oddanie w sierpniu 2026.

Zamieszkaj w nowym mieszkaniu-stan deweloperski do wykończenia wg własnego uznania.

Na powierzchnię 28,9 m2 składają się

salon z aneksem kuchennym 14,7 m2sypialnia 7,0 m2łazienka 4,9 m2korytarz 2,3 m2
Ogrzewanie gazowe, piec dwuobiegowy /CO,CW/

OPŁATY czynsz ok 300 zł (zaliczki na wodę, FR) gaz i prąd wg zużycia
MEDIA ciepła woda - z pieca gazowego, CO gazowe
OKOLICA liczne sklepy, komunikacja miejska od 200 do 500 m, bary, restauracje, Galeria Kaskada 1200 m.

Kupujący nie płaci PCC.

W sumie inwestycja obejmuje 5 apartamentów 2 pokojowych od 28 m2 do 36 m2 (ceny zaczynają się od 355000 zł).

Zapraszam do kontaktu.







Kontakt do agenta

Atalanta Nieruchomości
Marii Konopnickiej 32
71-132 Szczecin
tel.: 914875042
email: info@atalanta.szczecin.pl
fax: 914875031

Wyślij zapytanie

Imię i Nazwisko
Telefon
E-mail
Treść zapytania

Wyrażam zgodę na przetwarzanie moich danych osobowych przez firmę dla celów związanych z działalnością pośrednictwa w obrocie nieruchomościami, jednocześnie potwierdzam, iż zostałem poinformowany o tym, iż będę posiadać dostęp do treści swoich danych do ich edycji lub usunięcia.

Wyślij ofertę

E-mail
© 2025 Atalanta Nieruchomości. Wszystkie prawa zastrzeżone.