Rodzaj oferty
mieszkanie ( sprzedaż )
Cena za mkw
10 281,73 PLN mkw
Stan mieszkania
do wykonczenia
Droga dojazdowa
asfaltowa
Opis
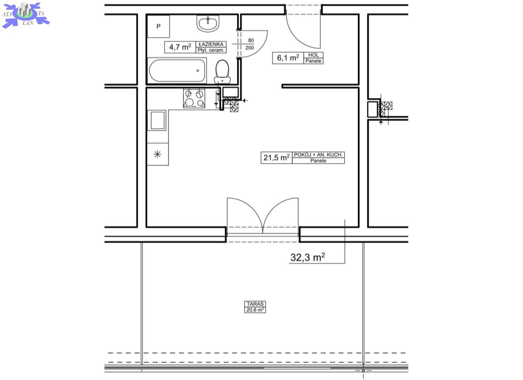
Na sprzedaż kawalerka w promocyjnej cenie!
Oferujemy Państwu przestronną i ustawną kawalerkę o powierzchni 32,3 m2, znajdującą się na parterze nowoczesnego budynku.
Lokal jest w stanie deweloperskim, co daje możliwość własnej aranżacji wnętrz.
Główne informacje
- ogrzewanie i ciepła woda z SEC
- niski czynsz
- możliwość wykupu miejsca postojowego w garażu lub dodatkowego miejsca parkingu na zewnątrz
Jeśli preferują Państwo gotowe rozwiązania, istnieje możliwość wykończenia mieszkania przez dewelopera, który zadba o każdy detal i stworzy idealne miejsce do zamieszkania lub wynajmu.
Warto wspomnieć, że posiadamy również mieszkania jedno , dwu i trzy pokojowe na parterze, pierwszym i drugim piętrze, zatem każdy może znaleźć odpowiednią przestrzeń dopasowaną do swoich potrzeb.
Promocyjna cena!
Obniżka z 369.000 zł na 332.100 zł
Zapraszamy do kontaktu w celu uzyskania szczegółowych informacji oraz umówienia się na prezentację.
Dodatkowe informacje: ochrona, telefon, internet, TV kablowa, winda, garaż