Kursy walut NBP: USD 3,98 | EUR 4,32 | CHF 4,53 |

Jesteśmy członkiem:           

Wyszukiwarka
Notes
Zgłoś ofertę
Kalkulator
zgłoś ofertę
Mieszkania
Domy
Działki
Lokale
Obiekty
Szczegóły oferty
Rodzaj oferty
mieszkanie ( sprzedaż )
Numer oferty
435577
Miejscowość
SZCZECIN, ŚRÓDMIEŚCIE-CENTRUM
Ulica
Gabriela Narutowicza
Cena
840 000 PLN kalkulator
Cena za mkw
10 120,48 PLN mkw
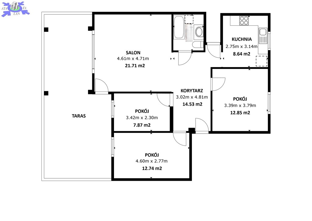
Powierzchnia
83.00 m2
Liczba pokoi
4
Liczba pięter
5
Stan mieszkania
bardzo dobry
Rok budowy
2001
Opis
Na sprzedaż przestronne, 4-pokojowe mieszkanie o powierzchni 83 m2 z wyjątkowym tarasem (ponad 43 m2) w samym centrum miasta.

Nieruchomość znajduje się w zadbanym budynku z 2001 roku.

Układ mieszkania
duży salon z wyjściem na taras
3 sypialnie
osobna, widna kuchnia
łazienka z wanną i WC pomieszczenie gospodarcze (idealne na pralnię lub garderobę)
przestronny przedpokój
Taras znajduje się od strony ulicy, na wysokości pierwszego piętra, co zapewnia komfort i prywatność, a jednocześnie dostęp z poziomu 0 (bez barier).

Atuty nieruchomości
taras 43 m2 - idealny na letnie spotkania, relaks lub zieloną strefę w centrum
zamknięte podwórze z bramą wjazdową (darmowy parking w centrum)
możliwość zakupu/wynajęcia dodatkowego miejsca parkingowego w garażu podziemnym dodatkowe pomieszczenie gospodarcze
osobna kuchnia, wygodny układ pokoi
budynek z 2001 roku, zadbana klatka
doskonała lokalizacja - blisko sklepy, szkoły, komunikacja miejska, usługi

Mieszkanie w księdze wieczystej opisane jako 3 pokoje, kuchnia, przedpokój, łazienka i WC-przez obecnych właścicieli zostało przearanżowane na 4 pokoje.

Koszty utrzymania
Czynsz administracyjny ok. 860 zł przy 5 osobach (z zaliczkami).

Mieszkanie idealne dla rodziny lub jako inwestycja w centrum miasta.

Planujesz skredytować to marzenie-zadzwoń.

Dodatkowe informacje: balkon, garaż, parking

Kontakt do agenta

Atalanta Nieruchomości
Marii Konopnickiej 32
71-132 Szczecin
tel.: 914875042
email: info@atalanta.szczecin.pl
fax: 914875031

Wyślij zapytanie

Imię i Nazwisko
Telefon
E-mail
Treść zapytania

Wyrażam zgodę na przetwarzanie moich danych osobowych przez firmę dla celów związanych z działalnością pośrednictwa w obrocie nieruchomościami, jednocześnie potwierdzam, iż zostałem poinformowany o tym, iż będę posiadać dostęp do treści swoich danych do ich edycji lub usunięcia.

Wyślij ofertę

E-mail
© 2025 Atalanta Nieruchomości. Wszystkie prawa zastrzeżone.