Kursy walut NBP: USD 3,98 | EUR 4,32 | CHF 4,53 |

Jesteśmy członkiem:           

Wyszukiwarka
Notes
Zgłoś ofertę
Kalkulator
zgłoś ofertę
Mieszkania
Domy
Działki
Lokale
Obiekty
Szczegóły oferty
Rodzaj oferty
mieszkanie ( sprzedaż )
Numer oferty
435149
Miejscowość
KRĄPIEL
Cena
185 000 PLN kalkulator
Cena za mkw
3 311,85 PLN mkw
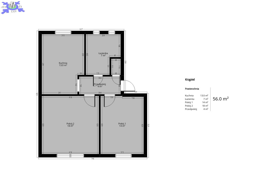
Powierzchnia
55.86 m2
Liczba pokoi
2
Piętro
1
Liczba pięter
1
Stan mieszkania
do remontu
Rok budowy
1950
Opis
Na sprzedaż bezczynszowe mieszkanie o powierzchni 55,86mkw w miejscowości Krąpiel w gminie Stargard. Lokal położony jest w budynku wielorodzinnym - do dyspozycji mieszkańców jest ogródek, piwnica oraz pomieszczenie gospodarcze o pow. 12,5mkw. Mieszkanie daje szerokie możliwości aranżacyjne - idealne zarówno dla pary jak i małej rodziny. Jest to też świetna propozycja dla pracodawców lub inwestorów szukających mieszkania pod wynajem. W ogłoszeniu wykorzystano wizualizację przedstawiającą przykładową aranżację pomieszczeń.

Mieszkanie
* powierzchnia 55,86mkw., I piętro, wys. 2,56m
* 2 pokoje rozkładowe, kuchnia, łazienka, korytarz, schowek
* obecnie ogrzewanie z pieca na paliwo stałe
* zbiornik na wodę 120 L - woda podgrzewana z pieca lub elektrycznie
* kanalizacja i wodociąg gminny
* okna pcv w dobrym stanie
* orientacja na północny wschód (kuchnia i łazienka) oraz południowy zachód (pokoje)
* drzwi antywłamaniowe

Budynek
* niski budynek wielorodzinny (4 rodziny)
* na działce, na której posadowiony jest budynek, znajduje się ogródek do dyspozycji mieszkańców oraz budynek gospodarczy o pow. 12,5mkw

Okolica
Krąpiel to spokojna i dobrze skomunikowana miejscowość położona zaledwie kilka kilometrów od Stargardu. Dzięki bliskości drogi krajowej oraz linii kolejowej, mieszkańcy mają zapewniony szybki dojazd zarówno do Stargardu, jak i w kierunku Szczecina. Dodatkowo dla dzieci w wieku szkolnym funkcjonuje specjalny bus, który ma przystanek nieopodal domu.
Wieś oferuje podstawowe udogodnienia - znajdują się tu sklepy spożywcze, paczkomat, kościół, a w pobliskim Stargardzie dostępna jest pełna infrastruktura szkoły, przedszkola, galerie handlowe i instytucje publiczne.
Krąpiel to także dobra propozycja dla osób ceniących ciszę i kontakt z naturą - okolica jest zielona i sprzyja spacerom oraz rekreacji na świeżym powietrzu.
Najbliższy sklepik osiedlowy znajduje się w odległości zaledwie 120 m, sklep Dino w odległości 800 m.

Ważne
mieszkanie bezczynszowe = niskie koszty utrzymania
do dyspozycji piwnica, pomieszczenie gospodarcze na zewnątrz oraz ogród
budżetowa opcja dla osób szukających własnego lokum w atrakcyjnej cenie
mieszkanie zostało wysprzątane i odmalowane


Dodatkowe informacje: piwnica, komórka

Kontakt do agenta

Atalanta Nieruchomości
Marii Konopnickiej 32
71-132 Szczecin
tel.: 914875042
email: info@atalanta.szczecin.pl
fax: 914875031

Wyślij zapytanie

Imię i Nazwisko
Telefon
E-mail
Treść zapytania

Wyrażam zgodę na przetwarzanie moich danych osobowych przez firmę dla celów związanych z działalnością pośrednictwa w obrocie nieruchomościami, jednocześnie potwierdzam, iż zostałem poinformowany o tym, iż będę posiadać dostęp do treści swoich danych do ich edycji lub usunięcia.

Wyślij ofertę

E-mail
© 2025 Atalanta Nieruchomości. Wszystkie prawa zastrzeżone.