Kursy walut NBP: USD 3,98 | EUR 4,32 | CHF 4,53 |

Jesteśmy członkiem:           

Wyszukiwarka
Notes
Zgłoś ofertę
Kalkulator
zgłoś ofertę
Mieszkania
Domy
Działki
Lokale
Obiekty
Szczegóły oferty
Rodzaj oferty
dom ( sprzedaż )
Numer oferty
435010
Miejscowość
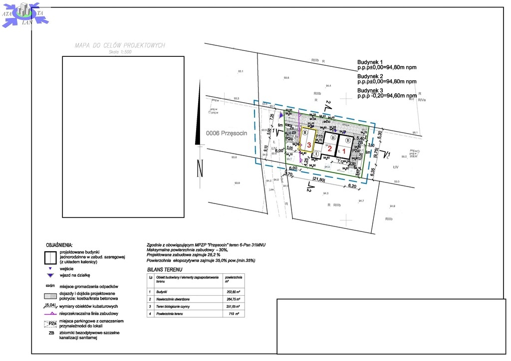
PRZĘSOCIN
Cena
860 000 PLN kalkulator
Cena za mkw
9 435 PLN mkw
Powierzchnia
91.15 m2
Pow. działki
263.00 m2
Liczba pokoi
4
Liczba pięter
1
Stan domu
do wykonczenia
Rok budowy
2026
Opis
Planujesz skredytować to marzenie - zadzwoń.

Ciekawy projekt budynku, przemyślany i ergonomiczny rozkład pomieszczeń, wysoki standard deweloperskiego wykończenia oraz dobra lokalizacja w parze z relatywnie niską ceną tworzą tę ofertę bardzo atrakcyjną.

Budynek o powierzchni 91,15 m2 z dużym salonem z aneksem kuchennym, miejscem na jadalnię, 3 sypialniami i 2 łazienkami, a także strychem jako pomieszczeniem magazynowym (podłoga z płyt OSB, właz z drabinką).

Bardzo dobrze skomunikowany w odległości ok. 400 metrów od przystanków komunikacji miejskiej skąd dojedziemy bezpośrednio zarówno do centrum Szczecina jak i Polic, w okolicach liczne punkty handlowe oraz usługowe, park handlowy Vendo Park oraz to co najcenniejsze, spacerem 15 minut do puszczy Wkrzańskiej.

Idealne miejsce dla rodziny, poszukującej segmentu z ogródkiem, w cenie mieszkania w bloku, gdzie komunikacja nie jest przeszkodą.

Kupujący zwolniony z podatku PCC 2%

Planowane zakończenie budowy koniec 2026, planowane przeniesienie własności do końca kwietnia 2027.

Zapraszam do zapoznania się z ofertą.



Dodatkowe informacje: garaż

Kontakt do agenta

Atalanta Nieruchomości
Marii Konopnickiej 32
71-132 Szczecin
tel.: 914875042
email: info@atalanta.szczecin.pl
fax: 914875031

Wyślij zapytanie

Imię i Nazwisko
Telefon
E-mail
Treść zapytania

Wyrażam zgodę na przetwarzanie moich danych osobowych przez firmę dla celów związanych z działalnością pośrednictwa w obrocie nieruchomościami, jednocześnie potwierdzam, iż zostałem poinformowany o tym, iż będę posiadać dostęp do treści swoich danych do ich edycji lub usunięcia.

Wyślij ofertę

E-mail
© 2025 Atalanta Nieruchomości. Wszystkie prawa zastrzeżone.