Kursy walut NBP: USD 3,98 | EUR 4,32 | CHF 4,53 |

Jesteśmy członkiem:           

Wyszukiwarka
Notes
Zgłoś ofertę
Kalkulator
zgłoś ofertę
Mieszkania
Domy
Działki
Lokale
Obiekty
Szczegóły oferty
Rodzaj oferty
mieszkanie ( sprzedaż )
Numer oferty
435002
Miejscowość
PRZECŁAW
Ulica
Przecław
Cena
699 000 PLN kalkulator
Cena za mkw
8 411,55 PLN mkw
Powierzchnia
83.10 m2
Liczba pokoi
4
Piętro
4
Liczba pięter
4
Stan mieszkania
bardzo dobry
Rok budowy
1998
Opis
Na sprzedaż nowoczesne, mieszkanie dwupoziomowe, położone w niskim budynku z cegły na Przecławiu.

Spółdzielcze własnościowe prawo do lokalu, możliwość kupna dla obywatela z poza Unii Europejskiej.

Za dodatkową opłatą istnieje możliwość kupna garażu o pow. 16,9m2, który znajduje się pod budynkiem.

Do mieszkania przynależy piwnica o pow. 4,41m2

Najważniejsze informacje, oraz standard wykończenia

kuchnia robiona na zamówienia, wyposażona w sprzęt AGD płyta indukcyjna, piekarnik , mikrofala, zmywarka , lodówka, okap,
w dwóch pokojach stałe zabudowy szaf oraz w przedpokoju.
w cenie w salonie zestaw kina domowego 5 +1 , istnieje możliwość pozostawienia części mebli ruchomych.
w salonie i sypialni zamontowane jednostki do klimatyzacji, z przygotowaniem do podłączenia na dachu jednostki zewnętrznej ( w porozumieniu ze spółdzielnią trzeba nadmurować komin )
istnieje możliwość wykonania balkonu ( jest zgoda ze spółdzielni )
ogrzewanie z bezpiecznego, ekonomicznego pieca gazowego
drzwi wewnętrzne firmy Dre , zewnętrzne antywłamaniowe Gerda
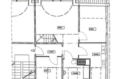
Na powierzchnię użytkową składają się

I kondygnacja (51,6m2 )

- salon z możliwością zrobienia balkonu
- osobna kuchnia
- pokój dziecka
- sypialnia
- łazienka z toaletą
- korytarz

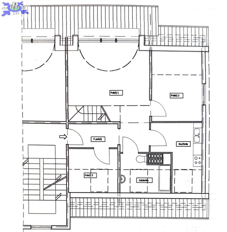
II kondygnacja - poddasze o pow. 31,5m2 - jeden pokój rekreacyjny .

Budynek murowany, ocieplony styropianem, czysta szeroka klatka schodowa, przy nieruchomości dużo miejsc parkingowych.
Na osiedlu, sklepy Biedronka, Żabka, Lidl, Apteka, przychodnia, pizzeria, blisko przedszkole, żłobek oraz szkoła podstawowa
Do komunikacji miejskiej, spacerem dojdziemy w 3 minuty - autobus linii 241.

Oferta na wyłączność, nie szukaj dalej,.
Zapraszam na prezentację.




Dodatkowe informacje: piwnica, garaż, komórka

Kontakt do agenta

Atalanta Nieruchomości
Marii Konopnickiej 32
71-132 Szczecin
tel.: 914875042
email: info@atalanta.szczecin.pl
fax: 914875031

Wyślij zapytanie

Imię i Nazwisko
Telefon
E-mail
Treść zapytania

Wyrażam zgodę na przetwarzanie moich danych osobowych przez firmę dla celów związanych z działalnością pośrednictwa w obrocie nieruchomościami, jednocześnie potwierdzam, iż zostałem poinformowany o tym, iż będę posiadać dostęp do treści swoich danych do ich edycji lub usunięcia.

Wyślij ofertę

E-mail
© 2025 Atalanta Nieruchomości. Wszystkie prawa zastrzeżone.