Kursy walut NBP: USD 3,98 | EUR 4,32 | CHF 4,53 |

Jesteśmy członkiem:           

Wyszukiwarka
Notes
Zgłoś ofertę
Kalkulator
zgłoś ofertę
Mieszkania
Domy
Działki
Lokale
Obiekty
Szczegóły oferty
Rodzaj oferty
mieszkanie ( sprzedaż )
Numer oferty
434970
Miejscowość
SZCZECIN, NIEBUSZEWO
Cena
415 000 PLN kalkulator
Cena za mkw
8 829,79 PLN mkw
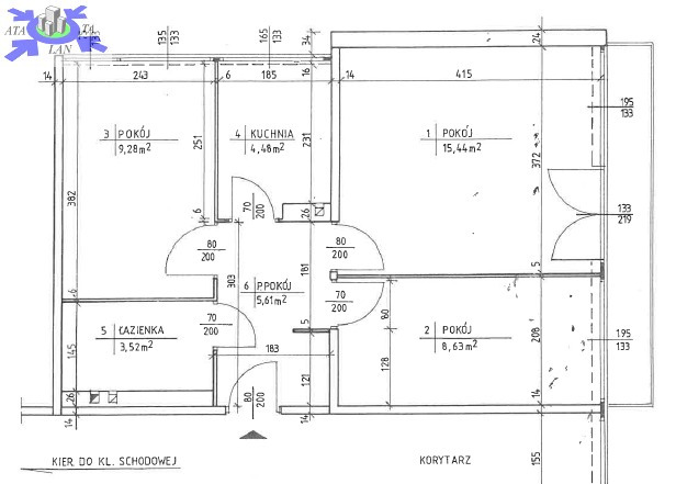
Powierzchnia
47.00 m2
Liczba pokoi
3
Piętro
3
Liczba pięter
12
Stan mieszkania
do kapitalnego remontu
Rok budowy
1971
Opis
Szanowni Państwo,

Mam przyjemność zaprezentować Państwu na sprzedaż słoneczne 3 pokojowe, w pełni rozkładowe mieszkanie w wysokim bloku na granicy dzielnicy Niebuszewo - Drzetowo - Grabowo o powierzchni użytkowej 47 m2.

LOKALIZACJA
Nieruchomość znajduje się w Szczecinie na ulicy Rugiańskiej. Okolica świetnie skomunikowana z całym miastem, liczne linie tramwajowe i autobusowe. W pobliżu znajdują się liczne sklepy, Fabryka Wody, inne punkty usługowe, a także szkoły i przedszkola.

O NIERUCHOMOŚCI
Nieruchomość położona jest na III piętrze, XII kondygnacyjnego wieżowca z wielkiej płyty. Elewacja jak i klatka schodowa była remontowa. W bloku mamy do dyspozycji 2 windy. Okna mieszkania wychodzą na dwie strony budynku, balkon od południa. Mieszkanie przestronne, w przedpokoju miejsce na szafę. Do mieszkania przynależy piwnica. W okolicy budynku liczne miejsca postojowe Wjazd na podwórko przez szlaban na pilota. Ogrzewanie miejskie, CWU - SEC. Piony kuchenne wymienione. Mieszkanie w stanie - do remontu.


UKŁAD I WYPOSAŻENIE
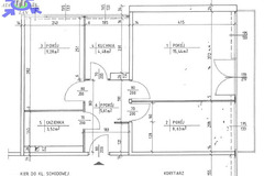
Mieszkanie o powierzchni 47 m2 składa się z
- pokój dzienny z balkonem
- sypialnia 1
- sypialnia 2
- kuchnia
- łazienka z WC
- korytarz

ATUTY
- dobrze skomunikowane, liczne linie tramwajowe i autobusowe
- w okolicy dużo zieleni
- elewacja po ociepleniu
- 2 szybowe okna PVC
- parking uliczny
- balkon
- szybki termin wydania
- cena do negocjacji


Nie czekaj umów się na prezentację! ZAPRASZAM!


Dodatkowe informacje: balkon, winda, piwnica, komórka

Kontakt do agenta

Atalanta Nieruchomości
Marii Konopnickiej 32
71-132 Szczecin
tel.: 914875042
email: info@atalanta.szczecin.pl
fax: 914875031

Wyślij zapytanie

Imię i Nazwisko
Telefon
E-mail
Treść zapytania

Wyrażam zgodę na przetwarzanie moich danych osobowych przez firmę dla celów związanych z działalnością pośrednictwa w obrocie nieruchomościami, jednocześnie potwierdzam, iż zostałem poinformowany o tym, iż będę posiadać dostęp do treści swoich danych do ich edycji lub usunięcia.

Wyślij ofertę

E-mail
© 2025 Atalanta Nieruchomości. Wszystkie prawa zastrzeżone.