Kursy walut NBP: USD 3,98 | EUR 4,32 | CHF 4,53 |

Jesteśmy członkiem:           

Wyszukiwarka
Notes
Zgłoś ofertę
Kalkulator
zgłoś ofertę
Mieszkania
Domy
Działki
Lokale
Obiekty
Szczegóły oferty
Rodzaj oferty
dom blizniak ( sprzedaż )
Numer oferty
434896
Miejscowość
KLINISKA WIELKIE
Cena
999 000 PLN kalkulator
Cena za mkw
7 400 PLN mkw
Powierzchnia
135.00 m2
Pow. działki
350.00 m2
Liczba pokoi
4
Liczba pięter
1
Rodzaj kuchni
aneks
Stan domu
do wykonczenia
Rok budowy
2025
Droga dojazdowa
utwardzona
Opis
Twój komfortowy dom po zielonej stronie Szczecina

Oferuję dom w zabudowie bliźniaczej w cichej lokalizacji z łatwym i szybkim dojazdem do Centrum Szczecina.
Zabudowa znajduje się w Kliniskach Wielkich, osiedle Bociana Łąka.
Osiedle Bociania Łąka to kameralny projekt w cichej okolicy, w sąsiedztwie łąk i lasów. Budynki, wykonane z wysokiej klasy materiałów, wyróżniają się estetyczną architekturą. Do osiedla prowadzi kilka dróg dojazdowych.

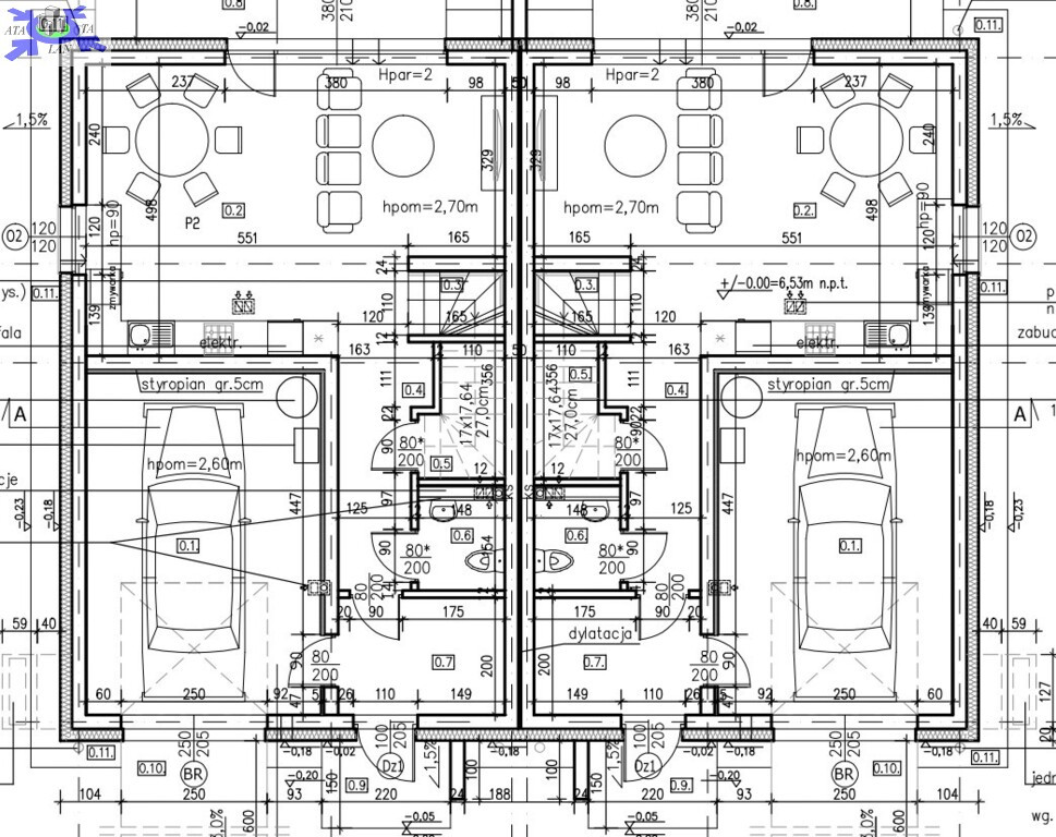
Bliźniak o powierzchni użytkowej 135 m2. (powierzchnia całkowita - 148,7 m2) posadowiony na działce o powierzchni około 350 m2.

PARTER 75,35 m2
- salon z aneksem kuchennym- 32,73 m2,
- łazienka - 2,27 m2,
- korytarz - 5,59 m2,
- pomieszczenie gospodarcze - 2,17 m2,
- schody - 2,56 m2,
- wiatrołap - 5,70 m2,
- garaż - 23,51 m2.

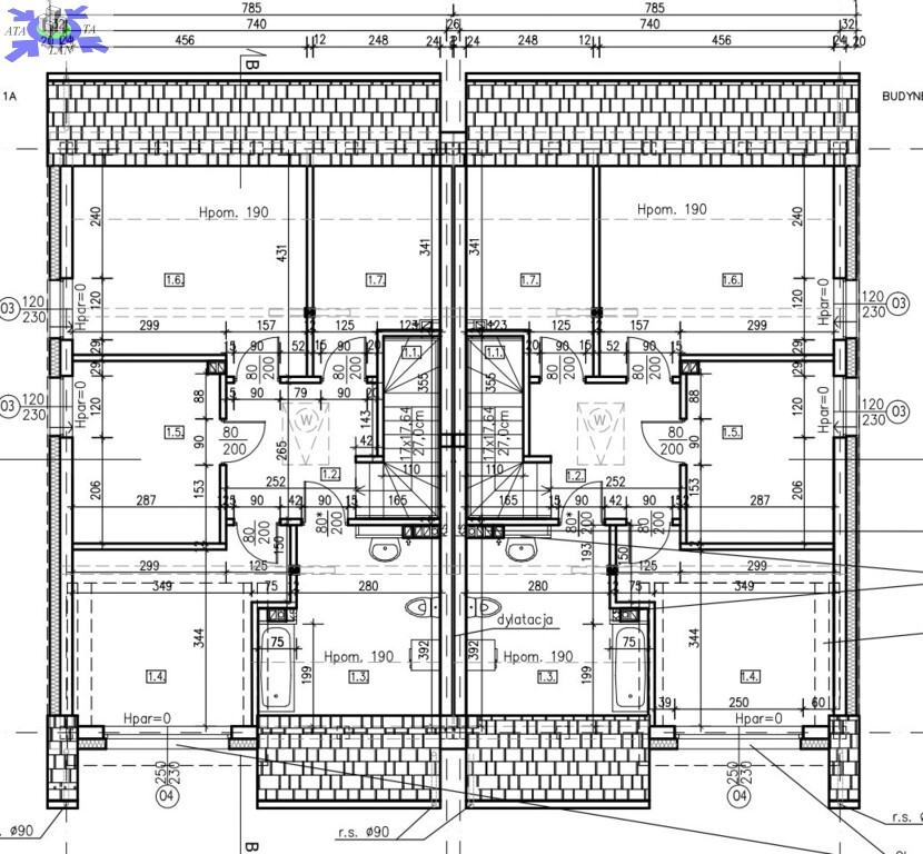
PODDASZE 73,35 m2
- pokój - 10,18 m2,
- pokój - 13,36 m2,
- pokój - 18,39 m2,
- łazienka - 12,03 m2,
- garderoba - 6,32 m2,
- korytarz - 7,63 m2,
- schody - 2,56 m2.

Dom budowany z wysokiej jakości materiałów
- ściany zewnętrzne z bloczków betonowych
- ocieplenie ścian zewnętrznych styropianem o grub. 20 cm
- strop i schody żelbetowe,
- okna PCV
- drzwi wejściowe przeciwwłamaniowe,
- tynki wewnętrzne gipsowe,
- pompa ciepła
- energooszczędne budynki przygotowane do montażu fotowoltaiki
- dach kryty dachówką
- garaż w brylie domu
Oprócz garażu, przy każdym budynku znajduje się, miejsce postojowe

Planowane wydanie III kw. 2025.


Lokalizacja zapewnia spokojną okolicę otoczoną zabudową jednorodzinną i idealnie nadaje się dla osób ceniących ciszę i spokój. Blisko znajdują się sklepy spożywcze, szkoła, żłobek, przystanki autobusowe, stacja kolejowa i kościół. Co więcej, z Klinisk Wielkich wjedziesz bezpośrednio na autostradę S3 w kierunku Szczecina i Świnoujścia - do centrum Szczecina dotrzesz w mniej niż 25 minut.

Zapraszam do zapoznania się z ofertą wyjątkowego domu.
Prezentacja możliwa po poprzednim telefonie pod numer wskazany w ogłoszeniu.


Dodatkowe informacje: garaż

Kontakt do agenta

Atalanta Nieruchomości
Marii Konopnickiej 32
71-132 Szczecin
tel.: 914875042
email: info@atalanta.szczecin.pl
fax: 914875031

Wyślij zapytanie

Imię i Nazwisko
Telefon
E-mail
Treść zapytania

Wyrażam zgodę na przetwarzanie moich danych osobowych przez firmę dla celów związanych z działalnością pośrednictwa w obrocie nieruchomościami, jednocześnie potwierdzam, iż zostałem poinformowany o tym, iż będę posiadać dostęp do treści swoich danych do ich edycji lub usunięcia.

Wyślij ofertę

E-mail
© 2025 Atalanta Nieruchomości. Wszystkie prawa zastrzeżone.