Kursy walut NBP: USD 3,98 | EUR 4,32 | CHF 4,53 |

Jesteśmy członkiem:           

Wyszukiwarka
Notes
Zgłoś ofertę
Kalkulator
zgłoś ofertę
Mieszkania
Domy
Działki
Lokale
Obiekty
Szczegóły oferty
Rodzaj oferty
dom blizniak ( sprzedaż )
Numer oferty
434868
Miejscowość
BEZRZECZE
Cena
1 200 000 PLN kalkulator
Cena za mkw
9 375 PLN mkw
Powierzchnia
128.00 m2
Pow. działki
400.00 m2
Liczba pokoi
5
Liczba pięter
1
Rodzaj kuchni
aneks
Stan domu
do wykonczenia
Rok budowy
2025
Droga dojazdowa
asfaltowa
Opis

Na sprzedaż nowoczesny, komfortowy bliźniak w stanie deweloperskim na Bezrzeczu.

Do każdego lokalu przynależą dwa miejsca parkingowe ( możliwość zrobienia wiaty, duża odległość między budynkami ).
Wszystkie media gminne prąd , gaz, kanalizacja sanitarna i kanalizacja deszczowa .


Standard deweloperski

- ogrzewanie podłogowe na parterze i na piętrze .
- ściany zewnętrzne porotherm 25 cm + styropian grafitowy 15 cm + tynk.

- okna PCV trzyszybowe, w salonie drzwi tarasowe przesuwne.

- ściana pomiędzy lokalami silka akustyczna 24 cm Klasa 20.
- piec gazowy, SAUNIER DUVAL - THELIA CONDENS.

- w stropie przygotowany otwór - możliwość montażu kominka .
- strop poddasza, ocieplony wełną mineralną 20cm.
- dach docieplony pianą PUR.


- instalacja wodno-kanalizacyjna, elektryczna.
- instalacja TV i internetowa.
- tynki maszynowe gipsowe.
- Posadzki betonowe.

- dachówka BRAS CELTYCKA Cisar, kolor grafitowy.

- Rynny i rury spustowe.
- Obróbki kominiarskie.

- drzwi wejściowe PANTOR 72 mm ciepłe.


Zagospodarowanie terenu

- miejsca parkingowe i dojście do lokalu z kostki brukowej
- Ogrodzenie systemowe panelowe ( bez frontu )


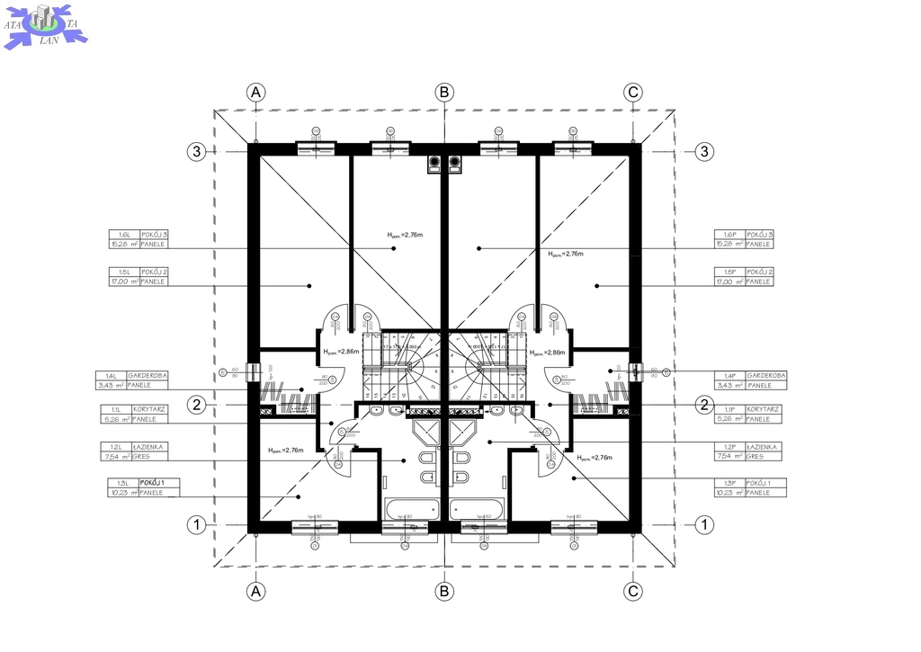
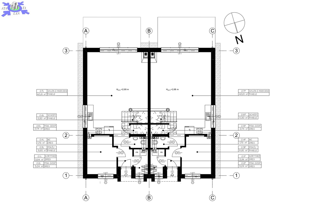
Na powierzchnię 128m2 składają się na parterze

- salon z aneksem o pow. 40,81m2
- pokój o pow. 9,85 m2 / możliwość zrobienia osobnej kuchni.

- toaleta o pow. 1,76 m2
- pom. gospodarcze o pow. 3 m2
- pom. gospodarcze o pow. 0,74 m2
- schody o pow. 5,3 m2

Piętro ( bez skosów )

- pokój o pow. 17 m2
- pokój o pow. 15,28 m2
- pokój o pow. 10,23 m2
- garderoba o pow. 3,43 m2
- łazienka razem z toaletą o pow, 7,5m2
- korytarz o pow. 5,26 m2


Doskonała lokalizacja, nowoczesny dom w zabudowie bliźniaczej w cichym kameralnym miejscu na Bezrzeczu.
Kupujący zwolniony z opłaty PCC, 2 % do Urzędu Skarbowego.

Polecam i zapraszam na prezentację




Dodatkowe informacje: garaż

Kontakt do agenta

Atalanta Nieruchomości
Marii Konopnickiej 32
71-132 Szczecin
tel.: 914875042
email: info@atalanta.szczecin.pl
fax: 914875031

Wyślij zapytanie

Imię i Nazwisko
Telefon
E-mail
Treść zapytania

Wyrażam zgodę na przetwarzanie moich danych osobowych przez firmę dla celów związanych z działalnością pośrednictwa w obrocie nieruchomościami, jednocześnie potwierdzam, iż zostałem poinformowany o tym, iż będę posiadać dostęp do treści swoich danych do ich edycji lub usunięcia.

Wyślij ofertę

E-mail
© 2025 Atalanta Nieruchomości. Wszystkie prawa zastrzeżone.