Kursy walut NBP: USD 3,98 | EUR 4,32 | CHF 4,53 |

Jesteśmy członkiem:           

Wyszukiwarka
Notes
Zgłoś ofertę
Kalkulator
zgłoś ofertę
Mieszkania
Domy
Działki
Lokale
Obiekty
Szczegóły oferty
Rodzaj oferty
dom ( sprzedaż )
Numer oferty
434846
Miejscowość
ZIELENIEWO
Cena
719 000 PLN kalkulator
Cena za mkw
5 406,02 PLN mkw
Powierzchnia
133.00 m2
Pow. działki
250.00 m2
Liczba pokoi
4
Liczba pięter
1
Rodzaj kuchni
aneks
Stan domu
do wykonczenia
Rok budowy
2026
Droga dojazdowa
utwardzona
Opis
Na sprzedaż dom w zabudowie szeregowej - Zieleniewo, 148,21 m2, garaż, ogród, blisko jeziora Miedwie

Zieleniewo | 148,21 m2 | Garaż | Ogród | Stan deweloperski | 300 m od jeziora Miedwie

Na sprzedaż nowoczesny dom w zabudowie szeregowej o powierzchni użytkowej 147,59 m2, zlokalizowany w Zieleniewie - spokojnej miejscowości tuż przy jeziorze Miedwie. Inwestycja jest w trakcie budowy. Budynek zostanie oddany w stanie deweloperskim, co daje możliwość wykończenia wnętrza według własnych potrzeb.

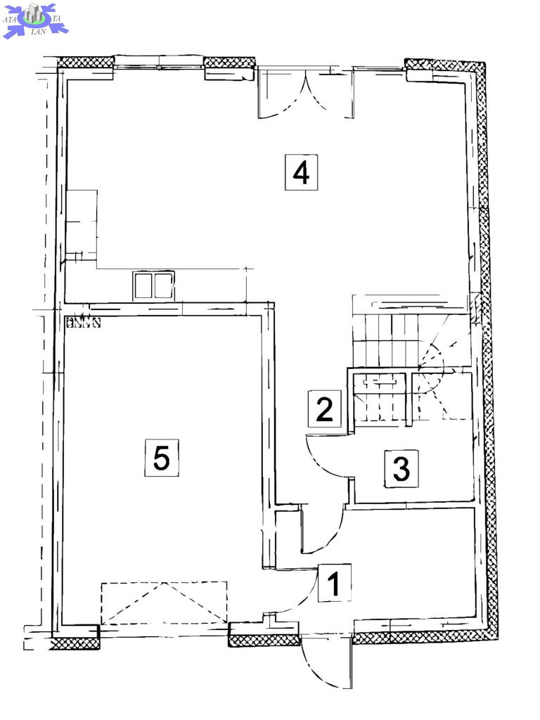
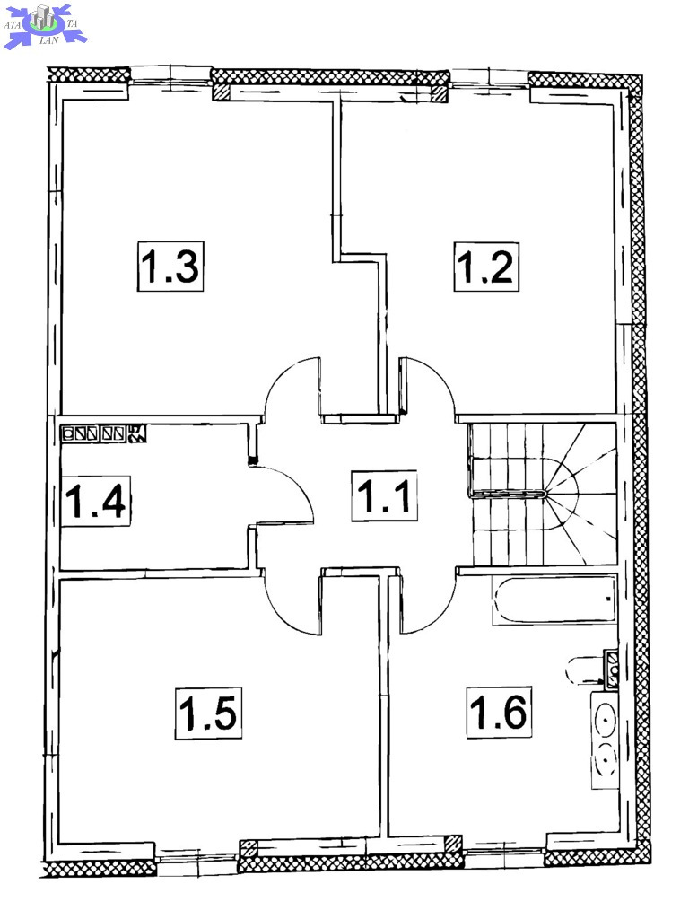
Rozkład pomieszczeń
Parter
wiatrołap z miejscem na szafę
przestronny salon z aneksem kuchennym i wyjściem do ogrodu
toaleta dla gości
garaż w bryle budynku
Piętro
3 sypialnie
garderoba
duża łazienka
korytarz

Dodatkowe informacje
ogrzewanie gazowe (możliwość zamontowania pompy ciepła)
duże przeszklenia zapewniające dobre doświetlenie wnętrz (okna trzyszybowe)
prywatny ogródek
miejsce postojowe przed budynkiem
Lokalizacja
spokojna okolica z dostępem do terenów rekreacyjnych
300 metrów do jeziora Miedwie
10 minut do Stargardu, 20 minut do Szczecina
dobre połączenie drogowe


Powierzchnia działek od 215 m2 do 460m2


Za dodatkową opłatą istnieje możliwość zamontowania pompy ciepła zamiast tradycyjnego ogrzewania gazowego.

Dom idealny dla rodzin, które szukają nowoczesnej przestrzeni w pobliżu natury, z szybkim dojazdem do miasta.
Zapraszamy do kontaktu - chętnie udzielimy szczegółowych informacji i umówimy prezentację na miejscu.


Dodatkowe informacje: garaż

Kontakt do agenta

Atalanta Nieruchomości
Marii Konopnickiej 32
71-132 Szczecin
tel.: 914875042
email: info@atalanta.szczecin.pl
fax: 914875031

Wyślij zapytanie

Imię i Nazwisko
Telefon
E-mail
Treść zapytania

Wyrażam zgodę na przetwarzanie moich danych osobowych przez firmę dla celów związanych z działalnością pośrednictwa w obrocie nieruchomościami, jednocześnie potwierdzam, iż zostałem poinformowany o tym, iż będę posiadać dostęp do treści swoich danych do ich edycji lub usunięcia.

Wyślij ofertę

E-mail
© 2025 Atalanta Nieruchomości. Wszystkie prawa zastrzeżone.