Rodzaj oferty
dom blizniak ( sprzedaż )
Opis
Na sprzedaż nowoczesny, komfortowy bliźniak w stanie deweloperskim blisko szkoły na Mierzynie
Dom oddzielony od sąsiada podwójną ścianą nośną z dylatacją styropianu pomiędzy ( 18+2+18 )
Sprzedaż na podstawie umowy deweloperskiej i rachunku powierniczego.
Standard wykończenia
- ogrzewanie i ciepła woda - indywidualna pompa cieplna powietrzna
- ogrzewanie podłogowe na parterze i piętrze
- system rekuperacji z jednostką
- okna i drzwi tarasowe PCV, 3 szybowe - ciepły montaż na taśmach - profil Salamander
- drzwi na taras w systemie przesuwnym - HS
- na parterze w oknach elektryczne rolety zewnętrzne
- drzwi wejściowe w kolorze antracytowym
- rozprowadzona instalacje wodno-kanalizacyjna, elektryczna wraz z okablowaniem pod kamery i alarm
- rozprowadzona instalacja internetowa i R-TV.
- schody strychowe drewniane, składane
- sufit poddasza, płyty karton-gips zatarte na łączeniach
- ściany konstrukcyjne murowane, ocieplone styropianem 20 cm.
- elewacja - tynk mineralny barwiony w masie / panele PCV imitujące drewno.
- dachówka ceramiczna płaską, w kolorze antracyt
- rury i rynny PCV w kolorze antracytowym
- tynki wewnętrzne gipsowe
- ujęcie wody zewnętrzne / ogrodowe
- teren wokół budynku wyrównany
- ogrodzenie ogródków z tyłu budynku z paneli systemowych
- dwa miejsca parkingowe - kostka ażurowa / kostka brukowa
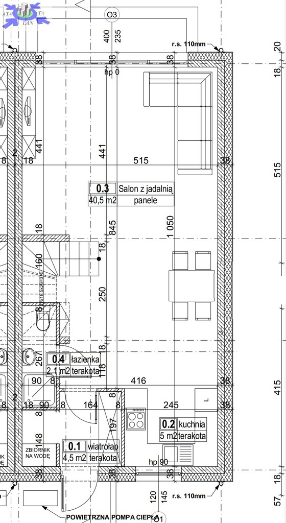
Na powierzchnię 100,7 m2 składają się na parterze
- salon z jadalnią o pow. 40 m2
- kuchnia o pow 5 m2
- łazienka z toaletą o pow. 2,1 m2
- wiatrołap o pow. 4,5 m2
Piętro
- pokój o pow. 12 m2
- pokój o pow. 10,4 m2
- pokój o pow. 8,8 m2
- pokój o pow. 7,7 m2
- łazienka razem z toaletą o pow, 4,1 m2
- korytarz o pow. 5,6 m2
Kupujący zwolniony z opłaty PCC, 2 % do Urzędu Skarbowego.
Oferta skierowana do najbardziej wymagających Klientów, ceniących wysoki standard wykończenia.
Lokalizacja idealna , blisko szkoły podstawowej i przedszkola, ciche spokojne miejsce .
Wyłączność nie szukaj dalej, zadzwoń i umów się na prezentację.