Opis
Do wynajęcia narożny lokal użytkowy położony w ścisłym Centrum Szczecina, na parterze budynku mieszkalno-usługowego położonego przy skrzyżowaniu głównych ulic miasta.
Lokalizacja o bardzo dużym natężeniu ruchu pieszego i samochodowego, W SĄSIEDZTWIE GALERII HANDLOWEJ.
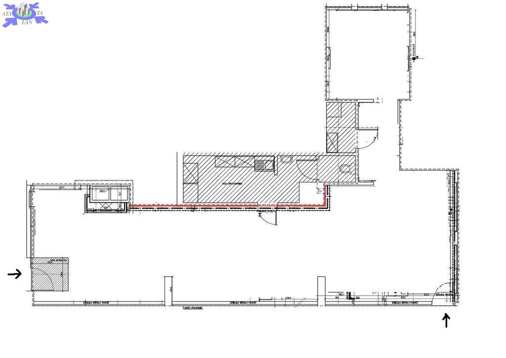
Cały lokal o powierzchni 118 m2 znajduje się na jednym poziomie parteru i składa się z pomieszczeń
- duża sala sprzedaży/obsługi z dwoma oddzielnymi wejściami z ulicy (jedno wejście bez barier architektonicznych),
- osobny gabinet,
- pomieszczenie socjalne z aneksem kuchennym,
- węzeł sanitarny - WC z umywalką,
- serwerownia.
Wysokość sali sprzedaży do sufitu podwieszanego - 3,00 m, gabinetu i części socjalnej - 3,20 m.
Na podłogach terakota (przykryta wykładziną), ściany gładzone, malowane, sufity podwieszane z oświetleniem rastrowym.
Część socjalna oraz WC wykończone w glazurze i terakocie.
W lokalu rozprowadzona klimatyzacja, instalacja alarmowa oraz sieć teleinformatyczna.
Wysokie, nowoczesne, narożne witryny z szybami antywłamaniowymi typu P4, od poziomu chodnika, na całej szerokości lokalu - zapewniają świetną wizualizację.
Czynsz do zarządcy zawiera opłaty za ogrzewanie z sieci miejskiej, ciepłą i zimną wodę, ścieki.
Dodatkowe opłaty - energia elektryczna i wywóz śmieci - na postawie odrębnych umów. Do ceny najmu będzie doliczony VAT.
Przeznaczenie lokalu handlowo-usługowe bądź inne, możliwa gastronomia.
W sąsiedztwie lokale handlowe i usługowe wielu branż oraz galeria handlowa.
UWAGA Możliwość połączenia z lokalem sąsiednim o pow. 80 m2 w celu uzyskania lokalu pow. 200 m2.