Opis
W nowej inwestycji, w której zastosowano nowoczesne rozwiązania i nowoczesny design w centrum Szczecina.
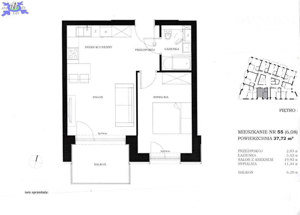
OPIS MIESZKANIA mieszkanie 2 pokojowe o powierzchni 37,72 m2, z wyjściem na balkon o powierzchni 6,2 m2. Pokój z aneksem kuchennym o powierzchni 19,93 m2, łazienka 3,52 m2, przedpokój 2,83 m2. Balkon od strony południowej o powierzchni 6,2 m2. V piętro w V piętrowym budynku z windą. Wystawa okien południowa.
W mieszkaniu klimatyzacja, sterowanie ogrzewaniem za pomocą aplikacji, komfortowe maty grzewcze w łazienkach, system kontaktronów w oknach wyłączających ogrzewanie, hotelowy wyłącznik światła, już nie ma konieczności sprawdzania każdego pomieszczenia, jednym ruchem wyłączają się wszystkie lampy w mieszkaniu. Ponadto system Kontaktronów w oknach wyłączających ogrzewanie w przypadku otwarcia okna, okna trójszybowe. Ogrzewanie i ciepła woda z Szczecińskiej Energetyki Cieplnej (SEC). W budynku nie ma gazu. Niski czynsz.
Przewidywany czas udostępnienia mieszkania grudzień 2025 roku.
Miejsce postojowe w garażu podziemnym w cenie 90.000 zł
OPIS BUDYNKU budynek wybudowany z bloczków silikatowych.
Dodatkowe informacje: balkon, winda, garaż