Rodzaj oferty
dom blizniak ( sprzedaż )
Opis
Na sprzedaż nowa oferta domu jednorodzinnego w zabudowie bliźniaczej zlokalizowanego na nasłonecznionej dużej działce, ogród od zachodniej strony.
Cicha spokojna okolica, kameralna zabudowa domów jednorodzinnych, bardzo dobry dojazd do Centrum Szczecina. W pobliżu SP, przedszkola, komunikacja miejska.
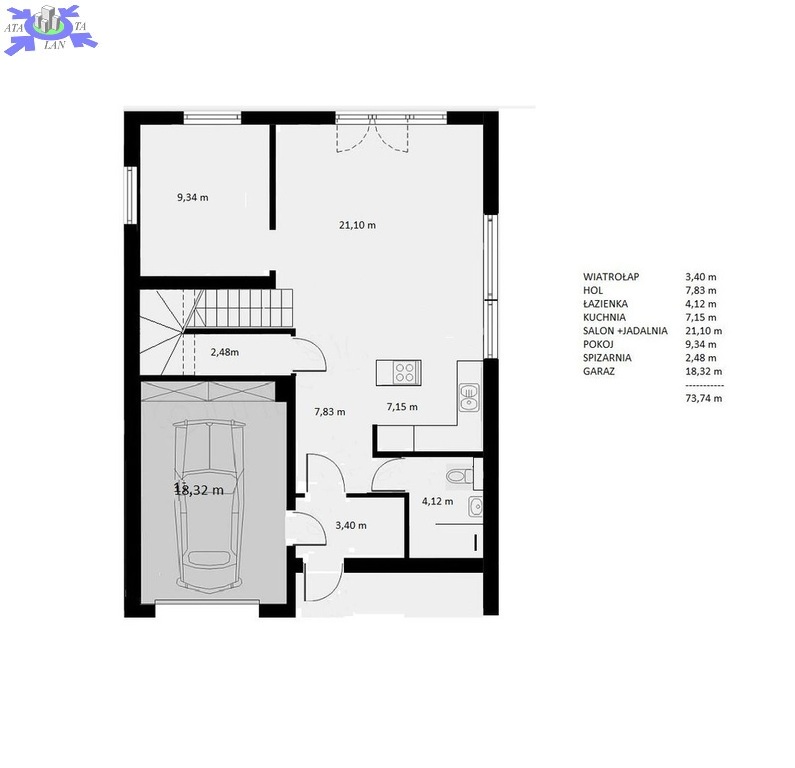
Dom o powierzchni użytkowej 146,99 mkw (p. całkowita 155,50 mkw), składa się z
PARTER
- wiatrołap 3,40 mkw
- hol 7,83 mkw
- łazienka 4,12 mkw
- kuchnia 7,15 mkw
- salon z jadalnią 21,10 mkw
- pokój/gabinet 9,34 mkw
- spiżarnia 2,48 mkw
- garaż 18,32 mkw
PIĘTRO
- schody 5,17 mkw
- hol 5,52 mkw
- pom. gosp. 5,06 mkw
- sypialnia 1 - 11,84 mkw
- sypialnia 2 - 12,69 mkw
- sypialnia 3 - 11,55 mkw
- sypialnia 4 - 12,52 mkw
- łazienka 8,90 mkw
Duża powierzchnia strychowa do wykorzystania. Docieplenie dachu i stropu wełną (20 cm strop i 30 cm dach).
Niewątpliwym atutem nieruchomości jest podział działki i pełna jej własność z wyodrębnioną kw oraz to, że jest to małe kameralne osiedle zamknięte w pełni z automatyczną bramą i dodatkową wspólną przestrzenią do parkowania dodatkowych aut np. dla gości.
W sprzedaży pozostały 2 bliźniaki prawy z działką 301 mkw za 1399000 zł i lewy z działką 462 mkw za 1499000 zł.
Standard deweloperski obejmuje
-ściany konstrukcyjne cegła Silikatowa 18cm,
-ściany działowe - cegła Silikatowa 11,5
-dom wybudowany na płycie fundamentowej
-strop wylewany
-schody wewnętrzne wylewane
-dachówka ceramiczna w kolorze czarnym połysk- Roben.
-okna plastikowe Drutex grafitowe(3-szybowe)
-żaluzje antywłamaniowe w oknach na parterze w kolorze grafit- elektrycznie sterowane
-brama garażowa segmentowa Wiśniowski w kolorze grafit sterowane elektrycznie - 2 piloty
-drzwi zewnętrze w kolorze grafit (podwójne zamki)
-tynk zewnętrzny silikatowy- biały "baranek"
-cokół klinkierowy w kolorze czarnym
-ocieplenie zewnętrze styropian grafitowy20cm grubości
-tynki wewnętrzne wapienno-cementowe
-ogrzewanie podłogowe w całym domu sterowane w każdym pokoju osobno
-podbitka biała baranek
-wybrukowany polbrukiem wjazd do garażu wejście do domu oraz taras
-teren zagospodarowany oraz otoczony płotem panelowym
-ogrzewanie z pompy ciepła
-instalacja gazowa
-instalacja elektryczna - 230V, siła,
-instalacja alarmowa,
-instalacja domofonowa
-kanalizacja
-system rozprowadzenia deszczówki do zbiorników 5m3
Kupujący zwolniony z 2% pcc
Istnieje możliwość wykończenia pod klucz.
Polecam i zapraszam na prezentację!