Opis
Oferujemy na wynajem lokal użytkowy usytuowany w parterze budynku apartamentowo-usługowego na Placu Wolności w ścisłym centrum Świnoujścia.
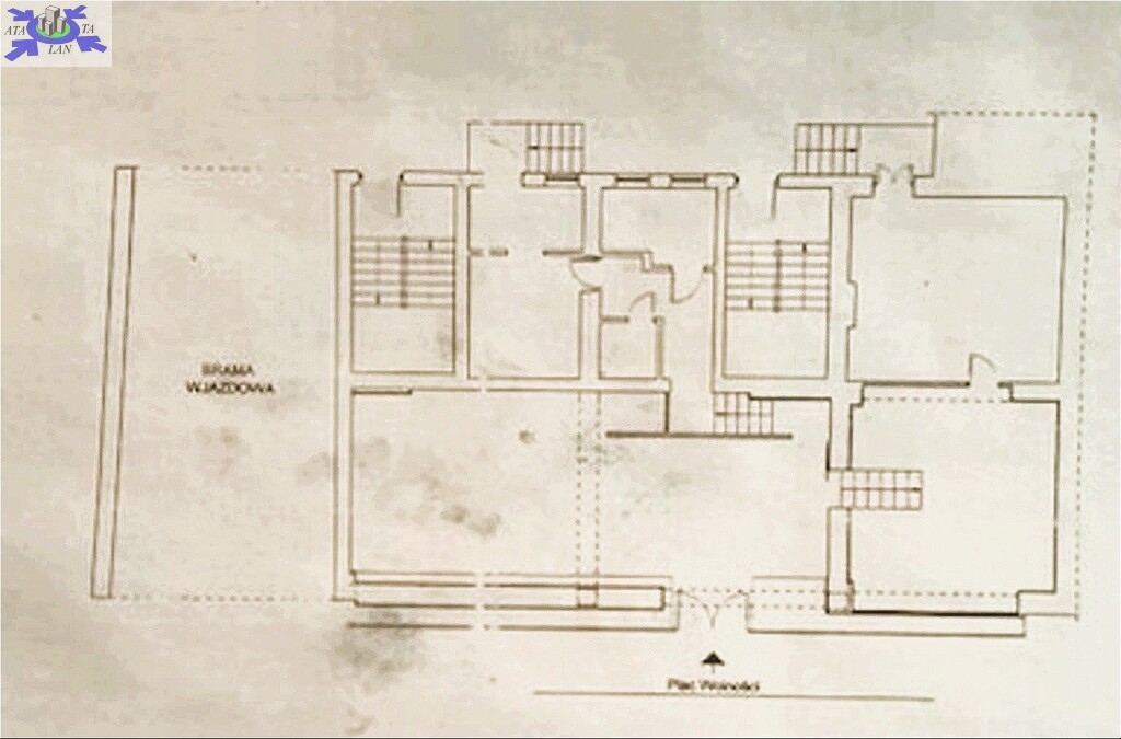
Oferowany lokal ma powierzchnię 114,65 m 2 i składa się z pięciu pomieszczeń / sala sprzedaży 51,11 m2, zaplecze 20,78 m2, magazyn 19,98 m2, korytarz 4,84 m2, pomieszczenie socjalne ,28 m2, wc 1,75 m2/, wysokość pomieszczeń 3,6 i 2,50 m.
Idealnie nadaje się na działalność gastronomiczną, handlową, sklep.
Czynsz do wspólnoty wynosi 1000 zł/miesiąc i na tą wartość składają się opłaty na zaliczkę na poczet zimnej , fundusz remontowy, koszty zarządu nieruchomością wspólną. Dodatkowo najemca opłaca koszt zużycia gazu, prądu.
Ponadto, lokal z racji położenia, ścisłe centrum - idealnie nadaje się na gabinety, kancelarię, szeroko rozumiane usługi.
Super lokalizacja (najlepsza w mieście), duże możliwości aranżacyjne i atrakcyjna cena wynajmu to główne atuty oferowanej nieruchomości. Zapraszamy na prezentację.
Lokal wynajmowany jest z Vat i w cenie najmu zawarty jest należny podatek 23%