Kursy walut NBP: USD 3,98 | EUR 4,32 | CHF 4,53 |

Jesteśmy członkiem:           

Wyszukiwarka
Notes
Zgłoś ofertę
Kalkulator
zgłoś ofertę
Mieszkania
Domy
Działki
Lokale
Obiekty
Szczegóły oferty
Rodzaj oferty
dom ( sprzedaż )
Numer oferty
433841
Miejscowość
LIPNIK
Cena
649 000 PLN kalkulator
Cena za mkw
6 830,14 PLN mkw
Powierzchnia
95.02 m2
Pow. działki
500.00 m2
Liczba pokoi
5
Liczba pięter
1
Rodzaj kuchni
aneks
Stan domu
do wykonczenia
Rok budowy
2025
Droga dojazdowa
utwardzona
Opis
Wyjątkowa okazja, dom w cenie mieszkania ! Na sprzedaż dom w zabudowie bliźniaczek położony w Lipniku 1 km od Stargardu, około 300 m od Jeziora Miedwie.


Nieruchomość o całkowitej powierzchni 93,44 m2 ( 88.98 m2 powierzchni użytkowej), usytuowana na działce o powierzchni 500 m2.


Termin wydania, lipiec 2025 rok.



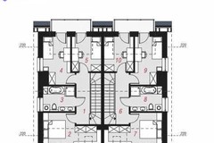
Na powierzchnię 88,98 m2 składają się



Parter


- Wiatrołap 3,05 m2

- Hol 5,71 m2

- Toaleta 1,28 m2

- Gabinet 9,25 m2

- Jasny przestronny salon z aneksem kuchennym o powierzchni 24,45 m2 z bezpośrednim wyjściem na taras o powierzchni około 24 m2


Piętro

- 3 sypialnie o powierzchni 12,15 m2 , 9,55 m2, 7,39 m2

- Łazienka 6,13 m2

- Hol i schody 10,02 m2


Dom w standardzie deweloperskim.


W ramach wyposażenia domu znajduje się

- Ogrzewanie podłogowe w całym domu

- Okna trzyszybowe

- Woda z sieci miejskiej

- Szambo

- Drzwi antywłamaniowe

- Elewacja ocieplona 20 cm styropian grafit, co zapewnia optymalne izolowanie termiczne

- Taras , wejście do domu oraz miejsce postojowe wyłożone kostką brukową

- Ogrzewanie podłogowe w całym domu, pompa ciepła


Lokalizacja

Atrakcyjna lokalizacja, tylko 1 km od Stargardu. W pobliżu znajduje się centrum handlowe Lipnik, szkoła, przedszkole, żłobek, tylko 300 do Jeziora Miedwie. Spokojna i cicha okolica, wokół zabudowa jednorodzinna.


Nie czekaj dłużej z decyzją. Wszystko czego potrzebujesz znajduje się w tym wyjątkowym domu, który czeka na Ciebie!

Zapraszam do kontaktu oraz na prezentację.


Dodatkowe informacje: garaż

Kontakt do agenta

Atalanta Nieruchomości
Marii Konopnickiej 32
71-132 Szczecin
tel.: 914875042
email: info@atalanta.szczecin.pl
fax: 914875031

Wyślij zapytanie

Imię i Nazwisko
Telefon
E-mail
Treść zapytania

Wyrażam zgodę na przetwarzanie moich danych osobowych przez firmę dla celów związanych z działalnością pośrednictwa w obrocie nieruchomościami, jednocześnie potwierdzam, iż zostałem poinformowany o tym, iż będę posiadać dostęp do treści swoich danych do ich edycji lub usunięcia.

Wyślij ofertę

E-mail
© 2025 Atalanta Nieruchomości. Wszystkie prawa zastrzeżone.