Kursy walut NBP: USD 3,98 | EUR 4,32 | CHF 4,53 |

Jesteśmy członkiem:           

Wyszukiwarka
Notes
Zgłoś ofertę
Kalkulator
zgłoś ofertę
Mieszkania
Domy
Działki
Lokale
Obiekty
Szczegóły oferty
Rodzaj oferty
dom ( sprzedaż )
Numer oferty
433828
Miejscowość
STARGARD
Cena
769 968 PLN kalkulator
Cena za mkw
5 830 PLN mkw
Powierzchnia
132.07 m2
Pow. działki
265.00 m2
Liczba pokoi
4
Liczba pięter
1
Rodzaj kuchni
otwarta
Stan domu
do wykonczenia
Rok budowy
2025
Droga dojazdowa
asfaltowa
Opis

Oferta ma charakter informacyjny, o aktualną dostępność lokali zapytaj naszego doradcę.

TO JUŻ KOLEJNY ETAP ROZBUDOWY OSIEDLA PRZY ULICY NADBRZEŻNEJ!
JUŻ PIERWSI MIESZKAŃCY CIESZĄ SIĘ SWOIM WYMARZONYM DOMEM.

BEZ PODATKU PCC 2%


Z naszym biurem masz GWARANCJĘ
bezpiecznego procesu sprzedaży w oparciu o ust. deweloperską i Fundusz Gwarancyjny
kompleksowej obsługi transakcji na najwyższym poziomie
bezpłatnej i fachowej usługi w zakresie finansowania zakupu nieruchomości,
profesjonalnego wsparcia naszych licencjonowanych agentów


"Nasza inwestycja to nie tylko dom, to styl życia.
Znajdź swoje miejsce w eleganckim i nowoczesnym otoczeniu,
gdzie komfort mieszkaniowy idzie w parze z solidnością i estetyką."

OFERTA

Szeregowiec S7
Segment skrajny 1D
Dom o powierzchni użytkowej 132,07 mkw
Działka 265 mkw
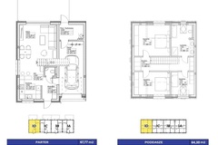
Układ pomieszczeń

PARTER
wiatrołap
kuchnia
salon
WC
garaż
pom. techniczne

PODDASZE
korytarz
sypialnia
łazienka
sypialnia
sypialnia

NAJWAŻNIEJSZE ATUTY
ogrzewanie podłogowe w całym budynku,
instalacje elektryczna i wodno-kanalizacyjna zakończone są wysokiej jakości materiałami,
okna trzyszybowe,
brama garażowa sterowana pilotem,
dojście do budynku i wjazd do garażu wykonane są z kostki brukowej
ogród został otoczony płotem systemowym
woda oraz ogrzewanie z sieci miejskiej
kanalizacja miejska

LOKALIZACJA
Kameralne osiedle w zabudowie wielorodzinnych bloków oraz domów szeregowych
znajdujące się na granicy Starego Miasta a ścisłym centrum Stargardu.


W POBLIŻU INWESTYCJI
PARK ZAMKOWY - 370 m
PRZYSTANEK KOMUNIKACJI MIEJSKIEJ - 650 m
PARK BOLESŁAWA CHROBREGO - 740 m
SZKOŁA PODSTAWOWA NR 5 - 800 m
PRZEDSZKOLE MIEJSKIE NR 1 - 860 m
STARE MIASTO - 1000 m
SZKOŁA PODSTAWOWA NR 3 - 1040 m

Skontaktuj się z nami już dziś,
aby dowiedzieć się więcej o dostępności i warunkach zakupu.






Dodatkowe informacje: garaż

Kontakt do agenta

Atalanta Nieruchomości
Marii Konopnickiej 32
71-132 Szczecin
tel.: 914875042
email: info@atalanta.szczecin.pl
fax: 914875031

Wyślij zapytanie

Imię i Nazwisko
Telefon
E-mail
Treść zapytania

Wyrażam zgodę na przetwarzanie moich danych osobowych przez firmę dla celów związanych z działalnością pośrednictwa w obrocie nieruchomościami, jednocześnie potwierdzam, iż zostałem poinformowany o tym, iż będę posiadać dostęp do treści swoich danych do ich edycji lub usunięcia.

Wyślij ofertę

E-mail
© 2025 Atalanta Nieruchomości. Wszystkie prawa zastrzeżone.