Kursy walut NBP: USD 3,98 | EUR 4,32 | CHF 4,53 |

Jesteśmy członkiem:           

Wyszukiwarka
Notes
Zgłoś ofertę
Kalkulator
zgłoś ofertę
Mieszkania
Domy
Działki
Lokale
Obiekty
Szczegóły oferty
Rodzaj oferty
mieszkanie ( sprzedaż )
Numer oferty
433809
Miejscowość
NIECHORZE
Ulica
Żeglarska
Cena
776 376 PLN kalkulator
Cena za mkw
18 450 PLN mkw
Powierzchnia
42.08 m2
Liczba pokoi
2
Liczba pięter
1
Rodzaj kuchni
aneks
Stan mieszkania
do wykonczenia
Rok budowy
2025
Droga dojazdowa
asfaltowa
Opis
Budynek zakwaterowania turystycznego i rekreacyjnego (możliwość odzyskania VAT dla osób fizycznych i firm).
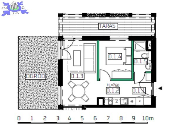
Prezentowany apartament ma powierzchnię 42,08 m2, ogród 17,67 m2, taras 10,73 m2
Powierzchnia apartamentów od 41 m2, wszystkie dwupokojowe (5 minut drogi do morza).
Na parterze ogródki w cenie apartamentu (powierzchnia od 18 m2 do 25 m2).
Kameralny budynek przeznaczony dla kilku rodzin, położony w spokojnej okolicy przy ul. Żeglarskiej 11, z widokiem na latarnię morską.
Zostały 4 z 6 apartamentów na sprzedaż
Na placu przed budynkiem przewidziano monitoring, rowerownię oraz miejsca postojowe.
Rozpoczęcie budowy I kwartał 2025 r., planowane zakończenie i oddanie I kwartał 2026 r.
Cena Przedsprzedaży 15.000 zł netto + 23% VAT (18.450 zł brutto ) ( do 22.09.2025)
Dla chętnych wersja "pod klucz" - do wyboru dwa pakiety
Pakiet Business 3 500 zł netto
Pakiet Prestige 4 500 zł netto.
Miejsce parkingowe z rowerownią w cenie.
Ogrzewanie POMPA CIEPŁA, duże okna, dodatkowo na działce planowane są nasadzenia drzew i traw pampasowych.
Dla klientów apartamentowca proponuję indywidualny harmonogram płatności.
Istnieje możliwość zarządzania wynajmem apartamentu (zarówno krótkoterminowego, jak i długoterminowego) przez Panią Monikę Rajner, która odpowiada za wszystkie wspólnoty w apartamentowcach wybudowanych przeze mnie. Dodatkowo użytkownicy mają do dyspozycji ośrodek zarządzany przez Panią Monikę -Baltic Clif, oddalony o zaledwie 4 minuty. W ramach obsługi dostępne są tam basen i siłownia, a także dodatkowo płatne restauracje oraz spa.


Dodatkowe informacje: garaż

Kontakt do agenta

Atalanta Nieruchomości
Marii Konopnickiej 32
71-132 Szczecin
tel.: 914875042
email: info@atalanta.szczecin.pl
fax: 914875031

Wyślij zapytanie

Imię i Nazwisko
Telefon
E-mail
Treść zapytania

Wyrażam zgodę na przetwarzanie moich danych osobowych przez firmę dla celów związanych z działalnością pośrednictwa w obrocie nieruchomościami, jednocześnie potwierdzam, iż zostałem poinformowany o tym, iż będę posiadać dostęp do treści swoich danych do ich edycji lub usunięcia.

Wyślij ofertę

E-mail
© 2025 Atalanta Nieruchomości. Wszystkie prawa zastrzeżone.