Kursy walut NBP: USD 3,98 | EUR 4,32 | CHF 4,53 |

Jesteśmy członkiem:           

Wyszukiwarka
Notes
Zgłoś ofertę
Kalkulator
zgłoś ofertę
Mieszkania
Domy
Działki
Lokale
Obiekty
Szczegóły oferty
Rodzaj oferty
dom blizniak ( sprzedaż )
Numer oferty
433724
Miejscowość
ŻAROWO
Cena
550 000 PLN kalkulator
Cena za mkw
6 670,71 PLN mkw
Powierzchnia
82.45 m2
Pow. działki
473.00 m2
Liczba pokoi
3
Liczba pięter
1
Rodzaj kuchni
aneks
Stan domu
idealny
Rok budowy
2024
Droga dojazdowa
utwardzona
Opis
Dom w cenie mieszkania ! Świetna oferta !

Oferujemy na sprzedaż dom w zabudowie bliźniaczej w Żarowie, położonego zaledwie 5 km od Stargardu i 30 km os Szczecina.


Nieruchomość mieści się na działce o powierzchni 473 m2, w bliskim sąsiedztwie lasu oraz na nowo powstającym osiedlu domków jednorodzinnych.


Dom oddawany jest w stanie deweloperskim

Stan obejmuje

- Ocieplenie 20 cm styropianem
- Elewacja
- Okna trzyszybowe
- Drzwi antywłamaniowe
- Dachówka ceramiczna
- Szczelne szambo
- Instalacja elektryczna
- Instalacja wodno-kanalizacyjna
- Tynki
- Ogrzewanie podłogowe


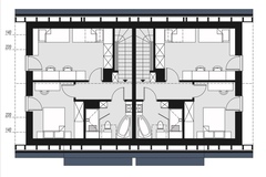
Na powierzchnię 82,45 m2 ( 71,28 m2 użytkowej ) składają się

Parter


- Wiatrołap 3,65 m2

- Kotłownia 4,41 m2

- Toaleta 2,69 m2

- Salon z jadalnią, aneksem kuchennym oraz bezpośrednim wyjściem na taras 28,81 m2


Pietro


- 2 sypialnie 12,04 m2 , 10 m2

- Łazienka 4 m2


Dom wykończony materiałami najwyższej jakości, a projekt jest zgodny z aktualnymi normami dotyczącymi energooszczędności.


Lokalizacja


Nieruchomość znajduje się w Żarowie, 5 km od Stargardu, 30 km od prawobrzeżnej części Szczecina, w otoczeniu zieleni.
Bardzo spokojna i cicha okolica.
Przyszli właściciele mogą liczyć na ciszę i spokój, a jednocześnie na dogodny dojazd Stargardu.



Planowany termin ukończenia inwestycji to IV kwartał 2024 roku.


Istnieje możliwość doprowadzenia domu do stanu deweloperskiego po wcześniejszym uzgodnieniu warunków.


Zachęcamy do zapoznania się z nasza ofertą i serdecznie zapraszamy na prezentację.



Dodatkowe informacje: garaż

Kontakt do agenta

Atalanta Nieruchomości
Marii Konopnickiej 32
71-132 Szczecin
tel.: 914875042
email: info@atalanta.szczecin.pl
fax: 914875031

Wyślij zapytanie

Imię i Nazwisko
Telefon
E-mail
Treść zapytania

Wyrażam zgodę na przetwarzanie moich danych osobowych przez firmę dla celów związanych z działalnością pośrednictwa w obrocie nieruchomościami, jednocześnie potwierdzam, iż zostałem poinformowany o tym, iż będę posiadać dostęp do treści swoich danych do ich edycji lub usunięcia.

Wyślij ofertę

E-mail
© 2025 Atalanta Nieruchomości. Wszystkie prawa zastrzeżone.