Kursy walut NBP: USD 3,98 | EUR 4,32 | CHF 4,53 |

Jesteśmy członkiem:           

Wyszukiwarka
Notes
Zgłoś ofertę
Kalkulator
zgłoś ofertę
Mieszkania
Domy
Działki
Lokale
Obiekty
Szczegóły oferty
Rodzaj oferty
lokal ( wynajem )
Numer oferty
433343
Miejscowość
SZCZECIN, ŚWIERCZEWO
Ulica
Zielonogórska
Cena
5 600 PLN
Cena za mkw
35 PLN mkw
Powierzchnia
160.00 m2
Liczba pięter
1
Rok budowy
1995
Opis
Na wynajem lokal o powierzchni 160 m2 w doskonałej lokalizacji - bliska odległość od centrum, dobry wyjazd z miasta.

Teren ogrodzony, możliwość parkowania aut na terenie.

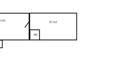
Lokal składa się z 2 pomieszczeń + hol/wiatrołap (6,5m2) - jedno o pow. 56 m2 - obecnie jako sala sprzedaży/biuro, a drugie o pow. 97 m2 obecnie pełni funkcję magazynową - wjazd bramą o wym. 2,68 x 2,6 m z poziomu 0, bez barier. Wysokość 2,5 m w części biurowej i 3,3 m- 3,6 m w magazynowej.

Toaleta do wyłącznej dyspozycji.


Posadzka utwardzona w części magazynowej, kafle w części biurowej.

Czynsz 35 zł netto/ m2 = 5.600 zł netto/m-c
Umowa na minimum 1 rok.
Opłaty dodatkowe prąd (własny podlicznik)

Ogrzewanie grzejniki elektryczne/klimatyzator.

Zapraszam do kontaktu i na prezentację.






Kontakt do agenta

Atalanta Nieruchomości
Marii Konopnickiej 32
71-132 Szczecin
tel.: 914875042
email: info@atalanta.szczecin.pl
fax: 914875031

Wyślij zapytanie

Imię i Nazwisko
Telefon
E-mail
Treść zapytania

Wyrażam zgodę na przetwarzanie moich danych osobowych przez firmę dla celów związanych z działalnością pośrednictwa w obrocie nieruchomościami, jednocześnie potwierdzam, iż zostałem poinformowany o tym, iż będę posiadać dostęp do treści swoich danych do ich edycji lub usunięcia.

Wyślij ofertę

E-mail
© 2025 Atalanta Nieruchomości. Wszystkie prawa zastrzeżone.