Kursy walut NBP: USD 3,98 | EUR 4,32 | CHF 4,53 |

Jesteśmy członkiem:           

Wyszukiwarka
Notes
Zgłoś ofertę
Kalkulator
zgłoś ofertę
Mieszkania
Domy
Działki
Lokale
Obiekty
Szczegóły oferty
Rodzaj oferty
mieszkanie ( sprzedaż )
Numer oferty
426530
Miejscowość
KOŁOBRZEG
Cena
290 000 PLN kalkulator
Cena za mkw
16 618,91 PLN mkw
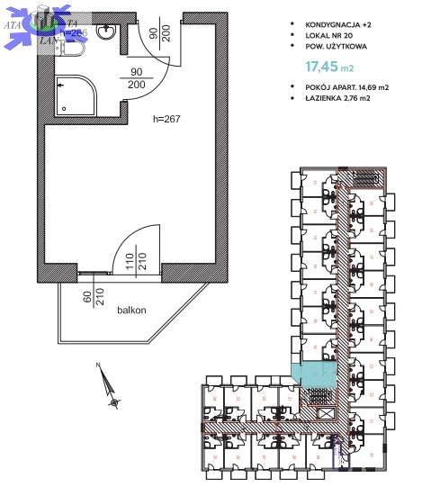
Powierzchnia
17.45 m2
Liczba pokoi
1
Piętro
1
Liczba pięter
2
Stan mieszkania
idealny
Rok budowy
2019
Opis
Obniżona cena!!!
Do sprzedaży
Apartament "ekonomiczny", 1 pokojowy w Kołobrzegu! Z wykończeniem, umeblowaniem, wyposażeniem, balkonem, windą w budynku i restauracją. Pełna własność.

Niskie opłaty za utrzymanie lokalu - ok. 221 zł miesięcznie (w tym zaliczki na wodę, ogrzewanie), opłata za zużycie prądu według licznika. Apartament na I piętrze, z wystawą okien i balkonem od strony zachodniej. Łóżko 2 osobowe składane, wygodne (materac hotelowy).
Nowy właściciel może nabyć nie tylko lokal, ale również gotowy biznes, z możliwością przejęcia umowy z dobrym operatorem w znanym obiekcie turystycznym, zapewniającym gościom standard hotelowy a właścicielom stabilne stopy zwrotu, apartament w największym uzdrowisku w Polsce - Kołobrzegu.
Umowę z operatorem można przejąć, ale nie jest to konieczność.
Znana i lubiana inwestycja INDU w zachodniej dzielnicy Kołobrzegu, ok. 700 m od parku nadmorskiego, w pobliżu ścieżek rowerowych, tras biegowych, sklepów, punktów gastronomicznych, doskonała komunikacja z miastem.
Inwestycja Indu, w stylu industrialnym, cieszy się bardzo dobrymi opiniami turystów, ulubiona na pobyty krótkoterminowe ze względu na bliskość zarówno plaży, jak i centrum miasta. W budynku 3 piętrowym, z windą funkcjonuje restauracja, w której można zamówić posiłki, wypić kawę.
Mały, dobrze zaprojektowany lokal, oferuje wszystko co jest niezbędne turystom na znacznie mniejszej przestrzeni niż w standardowo projektowanych apartamentach, spełnia oczekiwania turysty pod względem komfortu i estetyki i pozwala uzyskiwać ceny najmu
porównywalne do apartamentów o większej powierzchni. Obiekt dostosowany do osób niepełnosprawnych.
Przepięknie zorganizowana przestrzeń wspólna
Nowoczesny design, przestronny lobby bar z wyjściem do ogrodu, obiekt bezobsługowy-zautomatyzowany (klucze elektroniczne).
Na zewnątrz zorganizowane miejsce do wypoczynku (kanapy, stoliki), rowerownia dla właścicieli i klientów.
Miejsce na samochód zapewnia parking dla gości przed budynkiem (płatny za dobę według cennika obiektu).
Inwestycja idealna dla osób poszukujących niedrogiego lokalu, z niskimi kosztami utrzymania, zarówno biznesowo pod wynajem krótko i długoterminowy, oraz dla własnych potrzeb. Okolica oddalona od głównej ulicy, dzięki czemu zapewnia wypoczynek i relaks w ciszy i spokoju.
Oferta dostępna wyłącznie u nas.
Zapraszamy na prezentację.
Powyższa oferta ma charakter informacyjny i nie stanowi oferty handlowej w rozumieniu art. 66 1 Kodeksu Cywilnego

Dodatkowe informacje: umeblowane, balkon, winda

Kontakt do agenta

Atalanta Nieruchomości
Marii Konopnickiej 32
71-132 Szczecin
tel.: 914875042
email: info@atalanta.szczecin.pl
fax: 914875031

Wyślij zapytanie

Imię i Nazwisko
Telefon
E-mail
Treść zapytania

Wyrażam zgodę na przetwarzanie moich danych osobowych przez firmę dla celów związanych z działalnością pośrednictwa w obrocie nieruchomościami, jednocześnie potwierdzam, iż zostałem poinformowany o tym, iż będę posiadać dostęp do treści swoich danych do ich edycji lub usunięcia.

Wyślij ofertę

E-mail
© 2025 Atalanta Nieruchomości. Wszystkie prawa zastrzeżone.