Kursy walut NBP: USD 3,98 | EUR 4,32 | CHF 4,53 |

Jesteśmy członkiem:           

Wyszukiwarka
Notes
Zgłoś ofertę
Kalkulator
zgłoś ofertę
Mieszkania
Domy
Działki
Lokale
Obiekty
Szczegóły oferty
Rodzaj oferty
lokal biurowy ( sprzedaż )
Numer oferty
432900
Miejscowość
SZCZECIN, CENTRUM
Cena
550 000 PLN kalkulator
Cena za mkw
10 117,73 PLN mkw
Powierzchnia
54.36 m2
Liczba pięter
3
Rok budowy
1938
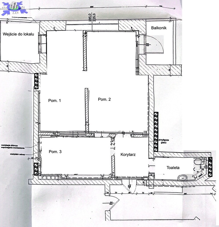
Opis
Na sprzedaż lokal użytkowy zlokalizowany na parterze budynku w Centrum Szczecina.
Wejście do lokalu bezpośrednio z ulicy, plus drugie wejście z klatki schodowej.
Lokal posiada duże witryny wystawowe (okna PCV).
W skład lokalu wchodzą
- 3 pomieszczenia,
- korytarz,
- toaleta,
- balkon.
Lokal po remoncie, nowa elewacja na budynku.
Ogrzewanie i ciepła woda z piecyka gazowego.
Niewielki czynsz - 494 zł.

Lokal jest obecnie wynajęty - idealny jako inwestycja.



Kontakt do agenta

Atalanta Nieruchomości
Marii Konopnickiej 32
71-132 Szczecin
tel.: 914875042
email: info@atalanta.szczecin.pl
fax: 914875031

Wyślij zapytanie

Imię i Nazwisko
Telefon
E-mail
Treść zapytania

Wyrażam zgodę na przetwarzanie moich danych osobowych przez firmę dla celów związanych z działalnością pośrednictwa w obrocie nieruchomościami, jednocześnie potwierdzam, iż zostałem poinformowany o tym, iż będę posiadać dostęp do treści swoich danych do ich edycji lub usunięcia.

Wyślij ofertę

E-mail
© 2025 Atalanta Nieruchomości. Wszystkie prawa zastrzeżone.