Kursy walut NBP: USD 3,98 | EUR 4,32 | CHF 4,53 |

Jesteśmy członkiem:           

Wyszukiwarka
Notes
Zgłoś ofertę
Kalkulator
zgłoś ofertę
Mieszkania
Domy
Działki
Lokale
Obiekty
Szczegóły oferty
Rodzaj oferty
mieszkanie ( sprzedaż )
Numer oferty
432715
Miejscowość
DZIWNÓW
Ulica
Spadochroniarzy Polskich
Cena
740 000 PLN kalkulator
Cena za mkw
17 261,49 PLN mkw
Powierzchnia
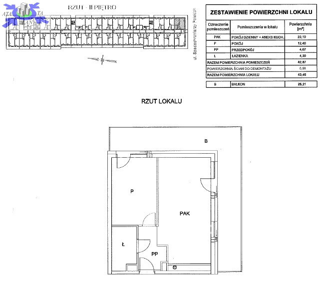
42.87 m2
Liczba pokoi
2
Piętro
2
Liczba pięter
2
Rodzaj kuchni
aneks
Stan mieszkania
idealny
Rok budowy
2023
Opis
Planujesz skredytować to marzenie - zadzwoń.

Piękny, 2 pokojowy apartament (pow. 42,87 m2) z narożnym, przestronnym tarasem o powierzchni 25.21 m2.

Nieruchomość usytuowana w samym sercu Dziwnowa, przy ujściu rzeki Dziwnej, w bliskiej odległości od morza (około 600m).

Apartamenty przy ul. Spadochroniarzy Polskich to prestiżowa inwestycja oddana do użytku w 2023 roku, położona nad brzegiem Zatoki Wrzosowskiej. Kompleks składa się z dwóch nowoczesnych budynków czterokondygnacyjnych, w których znajduje się 220 całorocznych apartamentów, idealnych zarówno na wynajem, jak i do własnego użytku.

Na terenie kompleksu znajduje się strefa basenowa, sauna, stół do ping-ponga oraz wewnętrzny plac zabaw dla dzieci.
Budynek wyposażony w windę, ochronę i monitoring.

Do mieszkania przynależy miejsce postojowe w hali garażowej pod budynkiem w dodatkowej cenie 50 000 zł. Sprzedaż łączna.

Apartament został urządzony ze smakiem przy użyciu wysokiej jakości materiałów. Proszę o zapoznanie się ze zdjęciami oraz dołączonym do ogłoszenia spacerem wirtualnym.

Na powierzchnię 42,87 m2 składają się
-elegancki salon z aneksem kuchennym i miejscem na stół jadalniany (z pokoju jest pierwsze wyjście na taras)
-sypialnia z szafą w zabudowie (z drugim wyjściem na taras)
-pięknie urządzona łazienka z prysznicem
-przedpokój z pojemną szafą

Warto zwrócić uwagę na bardzo duży (pow. 25,21m2) taras, narożny, w kształcie litery L. To niewątpliwie bardzo duży atut tej nieruchomości.

Miesięczny koszt utrzymania czynsz w wysokości ok. 700 zł, zawierający zaliczki na ogrzewanie i wodę, opłaty administracyjne oraz wywóz śmieci. Dodatkowo płatny prąd.

Apartament ten to doskonała propozycja dla osób szukających luksusowego miejsca nad morzem, wysokiej jakości wykończenia oraz bliskości natury.
Nieruchomość idealna na cele prywatne a także na potrzeby inwestycyjne.

W ofercie mamy także drugi apartament o podobnym metrażu, znajdujący się na parterze w tym samym budynku.

Zapraszam do kontaktu i osobistą prezentację.


Dodatkowe informacje: balkon, ochrona, winda, garaż

Kontakt do agenta

Atalanta Nieruchomości
Marii Konopnickiej 32
71-132 Szczecin
tel.: 914875042
email: info@atalanta.szczecin.pl
fax: 914875031

Wyślij zapytanie

Imię i Nazwisko
Telefon
E-mail
Treść zapytania

Wyrażam zgodę na przetwarzanie moich danych osobowych przez firmę dla celów związanych z działalnością pośrednictwa w obrocie nieruchomościami, jednocześnie potwierdzam, iż zostałem poinformowany o tym, iż będę posiadać dostęp do treści swoich danych do ich edycji lub usunięcia.

Wyślij ofertę

E-mail
© 2025 Atalanta Nieruchomości. Wszystkie prawa zastrzeżone.