Kursy walut NBP: USD 3,98 | EUR 4,32 | CHF 4,53 |

Jesteśmy członkiem:           

Wyszukiwarka
Notes
Zgłoś ofertę
Kalkulator
zgłoś ofertę
Mieszkania
Domy
Działki
Lokale
Obiekty
Szczegóły oferty
Rodzaj oferty
dom ( sprzedaż )
Numer oferty
431729
Miejscowość
ALGORFA, ALICANTE
Cena
469 000 EUR kalkulator
Cena za mkw
4 150,44 EUR mkw
Powierzchnia
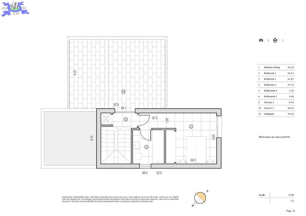
113.00 m2
Pow. działki
315.00 m2
Liczba pokoi
4
Liczba pięter
2
Stan domu
idealny
Rok budowy
2024
Droga dojazdowa
asfaltowa
Opis
Odkryj te wspaniałe nowo wybudowane wille w Algorfie, położone w spokojnym otoczeniu jednego z najbardziej prestiżowych ośrodków golfowych w Hiszpanii, La Finca Golf [amp] Spa Resort. Położona w południowej części prowincji Alicante, ta ekskluzywna inwestycja łączy luksusowe życie z korzyściami płynącymi z udogodnień w stylu kurortu, tworząc idealny dom dla entuzjastów golfa i osób poszukujących relaksującego śródziemnomorskiego stylu życia.

Eleganckie wille z 3 sypialniami, prywatnym basenem i nowoczesnym designem

Każda willa została starannie zaprojektowana na dwóch przestronnych piętrach, na których znajdują się 3 sypialnie i 2 łazienki. Kuchnia na otwartym planie płynnie przechodzi w część dzienną, gdzie duże okna i przesuwane szklane drzwi zapewniają mnóstwo naturalnego światła i bezpośredni dostęp do tarasu i prywatnego basenu. Na działce znajduje się wygodne prywatne miejsce parkingowe, co zwiększa łatwość i ekskluzywność tych domów.

Funkcje premium i technologia inteligentnego domu

Wille te wyposażone są w szereg wysokiej klasy funkcji zapewniających maksymalny komfort i bezpieczeństwo. Ciesz się wygodą prywatnego parkingu wewnętrznego, elektrycznych rolet, klimatyzacji kanałowej i zaawansowanego systemu automatyki domowej. Dodatkowo, w pełni wyposażony system alarmowy zapewnia spokój ducha. Orientacja południowa / południowo-zachodnia pozwala na optymalne naturalne oświetlenie przez cały rok, zmniejszając zużycie energii, zapewniając ciepło i jasność od wschodu do zachodu słońca.

Jasne, otwarte przestrzenie mieszkalne z tradycyjnymi akcentami

Zaprojektowane w koncepcji otwartej, domy te wykorzystują duże okna i drzwi przesuwne, aby promować wentylację krzyżową, utrzymując wnętrza świeże i wypełnione naturalnym światłem. Projekt architektoniczny łączy nowoczesną estetykę z tradycyjnymi elementami, takimi jak kamienne akcenty na elewacji i drewniane detale, tworząc ciepłą, zachęcającą atmosferę. Z oceną EPC A, wille te oferują efektywność energetyczną i zrównoważony rozwój, co czyni je przyjaznym dla środowiska wyborem dla właścicieli domów.

Doskonała lokalizacja z dostępem do plaż i kluczowych atrakcji

Położone w dobrze ugruntowanym mieście Algorfa, wille te znajdują się w odległości krótkiej przejażdżki od dziewiczych plaż Guardamar i Torrevieja, gdzie można cieszyć się ponad 300 słonecznymi dniami każdego roku. W pobliżu znajdują się centra handlowe, znakomite restauracje i tętniące życiem lokale rozrywkowe. Doskonała infrastruktura i bliskość głównych dróg, w tym autostrady AP-7, zapewniają łatwe połączenia z popularnymi miejscami, takimi jak Orihuela, Elche, Murcja i Alicante. Lotnisko w Alicante oddalone jest o zaledwie 40 km, a lotnisko w Murcji o 55 km, co ułatwia podróżowanie.

Twój śródziemnomorski dom marzeń czeka - skontaktuj się z nami już dziś

Nie przegap okazji posiadania luksusowej willi w najbardziej prestiżowym kurorcie golfowym Algorfa. Doświadcz idealnego połączenia nowoczesnego komfortu, tradycyjnego uroku i śródziemnomorskiego stylu życia. Skontaktuj się z nami już teraz, aby umówić się na oglądanie i odkryć swój wymarzony dom.

PODANA CENA JEST CENĄ NETTO NALEŻY DOLICZYC 10% VAT
więcej nieruchomości z Hiszpanii w ofercie zapraszamy

Dodatkowe informacje: garaż

Kontakt do agenta

Atalanta Nieruchomości
Marii Konopnickiej 32
71-132 Szczecin
tel.: 914875042
email: info@atalanta.szczecin.pl
fax: 914875031

Wyślij zapytanie

Imię i Nazwisko
Telefon
E-mail
Treść zapytania

Wyrażam zgodę na przetwarzanie moich danych osobowych przez firmę dla celów związanych z działalnością pośrednictwa w obrocie nieruchomościami, jednocześnie potwierdzam, iż zostałem poinformowany o tym, iż będę posiadać dostęp do treści swoich danych do ich edycji lub usunięcia.

Wyślij ofertę

E-mail
© 2025 Atalanta Nieruchomości. Wszystkie prawa zastrzeżone.