Kursy walut NBP: USD 3,98 | EUR 4,32 | CHF 4,53 |

Jesteśmy członkiem:           

Wyszukiwarka
Notes
Zgłoś ofertę
Kalkulator
zgłoś ofertę
Mieszkania
Domy
Działki
Lokale
Obiekty
Szczegóły oferty
Rodzaj oferty
dom ( sprzedaż )
Numer oferty
429404
Miejscowość
STARGARD
Ulica
Nadbrzeżna
Cena
769 968 PLN kalkulator
Cena za mkw
5 830 PLN mkw
Powierzchnia
132.07 m2
Pow. działki
266.00 m2
Liczba pokoi
4
Liczba pięter
1
Rodzaj kuchni
otwarta
Stan domu
do wykonczenia
Rok budowy
2025
Droga dojazdowa
asfaltowa
Opis


TO JUŻ KOLEJNY ETAP ROZBUDOWY OSIEDLA PRZY ULICY NADBRZEŻNEJ!
JUŻ PIERWSI MIESZKAŃCY CIESZĄ SIĘ SWOIM WYMARZONYM DOMEM.

BEZ PODATKU PCC 2%
BEZ PROWIZJI DO BIURA

KUPUJESZ W CENIE DEWELOPERA!

Z naszym biurem masz GWARANCJĘ
bezpiecznego procesu sprzedaży w oparciu o ust. deweloperską i Fundusz Gwarancyjny
kompleksowej obsługi transakcji na najwyższym poziomie
bezpłatnej i fachowej usługi w zakresie finansowania zakupu nieruchomości,
profesjonalnego wsparcia naszych licencjonowanych agentów


"Nasza inwestycja to nie tylko dom, to styl życia.
Znajdź swoje miejsce w eleganckim i nowoczesnym otoczeniu,
gdzie komfort mieszkaniowy idzie w parze z solidnością i estetyką."

OFERTA

Szeregowiec S2
Segment skrajny 1A
Dom o powierzchni użytkowej 132,07 mkw
Działka 266 mkw
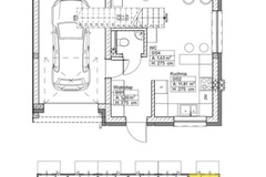
Układ pomieszczeń

PARTER
wiatrołap
kuchnia
salon
WC
garaż
pom. techniczne

PODDASZE
korytarz
sypialnia
łazienka
sypialnia
sypialnia

NAJWAŻNIEJSZE ATUTY
ogrzewanie podłogowe w całym budynku,
instalacje elektryczna i wodno-kanalizacyjna zakończone są wysokiej jakości materiałami,
okna trzyszybowe,
brama garażowa sterowana pilotem,
dojście do budynku i wjazd do garażu wykonane są z kostki brukowej
ogród został otoczony płotem systemowym
woda oraz ogrzewanie z sieci miejskiej
kanalizacja miejska

LOKALIZACJA
Kameralne osiedle w zabudowie wielorodzinnych bloków oraz domów szeregowych
znajdujące się na granicy Starego Miasta a ścisłym centrum Stargardu.


W POBLIŻU INWESTYCJI
PARK ZAMKOWY - 370 m
PRZYSTANEK KOMUNIKACJI MIEJSKIEJ - 650 m
PARK BOLESŁAWA CHROBREGO - 740 m
SZKOŁA PODSTAWOWA NR 5 - 800 m
PRZEDSZKOLE MIEJSKIE NR 1 - 860 m
STARE MIASTO - 1000 m
SZKOŁA PODSTAWOWA NR 3 - 1040 m

Skontaktuj się z nami już dziś,
aby dowiedzieć się więcej o dostępności i warunkach zakupu.






Dodatkowe informacje: garaż

Kontakt do agenta

Atalanta Nieruchomości
Marii Konopnickiej 32
71-132 Szczecin
tel.: 914875042
email: info@atalanta.szczecin.pl
fax: 914875031

Wyślij zapytanie

Imię i Nazwisko
Telefon
E-mail
Treść zapytania

Wyrażam zgodę na przetwarzanie moich danych osobowych przez firmę dla celów związanych z działalnością pośrednictwa w obrocie nieruchomościami, jednocześnie potwierdzam, iż zostałem poinformowany o tym, iż będę posiadać dostęp do treści swoich danych do ich edycji lub usunięcia.

Wyślij ofertę

E-mail
© 2025 Atalanta Nieruchomości. Wszystkie prawa zastrzeżone.