Kursy walut NBP: USD 3,98 | EUR 4,32 | CHF 4,53 |

Jesteśmy członkiem:           

Wyszukiwarka
Notes
Zgłoś ofertę
Kalkulator
zgłoś ofertę
Mieszkania
Domy
Działki
Lokale
Obiekty
Szczegóły oferty
Rodzaj oferty
działka siedliskowa ( sprzedaż )
Numer oferty
431194
Miejscowość
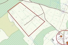
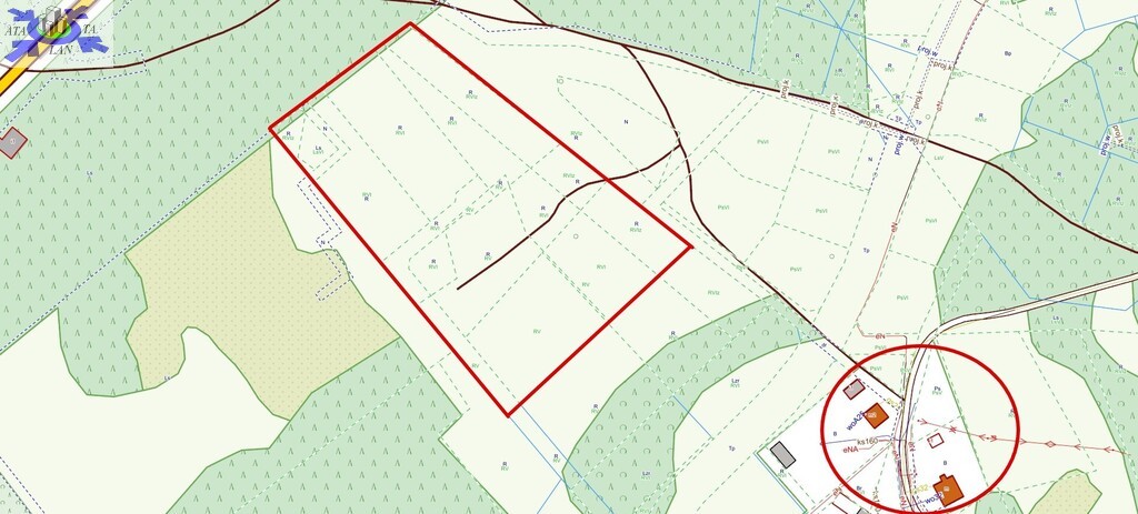
ŚWINOUJŚCIE, PRZYTÓR
Ulica
Zalewowa
Cena
315 000 PLN kalkulator
Cena za mkw
149,86 PLN mkw
Powierzchnia
2102.00 m2
Droga dojazdowa
polna
Opis
Prezentujemy ofertę sprzedaży działek pod zabudowę zagrodową o powierzchniach od 2102 do 3110 mkw. położonych w południowo-wschodniej dzielnicy Świnoujścia (Przytór-Łunowo), w bliskim sąsiedztwie jeziora Wicko i rozlewiska rzeki Świna.

Działki zlokalizowane są w zacisznym zakątku tuż pod lasem, za którym przebiega droga gminna którą kursuje autobus.

Cena za metr kwadratowy to 149zł, więc cena działek może się różnić w zależności od ich wielkości.

PARAMETRY

A - 0,2178ha
B - 0,2179ha
C - 0,2351ha
D - 0,3110ha
E - 0,2102ha
F - 0,2114ha

Kształt działek prostokąt lub kwadrat
Nachylenie płaska
Ogrodzenie nie
Wygląd trawa, krzaki
Klasa gruntu od 4 do 6 (rolna)
Gleba sucha
MPZP tak
Przeznaczenie 2bRM (zabudowa siedliskowa)
Wskaźnik zabudowy 25%
Rodzaj budynku zabudowa wolnostojąca
Maksymalna wysokość budynku 3 kondygnacje

POŁOŻENIE
Odległość do najbliższych zabudowań 80m
Sąsiedztwo zabudowa mieszkaniowa, tereny niezabudowane, las
Droga wewnętrzna wytyczona geodezyjnie
Droga dojazdowa nieutwardzona
Dostęp do drogi publicznej tak

MEDIA

Wszystkie media (gaz, prąd, woda i kanalizacja) w drodze głównej zaledwie 100 metrów dalej!

OKOLICA

500m - Przystanek autobusowy
1500m -Kościół
1800m - Szkoła
3km - Marina
3km - Droga Krajowa numer 3
4km - Stacja PKP
9km - sklep Biedronka
10km - Tunel Świnoujście
10km - Plaża wschodnia
11km - Międzyzdroje
15km - Promenada Świnoujście
22km - Lotnisko Heringsdorf


Dodatkowe informacje: media - prąd, media - gaz, media - woda

Kontakt do agenta

Atalanta Nieruchomości
Marii Konopnickiej 32
71-132 Szczecin
tel.: 914875042
email: info@atalanta.szczecin.pl
fax: 914875031

Wyślij zapytanie

Imię i Nazwisko
Telefon
E-mail
Treść zapytania

Wyrażam zgodę na przetwarzanie moich danych osobowych przez firmę dla celów związanych z działalnością pośrednictwa w obrocie nieruchomościami, jednocześnie potwierdzam, iż zostałem poinformowany o tym, iż będę posiadać dostęp do treści swoich danych do ich edycji lub usunięcia.

Wyślij ofertę

E-mail
© 2025 Atalanta Nieruchomości. Wszystkie prawa zastrzeżone.