Kursy walut NBP: USD 3,98 | EUR 4,32 | CHF 4,53 |

Jesteśmy członkiem:           

Wyszukiwarka
Notes
Zgłoś ofertę
Kalkulator
zgłoś ofertę
Mieszkania
Domy
Działki
Lokale
Obiekty
Szczegóły oferty
Rodzaj oferty
lokal biurowy ( wynajem )
Numer oferty
428915
Miejscowość
SZCZECIN, POMORZANY
Ulica
Smolańska
Cena
3 872 PLN
Cena za mkw
46 PLN mkw
Powierzchnia
96.79 m2
Liczba pokoi
1
Piętro
3
Liczba pięter
4
Rok budowy
1964
Opis
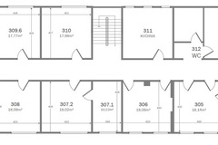
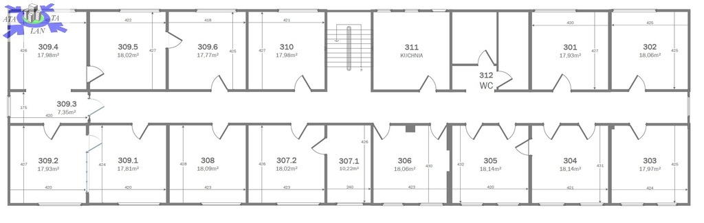
Na wynajem lokal mieszczący się na III piętrze w biurowcu znajdującym się przy pętli Pomorzany.
Biuro o powierzchni 96,79 m2, składające się z 5 klimatyzowanych pokoi.

Biura są po remoncie - gotowe do wynajęcia, na podłogach ułożono panele a ściany zostały odmalowane.
Na każdym piętrze znajduje się WC oraz pomieszczenie socjalne dostępne dla najemców.

Czynsz najmu wynosi od 46zł/m2 + VAT. (w czynszu wliczone są opłaty za wodę, ogrzewanie, śmieci). Dodatkowo płatny jest prąd według zużycia oraz Internet - 50 zł/mc (w budynku światłowód Orange).

Dla najemców dostępne są miejsca parkingowe na terenie obiektu w cenie 150 zł/mc za miejsce postojowe.

W budynku dostępne są biura o zróżnicowanych powierzchniach od 10 m2 do ok. 300 m2 (całe piętro). Istnieje możliwość aranżacji pomieszczeń według własnych potrzeb. Biura są przeznaczone do prowadzenia działalności biurowej oraz usługowej.

Zapraszam do kontaktu i na prezentację.
WYŁĄCZNOŚĆ

Dodatkowe informacje: parking

Kontakt do agenta

Atalanta Nieruchomości
Marii Konopnickiej 32
71-132 Szczecin
tel.: 914875042
email: info@atalanta.szczecin.pl
fax: 914875031

Wyślij zapytanie

Imię i Nazwisko
Telefon
E-mail
Treść zapytania

Wyrażam zgodę na przetwarzanie moich danych osobowych przez firmę dla celów związanych z działalnością pośrednictwa w obrocie nieruchomościami, jednocześnie potwierdzam, iż zostałem poinformowany o tym, iż będę posiadać dostęp do treści swoich danych do ich edycji lub usunięcia.

Wyślij ofertę

E-mail
© 2025 Atalanta Nieruchomości. Wszystkie prawa zastrzeżone.