Kursy walut NBP: USD 3,98 | EUR 4,32 | CHF 4,53 |

Jesteśmy członkiem:           

Wyszukiwarka
Notes
Zgłoś ofertę
Kalkulator
zgłoś ofertę
Mieszkania
Domy
Działki
Lokale
Obiekty
Szczegóły oferty
Rodzaj oferty
dom wolnostojacy ( sprzedaż )
Numer oferty
429549
Miejscowość
KOŚCINO
Cena
2 467 000 PLN kalkulator
Cena za mkw
6 294,97 PLN mkw
Powierzchnia
391.90 m2
Pow. działki
1205.00 m2
Liczba pokoi
6
Liczba pięter
1
Stan domu
bardzo dobry
Rok budowy
2013
Droga dojazdowa
utwardzona
Opis
Komfortowy, wolnostojący dom, położony przy jednej z cichych uliczek w pobliżu terenów leśnych.
DZIAŁKA
Powierzchnia działki - 1.205 m2, teren całkowicie ogrodzony, na działce pięknie utrzymane nasadzenia, altanka.
Droga dojazdowa utwardzona.
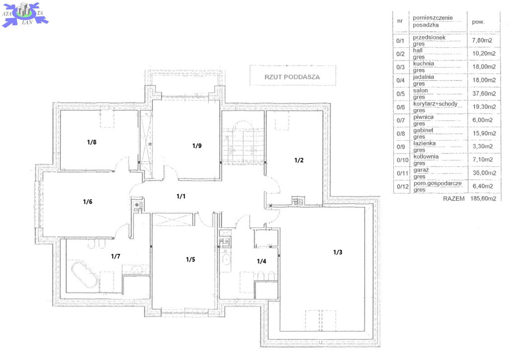
DOM (parterowy z użytkowym poddaszem o pow. całkowitej - 391.90 m2 użytkowej - 255.70 m2)
parter - na powierzchnię parteru składa się
- przedsionek (z szafą w zabudowie), hol (szafa w zabudowie),
- kuchnia - 18 m2 (meble w zabudowie wraz ze sprzętem AGD zmywarka, piekarnik, płyta grzewcza, pochłaniacz, lodówka z zamrażarką),
- jadalnia (pow. 18 m2),
- salon z kominkiem - 37,60 m2 (z wyjściem na taras, a z niego do pięknie zagospodarowanego ogrodu),
- pokój / gabinet (pow. ok. 16 m2),
- oraz łazienka, kotłownia, garaż (36 m2) i piwniczka pod schodami.

piętro (185,60 m2 powierzchni użytkowej)
- cztery pokoje o pow. 13,50 m2 20,80 m2 20,10 m2 18,70 m2 (w tym jeden z własną łazienką i garderobą - pow. garderoby 6m2 i jeden z wyjściem na balkon - widok na ogród strona zachodnia),
- oraz pralnia (7 m2), łazienka (toaleta bidet, kabina prysznicowa), korytarz.

DANE TECHNICZNE
Dom oddany do użytkowania w 2013 roku, wybudowany w technologii tradycyjnej, wykończony materiałami wysokiej jakości, utrzymany w bardzo dobrym stanie. Nowoczesna bryła architektoniczna idealnie wkomponowana w otaczającą ją przestrzeń. Dachówka ceramiczna (izolacja termiczna wełna mineralna 30 cm), ściany zewnętrzne budynku docieplone, okna PCV (parapety kamienne) z roletami zewnętrznymi i moskitierami, oraz okna drewniane - połaciowe. Dom dobrze doświetlony światłem dziennym.
Podłoga gres, wykładzina dywanowa, drewno. Ogrzewanie podłogowe - piec gazowy 2 funkcyjny.
Instalacje elektryczna (panele słoneczne) i gazowa, wodociągowa, kanalizacja, instalacja alarmowa (monitoring, czujnik ruchu), odkurzacz centralny, liczne punkty oświetleniowe, internetowa i TV
Drzwi do garażu i brama wjazdowa na posesję - otwierane automatycznie. Możliwość parkowania na terenie posesji (przed garażem).

OGRÓD (pow. około 800 m2)
pięknie zagospodarowany, idealnie dopasowany do rosnących już wcześniej na działce drzew, starannie utrzymany i systematycznie pielęgnowany.

LOKALIZACJA
Działka usytuowana jest na terenie osiedla o nowoczesnej zabudowie jednorodzinnej o charakterze willowym, w bliskim sąsiedztwie lasu i rezerwatu przyrody, z dala od miejskiego zgiełku a jednocześnie z łatwym dojazdem do centrum miasta.

Lokalizacja pozwala zachować równowagę pomiędzy wygodą życia jaką daje niedaleka odległość od miasta a możliwościami wypoczynku i relaksu w otoczeniu przyrody.

IDEALNE MIEJSCE DLA OSÓB CENIĄCYCH KOMFORT I KONTAKT Z NATURĄ

Dodatkowe informacje: garaż

Kontakt do agenta

Atalanta Nieruchomości
Marii Konopnickiej 32
71-132 Szczecin
tel.: 914875042
email: info@atalanta.szczecin.pl
fax: 914875031

Wyślij zapytanie

Imię i Nazwisko
Telefon
E-mail
Treść zapytania

Wyrażam zgodę na przetwarzanie moich danych osobowych przez firmę dla celów związanych z działalnością pośrednictwa w obrocie nieruchomościami, jednocześnie potwierdzam, iż zostałem poinformowany o tym, iż będę posiadać dostęp do treści swoich danych do ich edycji lub usunięcia.

Wyślij ofertę

E-mail
© 2025 Atalanta Nieruchomości. Wszystkie prawa zastrzeżone.